Добавить в корзинуПозвонить
Найти в Дзене
Филдс

Интерьер в духе 1950-х: как дизайнер превратила убитую «сталинку» 65 м² в современное и стильное жильё

Дизайнер Татьяна Минина оформила евротрёшку в «сталинке» 65 м² для себя и своей собаки. Квартире предстоял капитальный ремонт — в прошлом это была коммуналка. Интерьер создавался с опорой на стилистику 50-х годов прошлого века. Планировка Гостиная В отделке комнаты скомбинировали краску тёплого жёлтого оттенка и обои марки Cole & Son, на пол уложили дубовый паркет. Кухня Гарнитур расположили П-образно. Перегородку с санузлом немного удлинили, чтобы запланировать нишу — в результате габаритная часть кухни с пеналами не видна из гостиной. Спальня Спальню оформили в серых тонах. Две стены — в изголовье и изножье кровати — декорировали акцентными обоями. Помимо спального места в небольшой комнате удалось обустроить рабочую зону — для этого вместо подоконника установили столешницу и завели её на смежные стены. Прихожая Несмотря на небольшие размеры прихожей, дизайнер не побоялась использовать глубокий тёмный цвет краски для стен. Ярким элементом декора стала крупноформатная картина н
Оглавление

Дизайнер Татьяна Минина оформила евротрёшку в «сталинке» 65 м² для себя и своей собаки. Квартире предстоял капитальный ремонт — в прошлом это была коммуналка. Интерьер создавался с опорой на стилистику 50-х годов прошлого века.

  • Общая площадь: 65 м²
  • Место: Москва
  • Тип дома: «сталинка»
  • Количество комнат: евротрёшка
  • Бюджет: 4 млн рублей
  • Кто здесь живет: автор проекта
  • Дизайнер: Татьяна Минина
  • Фото: Михаил Лоскутов

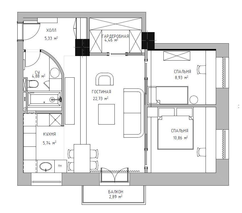
Планировка

В результате перепланировки гостиную присоединили к кухне, а вторую комнату поделили на две. Часть большого коридора отдали гардеробной, а часть — кухне-гостиной. Раздельный санузел объединили, один из его углов пришлось скруглить, чтобы получить проход достаточной ширины.
В результате перепланировки гостиную присоединили к кухне, а вторую комнату поделили на две. Часть большого коридора отдали гардеробной, а часть — кухне-гостиной. Раздельный санузел объединили, один из его углов пришлось скруглить, чтобы получить проход достаточной ширины.

Гостиная

В отделке комнаты скомбинировали краску тёплого жёлтого оттенка и обои марки Cole & Son, на пол уложили дубовый паркет.

Кухня

Гарнитур расположили П-образно. Перегородку с санузлом немного удлинили, чтобы запланировать нишу — в результате габаритная часть кухни с пеналами не видна из гостиной.

Спальня

Спальню оформили в серых тонах. Две стены — в изголовье и изножье кровати — декорировали акцентными обоями. Помимо спального места в небольшой комнате удалось обустроить рабочую зону — для этого вместо подоконника установили столешницу и завели её на смежные стены.

Прихожая

Несмотря на небольшие размеры прихожей, дизайнер не побоялась использовать глубокий тёмный цвет краски для стен. Ярким элементом декора стала крупноформатная картина на консоли при входе.

Санузел

В отделке санузла скомбинировали краску серого оттенка и ту же плитку кабанчик в вертикальной раскладке, что и в кухне. Монохромную цветовую гамму разбавили жёлтыми акцентами. Из-за нестандартной конфигурации помещения, тумбу для раковины пришлось делать на заказ по индивидуальным размерам.

-6

Интересные мнения в комментариях приветствуются. Если материал понравился — ставь лайк!

Филдс это не только блог на Дзене, но и магазин дизайнерской мебели. Дарим 3000 ₽ на первую покупку. Заходите на сайт и выбирайте мебель, которую используют дизайнеры в своих проектах.