Найти в Дзене
Изумрудный дом

План освещения потолков – точный до миллиметра

Грамотно спроектированное освещение потолков в квартире – непростая задача. Хотя казалось бы, стоит повесить люстру в центре комнаты и будет всё готово. Но правильное понимание расположения светильников может сыграть очень важную роль. Бывает так, что при зонировании помещения даже один сантиметр может серьезно изменить общую картину и таким образом нарушить гармонию дизайна. К тому же неправильное расположение света на потолке приводит к низкому качеству освещенности, а значит и повышению потребления электроэнергии. При планировании схемы размещения светильников дизайнер обязательно учитывает все нюансы и составляет сложную схему, где все сходится буквально до миллиметра. А все приборы и выключатели встраиваются так, чтобы вам было удобно ими пользоваться. На фото вы можете увидеть план потолков с размещением выключателей и освещения, который составляет наш дизайнер. Посмотреть наши работы и связаться с нами можно в группе ВКонтакте или в WhatsApp +7 (981) 239-89-89

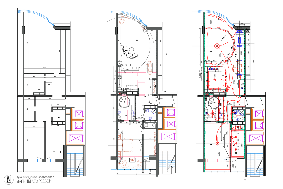
Грамотно спроектированное освещение потолков в квартире – непростая задача. Хотя казалось бы, стоит повесить люстру в центре комнаты и будет всё готово. Но правильное понимание расположения светильников может сыграть очень важную роль.

Бывает так, что при зонировании помещения даже один сантиметр может серьезно изменить общую картину и таким образом нарушить гармонию дизайна. К тому же неправильное расположение света на потолке приводит к низкому качеству освещенности, а значит и повышению потребления электроэнергии.

При планировании схемы размещения светильников дизайнер обязательно учитывает все нюансы и составляет сложную схему, где все сходится буквально до миллиметра. А все приборы и выключатели встраиваются так, чтобы вам было удобно ими пользоваться.

На фото вы можете увидеть план потолков с размещением выключателей и освещения, который составляет наш дизайнер.

Посмотреть наши работы и связаться с нами можно в группе ВКонтакте

или в WhatsApp +7 (981) 239-89-89