Найти в Дзене

Как выбрать квартиру для всей семьи?

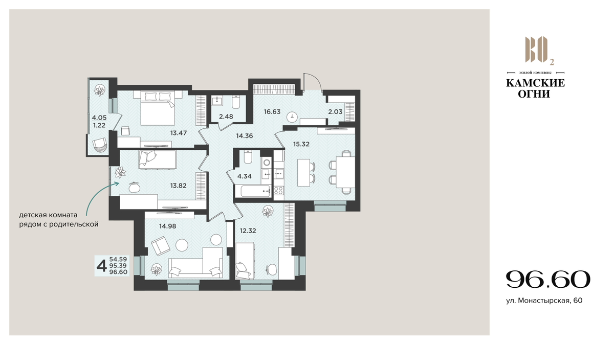
Выбрать квартиру для всей семьи — это очень сложная задача. Нужно учесть множество факторов, а также пожелания не только родителей, но и детей. Позаботиться об их безопасности, комфорте и будущем развитии. В строительной группе «Развитие» представлен большой выбор семейных планировок в различных жилых комплексах, но как определиться и подобрать идеальную для себя? В ЖК «Камские огни 2» есть прекрасная возможность получить дизайн-проект в подарок при покупке квартиры в ипотеку от 1,7%. Узнайте подробнее в конце статьи 👇 🔘 Детская комната рядом с родительской Комната рядом с родителями — важная деталь планировки для семьи с маленьким ребёнком. В дальнейшем комнаты можно поменять. Например, перенести детскую в гостиную, дав подростку больше личного пространства. 🔘 Удобные ниши для хранения вещей Жить с детьми = иметь большое количество нужных вещей. Если санки и сезонные вещи можно оставить в кладовой, то большое количество игрушек и повседневных вещей потребуют больше мест

Выбрать квартиру для всей семьи — это очень сложная задача. Нужно учесть множество факторов, а также пожелания не только родителей, но и детей. Позаботиться об их безопасности, комфорте и будущем развитии.

В строительной группе «Развитие» представлен большой выбор семейных планировок в различных жилых комплексах, но как определиться и подобрать идеальную для себя?

В ЖК «Камские огни 2» есть прекрасная возможность получить дизайн-проект в подарок при покупке квартиры в ипотеку от 1,7%. Узнайте подробнее в конце статьи 👇

🔘 Детская комната рядом с родительской

Комната рядом с родителями — важная деталь планировки для семьи с маленьким ребёнком.

В дальнейшем комнаты можно поменять. Например, перенести детскую в гостиную, дав подростку больше личного пространства.

-2

🔘 Удобные ниши для хранения вещей

Жить с детьми = иметь большое количество нужных вещей.

Если санки и сезонные вещи можно оставить в кладовой, то большое количество игрушек и повседневных вещей потребуют больше мест для хранения.

-3

🔘 Большая кухня для семейных посиделок

Общие семейные мероприятия — важная часть формирования крепких взаимоотношений друг с другом.

Это может быть общий ужин по вечерам или выходные настольные игры. Просторная столовая и большой обеденный стол помогут с организацией данных мероприятий.

-4

🔘 Отдельный санузел для родителей и детей

Раннее утро. Родители спешат на работу, а дети в школу. За право умыться первым можно больше не бороться, если иметь доступ к собственному санузлу.

Меньше очередей и суеты, больше времени на утренние сборы.

-5

🔘 Огороженная территория

В новостройках центром притяжения становится двор. Инновационная детская площадка создаёт условия для комфортного проживания с детьми.

В жилом комплексе «Камские огни 2» вас ждут все виды отдыха для детей разного возраста. Покататься на качелях, скатиться с горки и бежать покорять новые вершины.

Для семьи с одним ребёнком отлично подойдут 3-к квартиры. В них достаточно места для комфортной жизни родителей и их детей.

👨‍👩‍👦 Узнайте подробнее про акции и просмотреть планировки можно на сайте жилого комплекса, в офисе продаж на ул. Чернышевского, 28 (3 этаж) или по номерам телефонов: 204-04-70 / 204-04-72.