Найти в Дзене
Филдс

Интерьер, в котором не побоялись использовать цвета: как дизайнеры оформили евротрёшку 60 м² для мамы и дочки

Дизайнеры Александр и Ирина Кутенковы оформили евротрёшку 60 м² для женщины и её дочери. Заказчица предоставила авторам полную свободу, в результате ей всё понравилось и проект согласовали с первого раза. Планировка Гостиная Стены в комнате оформили в технике колор-блок, скомбинировав нежно-розовый и сине-зелёный оттенки. С отделкой перекликается и обивка мягкой мебели — дивана и кресла. Кухня Кухню зонировали другим напольным покрытием — плиткой. Гарнитур построили линейно. В фасадах повторили цветовое сочетание из отделки стен, тем самым связав всё пространство комнаты воедино. Высокие пеналы с техникой расположили симметрично рабочей поверхности. Спальня Спальню зонировали перегородкой из тонированного стекла с деревянным основанием. Со стороны гостиной внутреннее убранство комнаты не просматривается, зато свободно поступает естественный свет с улицы. Детская Детская предназначается для девочки-подростка. В комнате организовали спальное место, зоны для учёбы и отдыха, а такж
Оглавление

Дизайнеры Александр и Ирина Кутенковы оформили евротрёшку 60 м² для женщины и её дочери. Заказчица предоставила авторам полную свободу, в результате ей всё понравилось и проект согласовали с первого раза.

  • Общая площадь: 60 м²
  • Место: Новосибирск
  • Количество комнат: евротрёшка
  • Бюджет: 3 млн рублей
  • Кто здесь живет: мама с дочкой
  • Дизайнеры: Александр и Ирина Кутенковы (студия KUTENKOVS_PROJECT)

Планировка

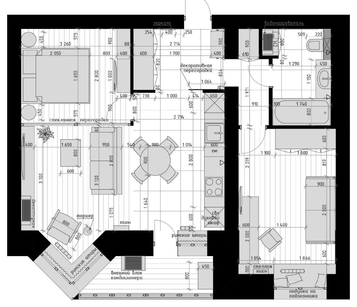
Работы по перепланировке провели масштабные — демонтировали почти все старые перегородки, не трогали только несущую стену, ограждающую детскую и коридор с санузлом. Остальное пространство разделили между прихожей, спальней и кухней-гостиной.
Работы по перепланировке провели масштабные — демонтировали почти все старые перегородки, не трогали только несущую стену, ограждающую детскую и коридор с санузлом. Остальное пространство разделили между прихожей, спальней и кухней-гостиной.

Гостиная

Стены в комнате оформили в технике колор-блок, скомбинировав нежно-розовый и сине-зелёный оттенки. С отделкой перекликается и обивка мягкой мебели — дивана и кресла.

Кухня

Кухню зонировали другим напольным покрытием — плиткой. Гарнитур построили линейно. В фасадах повторили цветовое сочетание из отделки стен, тем самым связав всё пространство комнаты воедино. Высокие пеналы с техникой расположили симметрично рабочей поверхности.

Спальня

Спальню зонировали перегородкой из тонированного стекла с деревянным основанием. Со стороны гостиной внутреннее убранство комнаты не просматривается, зато свободно поступает естественный свет с улицы.

Детская

Детская предназначается для девочки-подростка. В комнате организовали спальное место, зоны для учёбы и отдыха, а также поставили большой вместительный шкаф для одежды рядом со входом.

Прихожая

В прихожей отделку краской сочетали с плиткой и деревянными рейками, последние также завели на потолок и в проём с кухней. Жалюзийные фасады встроенного шкафа оформили в тон окрашенным стенам. Банкетку изготовили на заказ.

Санузел

На стенах в санузле скомбинировали керамику под дерево и под бетон, на пол уложили ту же плитку, что и в прихожей. Тумбу для раковины изготовили на заказ, её чёрный металлический корпус перекликается с тёмной сантехникой. Стиральную машину расположили напротив инсталляции — для неё специально запланировали нишу.

Интересные мнения в комментариях приветствуются. Если материал понравился — ставь лайк!

Филдс это не только блог на Дзене, но и магазин дизайнерской мебели. Дарим 3000 ₽ на первую покупку. Заходите на сайт и выбирайте мебель, которую используют дизайнеры в своих проектах.