Добавить в корзинуПозвонить
Найти в Дзене

Ремонт небольшой квартиры в современном стиле, чтобы чувствовать себя как в большой. Изучаем детали

Бытует мнение, что квартира малой площади обязательно будет неуютной, в которой ничего не разместишь, про наведение же красоты можно и вовсе забыть. Если главной заботой застройщика было как можно больше «налепить клетушек», не думая о пропорциях комнат, размерах санузлов и о том, как людям там жить, то отчасти это мнение верное. Однако, спешим успокоить владельцев именно таких маленьких квартир, при должном дизайне и правильном подходе к ремонту уютной можно сделать и небольшую квартиру в современном стиле, в которой можно будет разместить все самое необходимое для комфортной жизни. Жить в красоте с комфортом, не переплачивая за квадратные метры можно и в скромной студии, и в маленькой однокомнатной квартире на тридцати метрах. Изучаем детали На плане видно, насколько пропорциональна и продумана площадь квартиры. Из прихожей (3.8 м2) можно сразу же попасть в приличную (3,6 м2) гардеробную, в которой предусмотрена установка углового шкафа и обувницы. В спальне размещается всё нужное, л
Оглавление

Бытует мнение, что квартира малой площади обязательно будет неуютной, в которой ничего не разместишь, про наведение же красоты можно и вовсе забыть.

Фото с сайта СПК-ремонт. https://www.спк-ремонт.рф/portfolio/небольшая-квартира-в-современном-стиле-ремонт-квартир-в-москве-и-области.html
Фото с сайта СПК-ремонт. https://www.спк-ремонт.рф/portfolio/небольшая-квартира-в-современном-стиле-ремонт-квартир-в-москве-и-области.html

Если главной заботой застройщика было как можно больше «налепить клетушек», не думая о пропорциях комнат, размерах санузлов и о том, как людям там жить, то отчасти это мнение верное. Однако, спешим успокоить владельцев именно таких маленьких квартир, при должном дизайне и правильном подходе к ремонту уютной можно сделать и небольшую квартиру в современном стиле, в которой можно будет разместить все самое необходимое для комфортной жизни.

Жить в красоте с комфортом, не переплачивая за квадратные метры можно и в скромной студии, и в маленькой однокомнатной квартире на тридцати метрах.

Изучаем детали

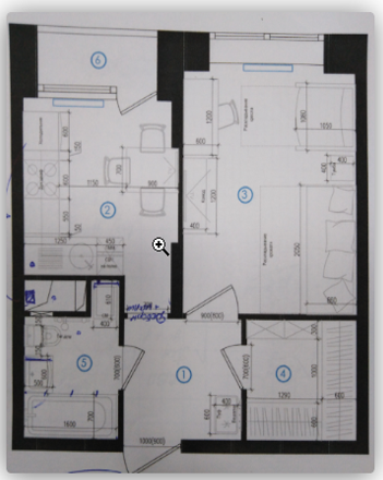
На плане видно, насколько пропорциональна и продумана площадь квартиры. Из прихожей (3.8 м2) можно сразу же попасть в приличную (3,6 м2) гардеробную, в которой предусмотрена установка углового шкафа и обувницы.

Фото с сайта СПК-ремонт. https://www.спк-ремонт.рф/portfolio/небольшая-квартира-в-современном-стиле-ремонт-квартир-в-москве-и-области.html
Фото с сайта СПК-ремонт. https://www.спк-ремонт.рф/portfolio/небольшая-квартира-в-современном-стиле-ремонт-квартир-в-москве-и-области.html

В спальне размещается всё нужное, лишнее прячется в гардеробную комнату, что очень удобно во всех отношениях.  Кухня (7,7 м2) подходит не только для приготовления и приема пищи, но также и для общения.

С присоединенной лоджией можно вообще получить две жилые комнаты, изолированные друг от друга.

В прихожей размещается вешалка для верхней одежды на каждый день и тумба для повседневной обуви. Зеркало, чтобы не загромождать стены, можно вполне разместить и на входной двери, тем более, что есть такая возможность -  заказать ее сразу с зеркалом. Следите за акциями, вполне реально при заказе в нашей компании ремонта «под ключ» получить отличную металлическую дверь в подарок.

Фото евродвушки, 37 м.кв

Разводка водопровода и электрики производится непосредственно под холодильник, плиту и раковину, параметры все просчитываются с учетом всего необходимого в зоне готовки. Стекло в пол на лоджии обеспечит еще и приток естественного дополнительного света и свежего воздуха.

При том, что комнаты в квартире далеко не гигантских размеров, светлые стены и панорамное остекление (вариант с присоединенной лоджией), привнесут в нее ощущение простора и свободы. Стильная мебель, креативные светильники и красивые занавески, без чего никакой уют вообще не возможен, и из этой небольшой квартиры в современном стиле вообще выходить не захочется.

Фото с сайта СПК-ремонт. https://www.спк-ремонт.рф/portfolio/небольшая-квартира-в-современном-стиле-ремонт-квартир-в-москве-и-области.html
Фото с сайта СПК-ремонт. https://www.спк-ремонт.рф/portfolio/небольшая-квартира-в-современном-стиле-ремонт-квартир-в-москве-и-области.html

Спальная комната в 11,5 квадратных метра вполне достаточна для размещения не только раскладывающегося дивана, но и двуспальной кровати с тумбочками, письменного стола и комода. Отсутствие шкафа вполне этому способствует.

Украшаем стены живописными картинами или абстракцией, размещаем стеллажи с книгами и цветами – вот вам и индивидуальность в комнате отдыха.

Выбрав ремонт квартиры в Москве и области с нашей компанией, вы получите:

1.         Дизайн-проект, без которого не производятся никакие работы. Для клиентов компании он бесплатен.

2.         Фиксированный договор с оговоренной стоимостью ремонта и сроками его выполнения, в который будет входить поэтапный план работ и фиксированная смета на все работы, чистовые и черновые материалы.

3.         Демонтаж – монтаж стен. Штукатурка по маякам и с углами в 90 град.

4.         Разводка всей электрики с розетками, светильниками и выключателями.

5.         Установка сантехники. Огромный опыт размещения душевых кабин, ванн, унитазов и стиральных машин в санузлах малой площади.

6.         В жилых комнатах ламинат, в санузлах и на лоджиях керамогранит. Керамогранит по желанию заказчика - на кухне и в прихожей.

7.         Установка кондиционеров.

Останется только расставить мебель, при ремонте у нас под ключ, компания способствует приобретению ее с хорошей скидкой у производителя, и можно праздновать новоселье.

Ремонт квартир в Москве и Области. Мы делаем ремонт комфортным

Надеемся, информация была полезной. Не забываем ставить лайк. Подписывайтесь. Обращайтесь!

+7-977-304-2972; +7-903-768-67-89; +7-964-500-68-46

Наш канал

Капитальный ремонт в квартире

Ремонт ванной комнаты

Состав дизайн-проекта интерьера

Ремонт прихожей

Стильная однушка на ваш вкус

Фото нашего ремонта

Фото с сайта СПК-ремонт. https://www.спк-ремонт.рф/portfolio/небольшая-квартира-в-современном-стиле-ремонт-квартир-в-москве-и-области.html
Фото с сайта СПК-ремонт. https://www.спк-ремонт.рф/portfolio/небольшая-квартира-в-современном-стиле-ремонт-квартир-в-москве-и-области.html
Фото с сайта СПК-ремонт. https://www.спк-ремонт.рф/portfolio/небольшая-квартира-в-современном-стиле-ремонт-квартир-в-москве-и-области.html
Фото с сайта СПК-ремонт. https://www.спк-ремонт.рф/portfolio/небольшая-квартира-в-современном-стиле-ремонт-квартир-в-москве-и-области.html
Фото с сайта СПК-ремонт. https://www.спк-ремонт.рф/portfolio/небольшая-квартира-в-современном-стиле-ремонт-квартир-в-москве-и-области.html
Фото с сайта СПК-ремонт. https://www.спк-ремонт.рф/portfolio/небольшая-квартира-в-современном-стиле-ремонт-квартир-в-москве-и-области.html
Фото с сайта СПК-ремонт. https://www.спк-ремонт.рф/portfolio/небольшая-квартира-в-современном-стиле-ремонт-квартир-в-москве-и-области.html
Фото с сайта СПК-ремонт. https://www.спк-ремонт.рф/portfolio/небольшая-квартира-в-современном-стиле-ремонт-квартир-в-москве-и-области.html

Будем Вам Рады!