Добавить в корзинуПозвонить
Найти в Дзене
ДОМОСБОР

Двухэтажный дом из клееного бруса «Волшебная гора»

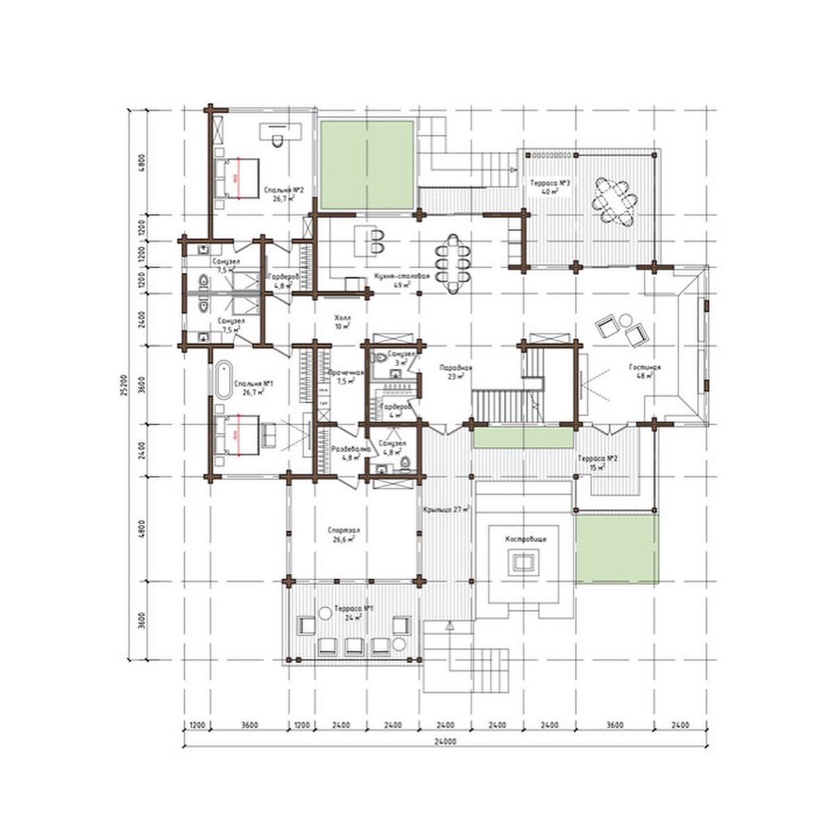
Двухэтажный просторный дом из клееного бруса «Волшебная Гора» от производителя КЛМ-АРТ. Проект подойдет для большой дружной семьи, которая любит проводить время в просторном и уютном доме из клееного бруса.  Характеристики дома: Помимо классического исполнения дома в материале «Ель» / «Сосна», мы можем изготовить дом из «Сибирской лиственницы», «Ангарской сосны» и «Сибирского кедра».  Срок строительства: от 90 дней. Технический надзор на объекте и сертификат качества.  Наш многолетний опыт в строительстве, позволяет нашим клиентам получать самые лучшие предложения на рынке малоэтажного строительства в России.  Узнать подробнее о проекте

Двухэтажный просторный дом из клееного бруса «Волшебная Гора» от производителя КЛМ-АРТ. Проект подойдет для большой дружной семьи, которая любит проводить время в просторном и уютном доме из клееного бруса. 

Характеристики дома:

  • Общая площадь: 445 м2
  • Жилая площадь: 255 м2
  • Кол-во спален: 4
  • Кол-во санузлов: 5
  • Этажи: 2

Помимо классического исполнения дома в материале «Ель» / «Сосна», мы можем изготовить дом из «Сибирской лиственницы», «Ангарской сосны» и «Сибирского кедра». 

Срок строительства: от 90 дней.

Технический надзор на объекте и сертификат качества. 

Наш многолетний опыт в строительстве, позволяет нашим клиентам получать самые лучшие предложения на рынке малоэтажного строительства в России. 

Узнать подробнее о проекте