Найти в Дзене

ОБЗОР ШУН ШКАФОВ УПРАВЛЕНИЯ НАСОСАМИ! ГОТОВОЕ РЕШЕНИЕ!

В данной статье рассмотрим принцип и алгоритмы работы шкафов управления насосами, а также на что стоит обращать внимание при выборе шкафов ШУН! Под шкафами управления насосами подразумевается готовая электрическая система управления состоящая из силовой коммуникационной части и системы автоматизации. Система автоматизации ШУН в свою очередь может быть реализована на релейной схеме, либо в современном варианте на промышленном контроллере или программируемом реле. Шкафы управления насосами ШУН применяются в различных промышленных и бытовых областях, а именно: в теплопунктах, котельных, дренажных системах, очистительных сооружениях и т.д. Запуск и управление насосами как правило состоит из трех вариаций, которые используются в шкафах ШУН: Существуют разные модификации и компоновки шкафов управления насосами ШУН. Насосы могут работать по очереди "1 рабочий + 1 резервный", либо совместно когда мощности одного насоса не хватает, включается дополнительный "1 рабочий + 1 дополнительный". Таким

В данной статье рассмотрим принцип и алгоритмы работы шкафов управления насосами, а также на что стоит обращать внимание при выборе шкафов ШУН! Под шкафами управления насосами подразумевается готовая электрическая система управления состоящая из силовой коммуникационной части и системы автоматизации. Система автоматизации ШУН в свою очередь может быть реализована на релейной схеме, либо в современном варианте на промышленном контроллере или программируемом реле.

Шкафы управления насосами ШУН применяются в различных промышленных и бытовых областях, а именно: в теплопунктах, котельных, дренажных системах, очистительных сооружениях и т.д. Запуск и управление насосами как правило состоит из трех вариаций, которые используются в шкафах ШУН:

  1. Прямой пуск насоса, через контактор. Данный способ управления насосом является самым бюджетным и как правило используется на маломощных насосах (до 5.5кВт). Это связано с большими пусковыми токами насосов, которые достигают 6-ти кратный номинал двигателей. Если номинальный ток двигателя 7А, то при пуске (кратковременно) может достигать 42А. Насосы большой мощности крайне не рекомендуют запускать "прямым пуском", так как это негативно сказывается на гидравлической системе (происходят гидроудары), уменьшается срок службы двигателя.
  2. Плавный (мягкий) пуск через устройство плавного пуска УПП. Данный способ управления насосами позволяет минимизировать пусковые токи, запуская плавно двигатель до нужно частоты. УПП как правило применяется в резервных линиях, либо когда мощность двигателя подобрана должным образом и насос на максимальной производительности (50Гц) показывает максимальный КПД. Частой "ошибкой" сборщиков шкафов управления насосами является установка контактора на "байпасную" (резервную) линию. Иными словами, если у Вас насосы работают при принципу "один рабочий + один резервный" и частотный преобразователь или УПП выходят из строя (например по ошибке ЧП), то автоматически происходит "прямой пуск" по резервной линии, тем самым обеспечивая гидроудар в системе. В таких случаях крайне рекомендуют на резервную линию устанавливать, либо второй частотный преобразователь, либо устройство плавного пуска.
  3. Частотное регулирование, запуск насоса через частотный преобразователь. Частотный преобразователь позволяет плавного запуска, останавливать насос, а также производить управление по разным режимам. Чаще всего современные системы управления насосами позволяют производить поддержания технологических параметров (давления в трубопроводе, расход, уровень и т.п.). В связи с этим, используя частотный преобразователь можно обеспечивать защиту насоса от потери фазы, перенапряжения, перегрузки, а также производить ПИД регулирование без использования внешних систем автоматики. Китайские производители частотных преобразователей очень сильно выросли в качестве продукции и во многом не уступают европейским аналогам.
-2
-3

Существуют разные модификации и компоновки шкафов управления насосами ШУН. Насосы могут работать по очереди "1 рабочий + 1 резервный", либо совместно когда мощности одного насоса не хватает, включается дополнительный "1 рабочий + 1 дополнительный". Таким образом, система управления может состоять из нескольких насосов, а управление производиться по каскадному режиму. Под каскадным режимом управления подразумевается включение и отключение дополнительных насосов по определённой логике, когда мощности одного или нескольких насосов недостаточно и происходит поочередное добавление резервных насосов для достижения технологического параметра (например, давления). В таком случае, включение и отключение резервных насосов может производится по разным сценариям. Например, основной насос работающий от частотного преобразователя достигает максимальной производительности (50Гц), хотя показатели технологического параметра (например, давления) не достигнуты до нужного значения. Соответственно, с помощью контакторов через заданное время происходит мгновенное переключение с основного насоса (работающего от частотного преобразователя) на питание от сети. Таким образом, основной двигатель продолжает работу от питающей сети, а управление через частотный преобразователь переключается на дополнительный насос и происходит регулирование технологического параметра. В итоге получается, что основной(ые) насос(ы) работают от питающей сети, а регулирование технологических параметров происходит с помощью дополнительных насосов через частотный преобразователь с помощью функции ПИД регулирования.

Каскадное регулирование также имеет свои недостатки при управлении дополнительными насосами через контакторы. Это обусловлено тем, что при переключении управления частотного преобразователя с основного на дополнительный насос, происходит кратковременное пропадание напряжение при переключении контакторов, а также в частотном преобразователе остается избыток энергии, так как для преобразователя частоты происходит пропадание нагрузки. Данная проблема решается с помощью установки дополнительного частотного преобразователя на каждый насос. Такой вариант более дорогой, но имеет ряд положительных моментов и повышает надежность установки. С другой стороны используя частотные преобразователи на каждый насос, значительно уменьшается количество контакторов (качественные контакторы также дорого стоят) и число сигналов контроля и  управления, тем самым уменьшая стоимость конфигурации контроллера.

-4

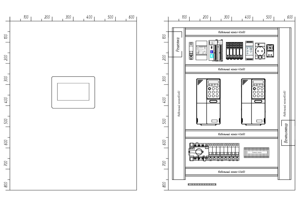
Современные шкафы управления насосами ШУН с частотным регулированием максимально эффективны и точны в поддержании технологических параметров. ШУН обеспечивает функции АВР насосов (при аварии или ошибки основного насоса автоматическое переключение на резервный), чередование по времени наработки или заданному времени оператором. Также современные системы управления насосами обеспечивают экономию электроэнергии эффективной работой, с помощью автоматического регулирования и функции "сна", а также обеспечивают легкую интеграцию с верхним уровнем АСУТП по промышленному протоколу Modbus RTU. С помощью уже сконфигурированных списков регистров Modbus, инженер АСУТП легко интегрирует шкаф управления насосов в общую систему производства.

Рекомендации по выбору шкафов управления насосами (исходя из нашего опыта):

  • если мощность насосов более 5.5кВт, то желательно выбирать плавный пуск или частотный преобразователь для насосов;
  • если используется каскадное управления с двумя и более насосами, то рекомендуем выбирать панель управления вместо индикаторов, кнопок и переключателей. Данное решение связано с тем, что бюджетная панель управления стоит около 12-13 тыс рублей. При этом Вы экономите на кнопках, переключателях, индикаторах, уменьшается конфигурация входов/выходов управляемого контроллера в связи с уменьшением управленческих сигналов. Взамен этого Вы получаете сенсорный экран с цветной визуализацией технологических процессов, возможностью архивирования действий оператора и аварийных событий, отображение показателей насоса (текущая частота, ток, мощность и т.д.), бюджетную диспетчеризацию через удаленное подключение к панели и многое другое;
  • при каскадном управлении желательно использовать частотный преобразователь на каждый насос, чтобы ограничить кратковременное пропадание питания при переключениях насосов. При этом конечно существует большое количество рабочих схем с каскадным управлением реализованных на контакторах, но о некоторых проблемах мы написали в статье выше;
  • используйте только качественные контакторы и автоматические выключатели. Это сильно влияет на надежность системы, так как срабатывания контакторов происходит довольно часто и с повышенными токами. В производстве шкафов управления насосов мы стараемся использовать (если Заказчик не настаивает на другом оборудовании) проверенные временем бренды: Schneider Electric, OEZ для коммутирующего и защитного оборудования;
  • систему автоматизации шкафов ШУН лучше реализовывать на бюджетных промышленных контроллерах или программируемом реле, а не на релейных схемах. Данное решение обусловлено большим функционалом и конфигурацией системы, при этом стоимость бюджетного контроллера порой сопоставима с релейной схемой (реле, таймеры времени для переключения по наработке и т.д.);
-5

Наша компания занимается производством шкафов управления насосов с разными конфигурациями и требованиями от Заказчика. Мы являемся прямыми импортерами разного промышленного оборудования используемого в ШУН (контроллеры, панели оператора, частотные преобразователи, УПП и т.д.), в связи с этим можем предоставлять конкурентную цену с высоким качеством продукции. Наша компания всегда готова предоставлять различные схемы подключений в формате dwg для проектных институтов на взаимовыгодных условиях и дорабатывать их под нужды Заказчика.

ПОЛЕЗНЫЕ ССЫЛКИ:

- шкафы управления насосами ШУН с частотным регулированием

- опросный лист на шкаф управления насосами ШУН

- частотные преобразователи M-Driver