Добавить в корзинуПозвонить
Найти в Дзене

Кухня в скандинавском стиле/ история проектирования от дизайнера

Добрый день, сегодня расскажу вам, как проектировали кухню для клиента в новостройке. Общий размер кухни 14 кв.м Тут будет все по классике, котел, трубы и кривые стены от застройщика😋 Заваривайте чай, начнем с начала. Вот наш замер кухни⬇⬇⬇ На замере мы видим, что котел находиться на расстоянии 2930 мм от стены, что дает нам в полной мере оборудовать рабочую зону. Канализационную трубу, мы решили, спрятать в короб, сделали мы его из стеновой панели, благодаря этому мы получили цельный красивый фартук. Справа от мойки мы расположили стиральную машинку, тем самым освободили место в ванной. Вы наверное уже заметили нишу с цветочком, она сделана специально для телевизора, чуть позже хозяева его повесят на место, а цветочек отравится на подоконник Кухня оснащена антресолями и доходит до потолка, фасады со стеклом выполнены в скандинавском стиле 😊 Над холодильником мы поставили открытые полки И завершает нашу кухню пенал сверху у него фасады, а снизу открытые полки, пенал имеет размер

Добрый день, сегодня расскажу вам, как проектировали кухню для клиента в новостройке.

Общий размер кухни 14 кв.м Тут будет все по классике, котел, трубы и кривые стены от застройщика😋

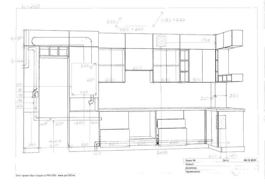
Заваривайте чай, начнем с начала. Вот наш замер кухни⬇⬇⬇

Замер кухонного гарнитура
Замер кухонного гарнитура

На замере мы видим, что котел находиться на расстоянии 2930 мм от стены, что дает нам в полной мере оборудовать рабочую зону.

-2

Канализационную трубу, мы решили, спрятать в короб, сделали мы его из стеновой панели, благодаря этому мы получили цельный красивый фартук. Справа от мойки мы расположили стиральную машинку, тем самым освободили место в ванной.

Ниша под тв
Ниша под тв

Вы наверное уже заметили нишу с цветочком, она сделана специально для телевизора, чуть позже хозяева его повесят на место, а цветочек отравится на подоконник

Крутая вытяжка + красавицы фасады
Крутая вытяжка + красавицы фасады

Кухня оснащена антресолями и доходит до потолка, фасады со стеклом выполнены в скандинавском стиле 😊

Полочки над холодильник
Полочки над холодильник

Над холодильником мы поставили открытые полки

-6

И завершает нашу кухню пенал сверху у него фасады, а снизу открытые полки, пенал имеет размер 300 мм, туда мы будем складывать полотенчики, салфеточки и разную кухонную утварь😊

Как вам такой проект? Расскажите чтобы вы добавили?

Более подробно рассказал об этом проекте в данном видео⬇⬇⬇