Добавить в корзинуПозвонить
Найти в Дзене
Алгоритм ремонта

Квартира в новостройке с неудобной общей зоной или как перепланировка позволила более рационально использовать пространство

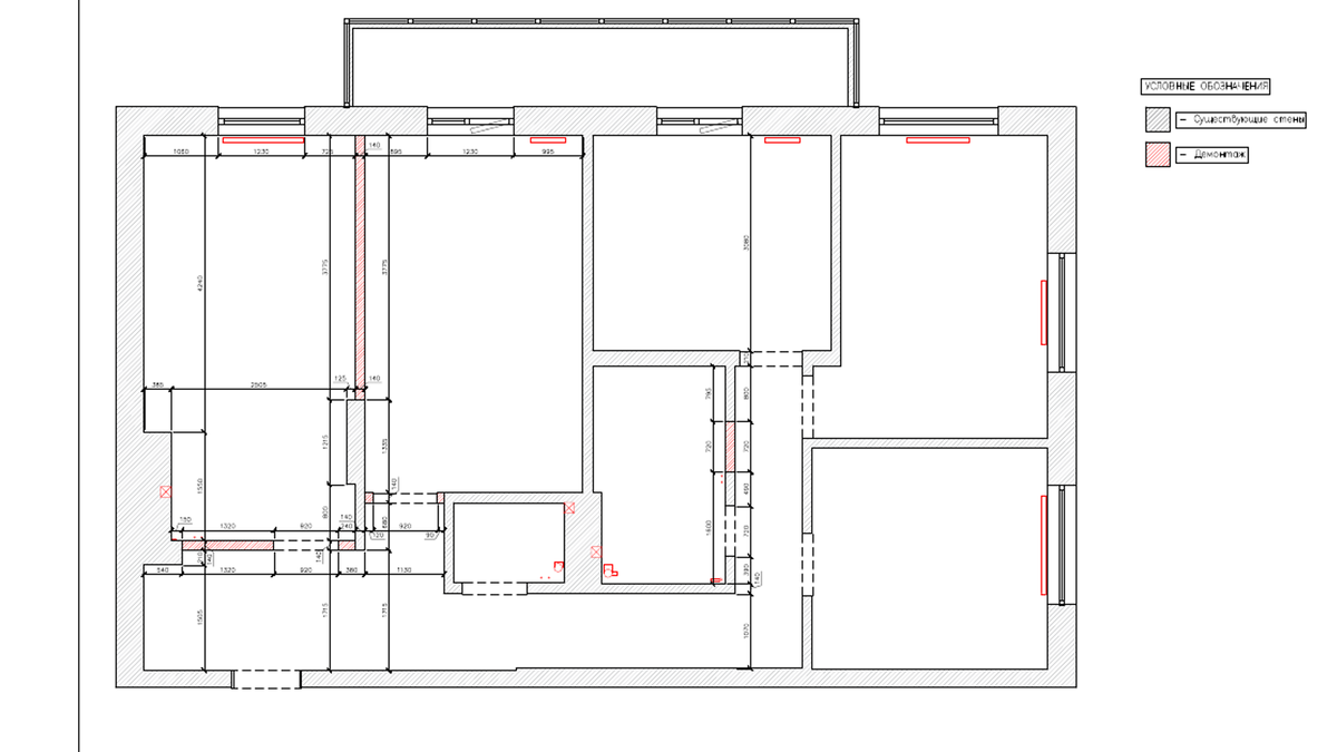
Обращаясь за дизайн-проектом клиенты студии хотят получить стильный, современный и гармоничный интерьер с интересной и удобной планировкой, с организацией больших внутренних пространств помещений с функциональным зонированием. И как чаще всего показывает практика - без перепланировки не обойтись. Приветствую Вас дорогие читатели всем доброго здравия! При разработке дизайн-проекта данной квартиры для молодой семьи дизайнерами студии Dktom была произведена следующая перепланировка: - демонтировали не несущую стену между кухней и гостиной и дверной проем в гостиную из коридора; - помещение кухни разделили вновь возведенной перегородкой и тем самым выделили помещение для гардеробной, что позволило одновременно сделать зону прихожей не проходной; - перенесли дверной проем в санузел, с целью устранить неудобства от расположения в узком коридоре дверей в комнату и санузел напротив друг друга, а также более рационально распланировать помещение санузла. Планировка ДО Планировка ПОСЛЕ Прихожая и
Оглавление

Обращаясь за дизайн-проектом клиенты студии хотят получить стильный, современный и гармоничный интерьер с интересной и удобной планировкой, с организацией больших внутренних пространств помещений с функциональным зонированием. И как чаще всего показывает практика - без перепланировки не обойтись.

Приветствую Вас дорогие читатели всем доброго здравия!

При разработке дизайн-проекта данной квартиры для молодой семьи дизайнерами студии Dktom была произведена следующая перепланировка:

- демонтировали не несущую стену между кухней и гостиной и дверной проем в гостиную из коридора;

- помещение кухни разделили вновь возведенной перегородкой и тем самым выделили помещение для гардеробной, что позволило одновременно сделать зону прихожей не проходной;

- перенесли дверной проем в санузел, с целью устранить неудобства от расположения в узком коридоре дверей в комнату и санузел напротив друг друга, а также более рационально распланировать помещение санузла.

Планировка ДО

Планировка ПОСЛЕ

-2

Прихожая и гардеробная

В результате перепланировки получилось очень рационально использовать пространство в прихожей.

В гардеробной, так как позволило наличие коммуникаций сопряженных с кухней, установили стиральную и сушильные машины.

В нише слева от входа установили встроенный шкаф с раздвижными зеркальными дверями.

А помещение кухни-гостиной получилось очень просторным 28,5 кв.м.

Интерьер в квартире выполнен в современном стиле. Основная цветовая гамма – это оттенки бежевого и серого цветов с яркими акцентами горчичного, коричневого и синего.

В качестве напольного покрытия во всех жилых помещениях и коридорах использовали ламинат, а в санузлах, прихожей, гардеробной и на балконе керамогранит Kerama Marazzi. В ванной комнате и на балконе установили теплые полы. Для отделки стен выбраны следующие материалы: краска, флизелиновые обои, фотообои и гипсовые панели.

Кухня -гостиная

Пространство кухни и гостиной зонировали при помощи острова с барной стойкой и освещения. В качестве яркого акцента на фоне светлых серо-бежевых цветов материалов отделки стен и кухонных фасадов, выступают горчичного цвета обеденные стулья, темно-коричневые барные стулья и стена с живыми растениями.

Кабинет

В кабинете одна из стен оформлена флизелиновыми обоями с ярким графическим рисунком, который как бы вобрал в себя все цветовые акценты, которые есть в интерьере квартиры. У противоположной стены установили большой книжный шкаф со стеклянными дверцами в рамах из МДФ, окрашенных в спокойный светло-синий цвет.

Спальня

В спальне использовали такой же прием в оформлении стен, как и в кабинете – за изголовьем кровати сделали акцентную стену используя флизелиновые обои светло-коричневого цвета с красным оттенком, а по бокам установили гипсовые 3D панели, выкрасив их под цвет обоев. Такой цвет хорошо гармонирует с основными серым и белыми цветами комнаты и разбавляет монохромность интерьера.

Детская

Для детской комнаты выбрали мягкий бежевый и светло-голубой цвета. На стене за кроватью и спортивной стенкой наклеены фотообои с картой мира. Продумано световые решения для детской: для общего освещения выбраны точечные потолочные светильники, над кроватью установили ночник с белым плафоном, а над столом два подвесных светильника. Шкаф для хранения одежды и игрушек сделан на заказ, внутреннее наполнение дизайнеры разрабатывали совместно с мебельщиками. Внизу шкафа, предусмотрены ячейки для легких тканевых коробов, которые ребенок сможет самостоятельно выдвигать, чтобы доставать или складывать игрушки.

Санузлы

В квартире устроено два санузла. В качестве отделки использовали керамогранит от компании Kerama Marazzi. Заказчики для санузлов выбрали смесители, душевую стойку, полотенце сушитель и аксессуары черного цвета. Все коммуникации были спрятаны во встроенные шкафы.

Всем уюта, комфорта и тепла.

Ремонт на этом объекте уже завершён, Вы можете сравнить проект и его реализацию.

Если Вы решили сделать ремонт. Начните его с Dktom!

Понравилась Вам такая перепланировка, считаете ли вы её удобной, оставляйте комментарии❗❗❗делитесь своим мнением. Обсудим😊Ставьте лайки👍 Спасибо.

#ремонт #дизайн интерьеров #дизайнеры #стиль #дизайн квартир #перепланировка в квартире #перепланировка