Найти в Дзене
Дом в Крыму

Завершен первый этап строительства дома в Межгорье

Добрейшего времени суток!
В красивейшем месте, в Межгорье, завершили первый этап строительства одноэтажного дома 98м2 из экологически чистых сип панелей нашего производства.
Этот объект мелькал уже в наших новостях, с ним была связана небольшая заминка - погода не давала залить фундамент, из-за чего мы вышли из графика.
Однако дожди и разливы рек позади. Надежный ленточный фундамент с железобетонной плитой залиты. Стены из негорючего и влагостойкого фибролита, с клееным брусом в качестве опорной части, стоят на своих местах. Четырехскатная кровля из металлочерепицы, с подшитыми фронтонами и установленной водосточной системой фирмы Docke, уже радует взгляд заказчика:)
Теперь наступил этап отделочников, сантехников и электриков.
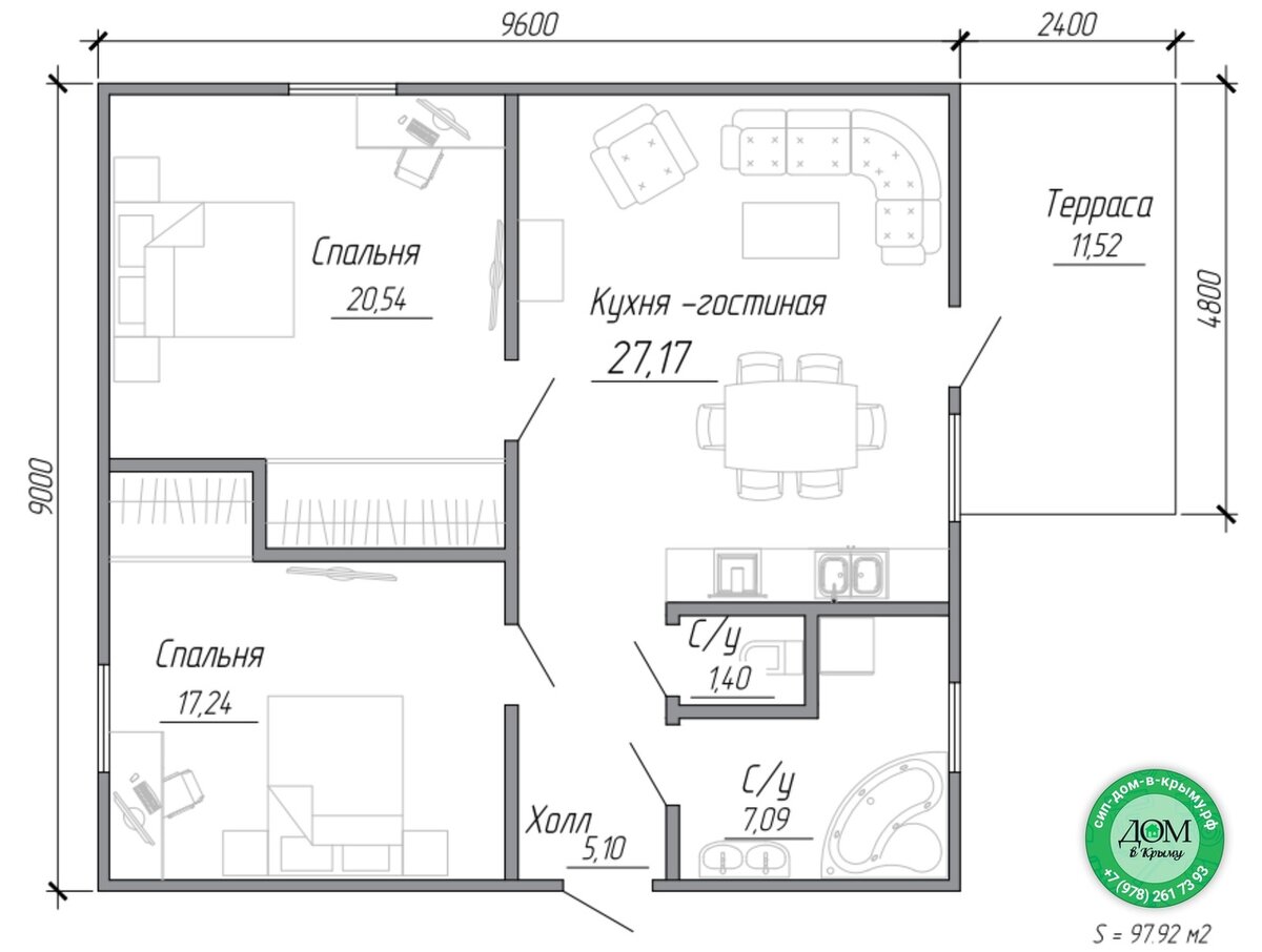
Смотрите, планировку во вложениях к посту. Если вам интересна стоимость такого дома пишите комментарии, сообщения или звоните по телефону +79782186194
Всем всех благ! На связи:)
#домвкрыму #сипдом #сипкрым

Добрейшего времени суток!

В красивейшем месте, в Межгорье, завершили первый этап строительства одноэтажного дома 98м2 из экологически чистых сип панелей нашего производства.

Этот объект мелькал уже в наших новостях, с ним была связана небольшая заминка - погода не давала залить фундамент, из-за чего мы вышли из графика.

Однако дожди и разливы рек позади. Надежный ленточный фундамент с железобетонной плитой залиты. Стены из негорючего и влагостойкого фибролита, с клееным брусом в качестве опорной части, стоят на своих местах. Четырехскатная кровля из металлочерепицы, с подшитыми фронтонами и установленной водосточной системой фирмы Docke, уже радует взгляд заказчика:)

Теперь наступил этап отделочников, сантехников и электриков.

Смотрите, планировку во вложениях к посту. Если вам интересна стоимость такого дома пишите комментарии,
сообщения или звоните по телефону +79782186194

Всем всех благ! На связи:)

#домвкрыму #сипдом #сипкрым