Добавить в корзинуПозвонить
Найти в Дзене

Проект квартиры в классике в жк "Император" г. Бишкек 260 м2

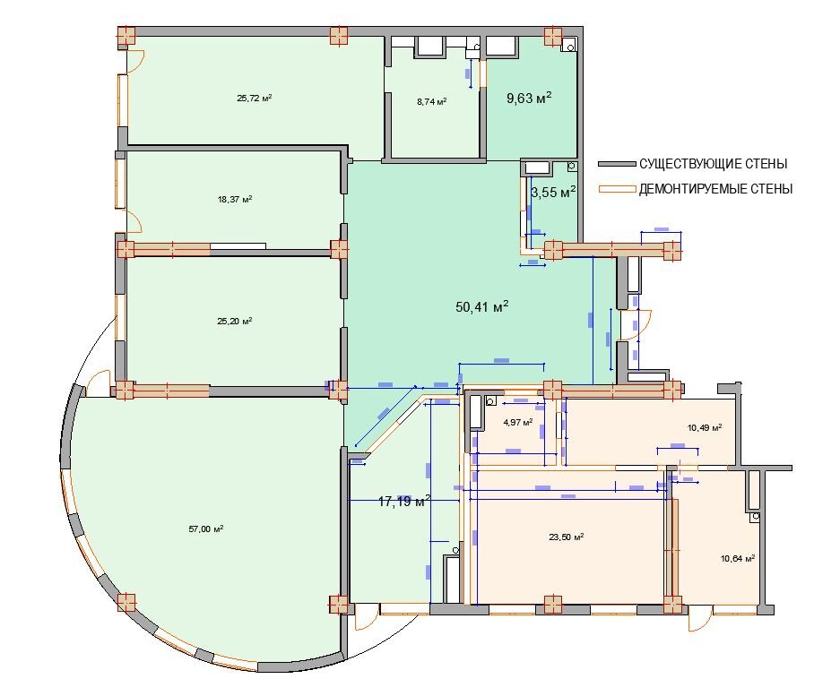
Планировка от застройщика выглядела вот так На самом деле здесь две квартиры. Зелёненькая и Оранжевая ) нужно было их объединить с максимальной пользой для нас и с минимальными геморроями для строителей. Как вы можете заметить, застройщик предлагает холл в 50 квадратных метров. Шикарно конечно, но на секундочку, это ж плюс минус квадратура однушки. Короче, с таким холлом нужно что то делать. Жилую комнату туда не впихнуть, там нет окон, поэтому будет рационально вместить туда часть технических помещений. Финальный план с мебелью выглядит вот так За счёт холла был увеличен гостевой санузел, рядом с ним образовалась прачечная, а от кухни мы сделали небольшую кладовку. Кухня была увеличена за счёт присоединения второй квартиры. Плюс добавилась спальня и санузел. При распределении сан узлов нужно обратить внимание на подвод стояков и вытяжек. В нашем случае на две квартиры было три стояка, поэтому расстановка раковин и унитазов во многом была продиктована местоположением слива. Начнём о

Планировка от застройщика выглядела вот так

-2

На самом деле здесь две квартиры. Зелёненькая и Оранжевая ) нужно было их объединить с максимальной пользой для нас и с минимальными геморроями для строителей. Как вы можете заметить, застройщик предлагает холл в 50 квадратных метров. Шикарно конечно, но на секундочку, это ж плюс минус квадратура однушки. Короче, с таким холлом нужно что то делать. Жилую комнату туда не впихнуть, там нет окон, поэтому будет рационально вместить туда часть технических помещений.

Финальный план с мебелью выглядит вот так

-3

За счёт холла был увеличен гостевой санузел, рядом с ним образовалась прачечная, а от кухни мы сделали небольшую кладовку.

Кухня была увеличена за счёт присоединения второй квартиры. Плюс добавилась спальня и санузел.

При распределении сан узлов нужно обратить внимание на подвод стояков и вытяжек. В нашем случае на две квартиры было три стояка, поэтому расстановка раковин и унитазов во многом была продиктована местоположением слива.

Начнём обзор с холла

-4
-5
-6

-7
-8

Так как помещение не маленькое, ни одно из готовых пано не подходило по размеру, поэтому я разработала индивидуальный рисунок, который был вырезан при помощи гидроабразивной резки специально под наши размеры и под нашу плитку. Плитка из холла переходит в кухню, и этот момент нужно было технически очень точно реализовать. Короче говоря, мы с мастерами по гидрорезу очень сильно постарались, чтобы получилась эта красота )))

процесс укладки узора из плитки
процесс укладки узора из плитки

рисунок пола был разработан индивидуально под данный проект
рисунок пола был разработан индивидуально под данный проект

Теперь рассмотрим кухню

-11
-12
-13
-14
-15

Каждый элемент лепнины разрабатывался индивидуально, но в итоге, при реализации часть этих элементов была упрощена. Ну в целом кому как нравится. Заказчики так решили сами без меня.

-16
-17

Гостиная в этом проекте 50 квадратов

-18
-19
-20

Лепнины в этом проекте было очень много, и вся она ехала к нам по заказу из России. Все элементы были подобраны мной лично.

Лепнина из полеуретана от RODECOR
Лепнина из полеуретана от RODECOR
Фото реализации
Фото реализации
-23
Розетка на потолке от RODECOR
Розетка на потолке от RODECOR

Теперь покажу спальню родителей

-25
-26
-27

Фото готового объекта
Фото готового объекта
-29
Розетки и выключатели WERKEL Лепнина от Европласт
Розетки и выключатели WERKEL Лепнина от Европласт
-31

Детская спальня для мальчиков

-32
-33
-34

а вот фото с объекта

-35
-36
-37

Спальня дочки в берюзовых тонах

-38
-39
-40

Фотообои от Affresco так же привезли на заказ, для заказчиков рисунок исправили и убрали изображения птиц, из религиозных соображений. Лепнина от Европласт

фото с реализованного объекта
фото с реализованного объекта
-42
-43
-44

в сан узле под эту спальню мы подобрали плитку с похожим рисунком. Плитка от Kerama Marazzi

-45
-46
-47
-48
-49
Цвет мебели подбирали под оттенок плитки
Цвет мебели подбирали под оттенок плитки

Дальше сан узел в родительской спальне

-51
-52
-53

Плитка Италия Brenero La Preziosa

-54

-55

Гостевой сан узел

-56
-57
-58

И фото

-59
-60

Хочу поподробнее показать двери из этого проекта. Они тоже были разработаны индивидуально. Это не готовая дверь из магазина или шаблон у столяра, это технически сложная и, не побоюсь этого слова, инженерно-продуманная часть сложного проекта. Витраж был собран вручную. А каждая столярная деталь разработана с нуля для ЧПУ, и отшлифована вручную.

-61
-62
-63
-64
-65
-66
-67
-68

Этот проект был реализован практически один в один с визуализацией. Было много моментов, которые решались мною лично. И это было бы не возможно без стопроцентного доверия заказчиков.