Найти в Дзене

Необычный дизайн детской для подростка в частном доме на втором этаже

Хотелось бы узнать вообще мнение об этой спальне . Пишите в комментариях. Но сначала давайте разберёмся с планировкой Если вы совсем не разбираетесь в чертежах , то поясню что это вид сверху целого этажа , комната в котором находится внизу чертежа , где нарисован человечек. Немного о хозяине данной комнаты .. Девочка-подросток четырнадцати лет , любит по большей степени мальчиковый стиль в одежде и во всем остальном , стиль унисекс, подойдёт как для мальчика так и для девочки . Так как сам дом находится за городом мы приняли решение с клиентом сделать его в стиле лофт , свободном и ни к чему не обязывающему. Вот кстати и он сам . Расскажу о нем позже , когда целиком все будет готово , а пока немного отдельно о детской . Вернёмся к комнате девочки . Признаюсь , не с первого и не со второго раза мы определили стиль и финишный вариант .Изголовье кровати выполнено из слэба , паркет на полу уложен ёлочкой , цвет стен хаки и терракот . Комната с гардеробом расположена на мансардном эта

Хотелось бы узнать вообще мнение об этой спальне . Пишите в комментариях.

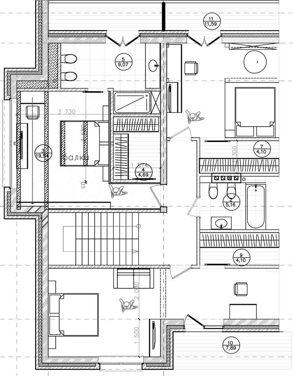
Но сначала давайте разберёмся с планировкой

План второго этажа в загородном доме
План второго этажа в загородном доме

Если вы совсем не разбираетесь в чертежах , то поясню что это вид сверху целого этажа , комната в котором находится внизу чертежа , где нарисован человечек.

Немного о хозяине данной комнаты .. Девочка-подросток четырнадцати лет , любит по большей степени мальчиковый стиль в одежде и во всем остальном , стиль унисекс, подойдёт как для мальчика так и для девочки .

Дизайн детской для девочки
Дизайн детской для девочки

Так как сам дом находится за городом мы приняли решение с клиентом сделать его в стиле лофт , свободном и ни к чему не обязывающему.

Вот кстати и он сам . Расскажу о нем позже , когда целиком все будет готово , а пока немного отдельно о детской .

Фотография  дома за городом . Волгоград
Фотография дома за городом . Волгоград

Вернёмся к комнате девочки .

Визуализация дизайна детской для девочки
Визуализация дизайна детской для девочки

Признаюсь , не с первого и не со второго раза мы определили стиль и финишный вариант .Изголовье кровати выполнено из слэба , паркет на полу уложен ёлочкой , цвет стен хаки и терракот .

Комната с гардеробом расположена на мансардном этаже , поэтому кровлю решили оставить скатной , для особого настроения и атмосферы.