Добавить в корзинуПозвонить
Найти в Дзене
Дизайн Мышления

Как исправить неудачную планировку хрущевки. Разбор планировки

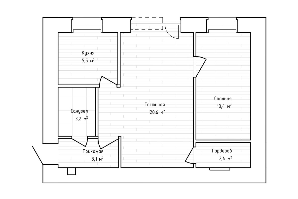
Разбирать планировку квартиры мы будем на примере двухкомнатной квартиры дома серии 1-511. Это серия жилых домов в СССР, разработана в конце 1950-х годов, широко распространена в нашей стране. Если вы посмотрите на планировку ниже, то в ней вы узнаете самую обычную двушку в хрущевке. В этой статье мы расскажем о «планировочных» проблемах этой квартиры и покажем как их исправить. Исходные данные Площадь 45 кв.м Живет два человека Большие проблемы маленькой квартиры У планировок в этих квартирах много проблем. Большинство из них обусловлено строительными нормами Советского Союза. Коридор в гостиной Мы стараемся всегда избавляться от коридоров, когда это возможно, потому что коридор это бесполезные квадратные метры, за которые вы заплатили, но никак не используете. Помимо этого, в данном случае коридор доставляет множество других проблем, превращает гостиную в транзитную зону и мешает поставить диван. Проблемная гостиная В гостиной с такой планировкой сложно найти место для дивана — как у
Оглавление

Разбирать планировку квартиры мы будем на примере двухкомнатной квартиры дома серии 1-511. Это серия жилых домов в СССР, разработана в конце 1950-х годов, широко распространена в нашей стране.

Если вы посмотрите на планировку ниже, то в ней вы узнаете самую обычную двушку в хрущевке. В этой статье мы расскажем о «планировочных» проблемах этой квартиры и покажем как их исправить.

Исходные данные

Площадь 45 кв.м

Живет два человека

Большие проблемы маленькой квартиры

У планировок в этих квартирах много проблем. Большинство из них обусловлено строительными нормами Советского Союза.

Коридор в гостиной

Коридор на плане квартиры
Коридор на плане квартиры

Мы стараемся всегда избавляться от коридоров, когда это возможно, потому что коридор это бесполезные квадратные метры, за которые вы заплатили, но никак не используете. Помимо этого, в данном случае коридор доставляет множество других проблем, превращает гостиную в транзитную зону и мешает поставить диван.

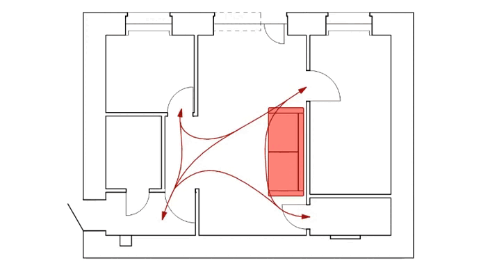
Проблемная гостиная

Куда ставим диван?
Куда ставим диван?

В гостиной с такой планировкой сложно найти место для дивана — как уже мы упомянули выше, гостиная является транзитной зоной. Таким образом, в коридоре нельзя разместить телевизор, так как он будет мешать при эксплуатации, «висеть на проходе», что делает невозможным размещения дивана вдоль стены напротив.

С другой стороны, из-за дверей и балкона нельзя разместить диван вдоль несущих стен, а размеры помещения не позволяют поставить диван по центру.

Поскольку гостиная является транзитной, в этой квартире сложно жить с детьми, так как довольно проблематично сохранять приватность как ребенка, так и родителя.

Узкая спальня

Узкая спальня
Узкая спальня

Узкая спальня не позволяет разместить большую кровать, помещается только кровать с матрасом на 140, но и при таком решении, проходы остаются узкими и не комфортными.

Маленький гардероб

Гардероб с размерами на плане квартиры
Гардероб с размерами на плане квартиры

Маленький гардероб не позволяет разместить в нем шкафы глубиной 600 мм. Из-за такого решения мы не можем использовать гардероб как полноценное место хранения, поэтому придется использовать в этих целях жилое пространство квартиры. О минусах этого решения вы можете прочитать в нашей статье про Организацию и хранение.

Проблема кухни

Кухня с размерами на плане квартиры
Кухня с размерами на плане квартиры

Не все так гладко и в пространстве кухни. У маленькой по размерам кухни есть ещё один большой недостаток: нет возможности поставить кухню вдоль длинной стены, так чтобы кухонный гарнитур не перекрывал оконный проем. Происходит это из-за стандартной глубины кухонного шкафа 600 мм, в то время как простенок между окном и стеной 550 мм, таким образом, кухня «заходит» на подоконник и перекрывает оконный проем.

И многое другое

Конечно, это не все проблемы в этой квартире, особо можно выделить маленький санузел и узкую прихожую. Санузел визуально хочется расширить, забрав пространство «упомянутого выше коридора», но в силу норм и ограничений Российского законодательства, от этих проблем избавиться мы не сможем.

Например, мы не можем расширить санузел в пространство коридора в гостиной, так как согласно СП 54.13330.2016 нельзя размещать мокрые зоны над жилыми комнатами.

Исправляем

С учетом всех минусов, описанных выше, в этих квартирах есть одно большое преимущество — можно снести все стены, за исключением переноса санузла и кухни, что делает возможности по перепланировке более гибкими.

План квартиры после перепланировки
План квартиры после перепланировки

Сначала про места хранения

Самое первое с чего нужно начать — нужно определиться, сколько вещей будет храниться в квартире.

Зная, что нам нужно поставить более широкую кровать, и сделать большую гардеробную для двух человек, мы переносим стену между гостиной и спальней так, чтобы ширина гардероба получилась 2500 мм. Такой размер позволит встроить гардеробную ПАКС от IKEA или любого аналога (размеры везде стандартные). Как результат — нет свободного, пустого, неиспользуемого пространства: шкафы будут плотно прилегать к стенам, поэтому не обязательно делать гардеробную на заказ, что существенно экономит бюджет.

Далее спальня

В спальню можно поставить более широкую кровать, так как благодаря переносу стены, мы расширили пространство спальни. Конечно, мы немного сократили глубину спальни за счет увеличения гардеробной, но нужно понимать, что хозяева квартиры собираются использовать спальню только для сна, хранить вещи в спальне больше не понадобится.

У кровати остался только один проход, но спальное место стало намного шире, а мест хранения хватит для всей одежды
У кровати остался только один проход, но спальное место стало намного шире, а мест хранения хватит для всей одежды

Что делать с «тем самым коридором»?

Советским проектировщикам необходимо было выполнить норму жилой площади на человека, поэтому этот коридор пришлось отнести к пространству гостиной.

Пространство коридора в гостиной мы отдали под хозяйственную комнату: там будут храниться пылесос, бытовая химия, средства для личной гигиены, также можно разместить стиральную машину, тем самым сократив количество техники на кухне, хотя мы так делать не рекомендуем, потому что это будет нарушением СП про мокрые зоны.

Таким образом, места хранения разделены: есть хозяйственно-бытовой блок с хранением предметов для поддержания порядка в доме, и есть полноценная гардеробная комната, разделенная на мужскую и женскую половины, чтобы хранить одежду и обувь в чистоте и порядке.

Возвращаемся к кухне

Кухню, также как и санузел, нельзя расширять по нормам Российского законодательства, поэтому мы оставили её в границах исходного помещения, но перенесли вход.

На планировке видно, что визуально пространство кухни и гостиной объединены, но есть одна хитрость: так как нельзя объединять газифицированное помещение с негазифицированным (п. 10.16 Приложения 1 к ППМ №508-ПП), мы установили между кухней и гостиной стеклянную перегородку. Визуально пространство выглядит общим, но при этом нормы соблюдены.

Расположение кухни напротив окна делает работу хозяина комфортнее, так как на рабочую поверхность попадает много света. В квартире проживает только два человека, следовательно четыре секции кухни вполне достаточно. Но, если нужно больше хранения, кухню можно сделать угловой, например, сделав на заказ систему хранения до 550 мм и разместив там рабочую зону. Всю технику можно разместить напротив окна.

Для кухни предусмотрено специальное пространство
Для кухни предусмотрено специальное пространство

Получившийся размер помещения позволяет использовать стандартные кухонные шкафы 600х600, что помогает экономить бюджет, так как есть возможность купить готовую кухню, а не делать её на заказ. При перепланировке всегда нужно помнить — производство мебели на заказ намного дороже покупки готовой мебели.

Разберемся с санузлом

Санузел остался в прежних границах, но мы убрали все лишние места хранения в хозяйственную комнату. Таким образом, в пространстве санузла осталась только сантехника, расположенная вдоль одной стены. Душевую можно заменить на ванну.

Размещение сантехники в санузле
Размещение сантехники в санузле

А теперь про гостиную

Пространство гостиной — это центр притяжения всей семьи, место общения, хотя часто значение гостиной недооценивают. Исходя из потребностей хозяев, в гостиной нужно совместить несколько разных по функциональному значению зон: обеденную зону, зону приема гостей и зону отдыха. Последние две зоны можно объединить в одну: для этого мы создадим лаундж-композицию — разместим телевизор, диван, кресло и журнальный столик. Телевизор можно разместить напротив дивана, при эксплуатации он не будет мешать.

Обеденная зона вынесена из кухни по ряду причин: увеличение рабочего пространства на кухне, наличие естественного света от окна (в отличие от размещения стола в простенке между окон), композиционная целостность (стол стоит посередине и в конце комнаты, завершая осевую композицию).

Также в гостиной можно при желании разместить небольшой письменный стол, если это необходимо для организации рабочего места.

-11

Таким образом, мы получили функциональное и гармоничное пространство. Если статья понравилась - подписываемся и жмем сердечки ❤️