Добавить в корзинуПозвонить
Найти в Дзене
Realt.by

Кабинет с видом на Националку и неубиваемые материалы. Вот какую квартиру сделали минские дизайнеры

Новый проект в Минске, реализованный студией Protena, показывает журнал CityDog. Дизайнер и архитектор студии в тандеме создали интерьер для двухкомнатной квартиры под сдачу в аренду. Смотрите, что у них получилось. Планировка Эта квартира в новостройке сдавалась со свободной планировкой, поэтому авторы проекта могли зонировать ее по своему усмотрению. В финальном варианте на 53 метрах получилось обустроить общее пространство гостиной, кухни и прихожей с небольшим кабинетом за перегородкой и отдельную спальню с гардеробной. — Квартира предназначалась для сдачи в аренду, поэтому в отделке и мебели мы использовали легко восстанавливаемые и максимально неубиваемые материалы, — добавляет дизайнер. — На стенах — краска, на полу — плитка. Двери покрашены в цвет стен. Гостиная, объединенная с кухней и прихожей Квартира расположена в новом доме на 22-м этаже. Через большие окна в пол открывается красивый вид на город и Слепянскую водную систему. Вечером в окне светится Национальная библиотека.
Оглавление

Новый проект в Минске, реализованный студией Protena, показывает журнал CityDog. Дизайнер и архитектор студии в тандеме создали интерьер для двухкомнатной квартиры под сдачу в аренду. Смотрите, что у них получилось.

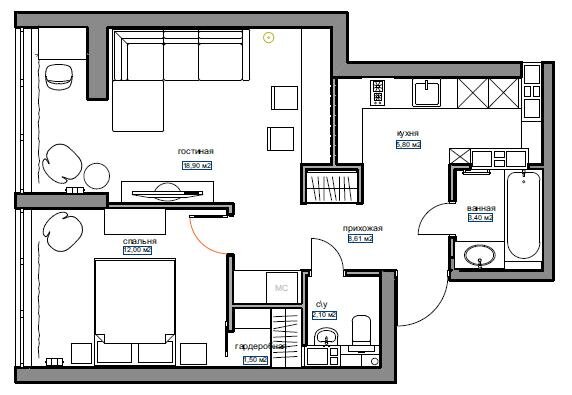
Планировка

Эта квартира в новостройке сдавалась со свободной планировкой, поэтому авторы проекта могли зонировать ее по своему усмотрению. В финальном варианте на 53 метрах получилось обустроить общее пространство гостиной, кухни и прихожей с небольшим кабинетом за перегородкой и отдельную спальню с гардеробной.

-2

— Квартира предназначалась для сдачи в аренду, поэтому в отделке и мебели мы использовали легко восстанавливаемые и максимально неубиваемые материалы, — добавляет дизайнер. — На стенах — краска, на полу — плитка. Двери покрашены в цвет стен.

-3

Гостиная, объединенная с кухней и прихожей

Квартира расположена в новом доме на 22-м этаже. Через большие окна в пол открывается красивый вид на город и Слепянскую водную систему. Вечером в окне светится Национальная библиотека.

-4

По словам дизайнера, с этим заказчиком работали уже не первый раз, поэтому его пожелания и предпочтения авторам были известны. Так появился минималистичный, но довольно яркий (хочется сказать «сочный») интерьер.

Основным акцентом в интерьере стал насыщенный терракотовый цвет, который, с одной стороны, зонирует помещения, а с другой — служит ярким акцентом в пространстве. Например, возле серого дивана в гостиной.

-5

Возле окна в гостиной авторы проекта разместили рабочее место. Благодаря перегородке получился практически отдельный кабинет со всем необходимым — столом, креслом, небольшим настольным светильником и розетками.

Напротив — удобное кресло с журнальным столиком. Там должно быть комфортно отдыхать или размещать гостей.

-6
-7

Кухня

Кухня в квартире достаточно маленькая, поэтому вся мебель для нее сделана в белом цвете. Так она сливается со стенами и визуально не «утяжеляет» пространство. Кстати, всю корпусную мебель для проекта делали на заказ по индивидуальным эскизам авторов. Мягкую мебель тоже изготавливали под нужные размеры. Все остальное подбирали в IKEA.

-8
-9
-10
-11

Санузлы

Санузлы в квартиры раздельные, но в них использована общая цветовая гамма. Все аксессуары выполнены в темном графитовом оттенке, а в качестве акцентного цвета в отделке тумбы под раковиной использовали терракотово-красный. Благодаря этому интерьер получился довольно сдержанным, но точно не скучным.

-12
-13
-14

Спальня

— В спальне мы использовали такой же прием, как и в гостиной: фоном для серой кровати стала акцентная стена насыщенного терракотового цвета, — рассказывает дизайнер. — А самым необычным предметом в интерьере я бы назвала откатную дверь в гардеробную. Довольно строгую обстановку комнаты она делает немного «легче» и уютнее.

-15
-16
-17