Найти в Дзене

Одноэтажный дом 60 метров квадратных

Небольшой домик для двух человек, подойдет молодой семье и одним ребёнком, взрослым людям которые не хотят огромный дом. Чем больше дом тем больше расходы как правило, на долгосрочный период. Как мы видим в планировочном решении у нас всего две жилых комнаты, по сути каждый день человек использует одну, вторая комната используется как гостевая комната. Проходная комната у нас кухня гостинная( диванная группа с телевизором. На входе тамбур с гардеробом. Из кухни гостинной нас есть выход на террасу, очень удобно приготовил еду вынес не террасу посидел попил кофе или чай. ☝️ Если вам нужно заказать проект дома или таунхауса пишите мне 📝
Дом с террасой гараж и навес отдельно
Дом с террасой гараж и навес отдельно

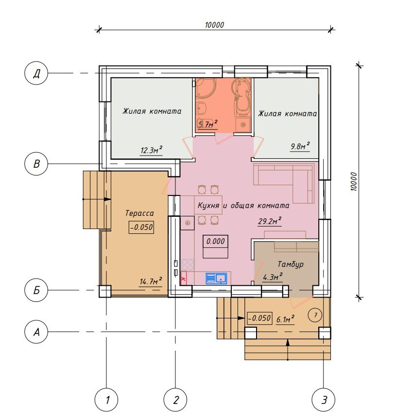
Небольшой домик для двух человек, подойдет молодой семье и одним ребёнком, взрослым людям которые не хотят огромный дом. Чем больше дом тем больше расходы как правило, на долгосрочный период.

Планировочное решение дома
Планировочное решение дома

Как мы видим в планировочном решении у нас всего две жилых комнаты, по сути каждый день человек использует одну, вторая комната используется как гостевая комната. Проходная комната у нас кухня гостинная( диванная группа с телевизором. На входе тамбур с гардеробом. Из кухни гостинной нас есть выход на террасу, очень удобно приготовил еду вынес не террасу посидел попил кофе или чай.

Терраса дома
Терраса дома

☝️ Если вам нужно заказать проект дома или таунхауса пишите мне 📝