Добавить в корзинуПозвонить
Найти в Дзене

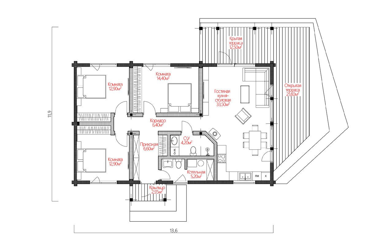
Проект дома из клеёного бруса "Приморск"

МАЙСКАЯ АКЦИЯ! Выгода 900 000 рублей! Полностью готовый снаружи дом из клееного бруса 133м2 всего 5 млн. руб! Компания "Трилогия" разработала проект дома из клеёного бруса "Приморск". Это уютный и стильный, силуэт дома без лишних деталей с легкостью впишется в любой ландшафт. В этом компактном доме есть всё необходимое для комфортной жизни: три спальни, большая гостиная, объединённая в единое пространство с кухней, и просторная терраса часть, которой закрыта и дает возможность укрыться от жаркого солнца, терраса, открытая с трёх сторон для воздуха и солнца. Панорамное окно оригинальной формы наполняет дом светом даже в пасмурные дни и придаёт фасаду динамику. Планировка проекта Характеристики проекта Комплектация Дом в комплектации "теплый контур": Наружная отделка: В стоимость проекта не включено: Фундамент – тип и стоимость определяется после обследования участка, преимущественно применяется монолитная железобетонная плита с ростверком, общей высотой от поверхности грунта – 400 мм
Оглавление

МАЙСКАЯ АКЦИЯ!

Выгода 900 000 рублей!

Полностью готовый снаружи дом из клееного бруса 133м2 всего

5 млн. руб!

Компания "Трилогия" разработала проект дома из клеёного бруса "Приморск". Это уютный и стильный, силуэт дома без лишних деталей с легкостью впишется в любой ландшафт. В этом компактном доме есть всё необходимое для комфортной жизни: три спальни, большая гостиная, объединённая в единое пространство с кухней, и просторная терраса часть, которой закрыта и дает возможность укрыться от жаркого солнца, терраса, открытая с трёх сторон для воздуха и солнца. Панорамное окно оригинальной формы наполняет дом светом даже в пасмурные дни и придаёт фасаду динамику.

Планировка проекта

-2
-3

Характеристики проекта

  • Общая площадь - 133,11
  • Технология строительства - Клееный брус
  • Площадь внутренних помещений - 96,06
  • Площадь террасы и крыльца - 37,05
  • Габариты - 11,9х13,6
  • Этажность - 1
  • Количество комнат - 4
  • Количество санузлов - 2
  • Второй свет – Есть
-4

Комплектация

Дом в комплектации "теплый контур":

  • Стены из клееного бруса толщиной 200 х190 мм.
  • Зимние металлопластиковые окна Rehau толщиной 70мм с двухкамерными стеклопакетами
  • Кровля - металлочерепица Grand Line толщиной 0,5 мм, долговечное покрытие Satin
  • Водосточная система металлическая Grand Line система снегозадержания
  • Финские вентиляционные выходы VILPE c колпаками

Наружная отделка:

  • Внешние малярные работы: шлифовка, грунтовка и покраска в 2 слоя
  • Крашенные наличники на окна и двери
  • Подшивка свесов, карнизные и ветровые доски

В стоимость проекта не включено:

Фундамент – тип и стоимость определяется после обследования участка, преимущественно применяется монолитная железобетонная плита с ростверком, общей высотой от поверхности грунта – 400 мм.

Внутренняя отделка и инженерные сети: рассчитываются на основании дизайн-проекта или согласованного с Заказчиком Технического Задания.

Проект «Приморск» относится к числу лидеров по количеству реализованных проектов за год, ведь он очень полюбился нашим клиентам.

Записаться на просмотр построенного дома по проекту «Приморск» можно по телефону: +7(812) 660-58-11. А получить подробную презентацию проекта с детализацией стоимости вы можете просто написав нам.