Найти в Дзене

5 вариантов загородных домов ценой меньше 10,5 млн

Оказывается, чтобы построить загородный дом, не нужно тратить полжизни и все сбережения. Красивый, современный, уютный дом для постоянного проживания обойдется не дороже 10,5 млн «под крышу». И заселиться в него можно уже через 9–12 месяцев — после завершения этапов инженерии и отделки. ГК «Рубкофф» показывает 5 домов для семей с разными потребностями и бюджетом. За 12 лет компания сдала сотни домов — от бань до загородных усадеб премиум-класса. Ребята умеют строить качественно, в срок и в рамках бюджета. В стоимость домов из подборки входят: Какой дом построить Вместе с архитектором ГК «Рубкофф» мы подобрали 5 проектов домов для семей с разными потребностями и планами. Все проекты оптимизированы, чтобы снизить цену, не теряя в качестве. В них нет сложных элементов, которые увеличивают смету, но не всегда действительно нужны. Количество материалов рассчитано так, чтобы по возможности использовать их полностью без лишних переплат. Проект П208. Дом для большой семьи ― с галереей Дом для
Оглавление

Оказывается, чтобы построить загородный дом, не нужно тратить полжизни и все сбережения. Красивый, современный, уютный дом для постоянного проживания обойдется не дороже 10,5 млн «под крышу». И заселиться в него можно уже через 9–12 месяцев — после завершения этапов инженерии и отделки.

ГК «Рубкофф» показывает 5 домов для семей с разными потребностями и бюджетом. За 12 лет компания сдала сотни домов — от бань до загородных усадеб премиум-класса. Ребята умеют строить качественно, в срок и в рамках бюджета.

В стоимость домов из подборки входят:

  1. проектная документация;
  2. строительные работы до этапа «под крышу»;
  3. технадзор (следит, чтобы на стройке использовались качественные материалы, а все работы велись с соблюдением технологии);
  4. персональный менеджер (будет рядом на каждом этапе работ, подстроится под вас ― ответит на вопросы даже в девять вечера в субботу);
  5. консультация архитектора.

Какой дом построить

Вместе с архитектором ГК «Рубкофф» мы подобрали 5 проектов домов для семей с разными потребностями и планами. Все проекты оптимизированы, чтобы снизить цену, не теряя в качестве. В них нет сложных элементов, которые увеличивают смету, но не всегда действительно нужны. Количество материалов рассчитано так, чтобы по возможности использовать их полностью без лишних переплат.

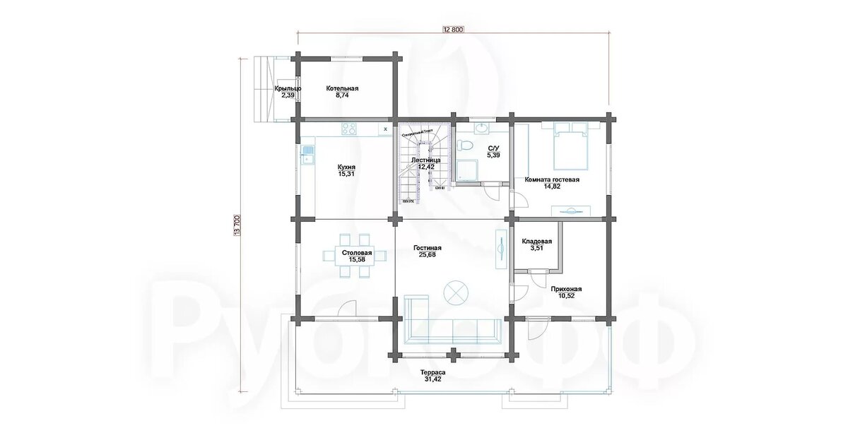
Проект П208. Дом для большой семьи ― с галереей

Дом для большой семьи ― 4 спальни, 3 санузла, большая галерея на втором этаже, которую можно превратить в игровую. Когда дети вырастут, галерею легко переоборудовать в дополнительную зону отдыха, а спальню на первом этаже ― в кабинет.

Есть большая терраса. Можно сделать раздвижные двери и соединить ее со столовой — получится уютное место для семейных обедов или вечернего чая летом.

Цена:

Общая ― 10 400 000 рублей

За кв. м ― 42 276 рублей

Проект П298. Дом для большой семьи ― с гаражом

Дом с двумя этажами полной высоты, без мансарды. Можно выполнить не только в брусе, но и в камне — простоит долго, и под его крышей соберется не одно поколение семьи. В таком доме прохладно летом и тепло зимой ― можно сэкономить на обогревателях и кондиционерах.

Дом рассчитан на большую семью, в нем 4 спальни: одна на первом этаже, три ― на втором. Из гаража можно сделать черный вход через котельную, чтобы не выходить на улицу в дождь или мороз.

Цена:

Общая ― 7 835 000 рублей

За кв. м ― 38 980 рублей

Проект П177. Дом для активной семьи ― с игровой зоной и местом для тренажеров на террасе

Дом подойдет тем, кто решил растить детей за городом. Рассчитан на семью из 4–5 человек ― в проекте предусмотрены 4 спальни с вместительной гардеробной в каждой. Терраса также спроектирована с расчетом на семью ― 22,91 кв. м точно хватит, чтобы собраться с детьми за ужином или радушно принять гостей.

Цена:

Общая ― 7 890 000 рублей

За кв. м ― 43 543 рублей

Проект П293. Уютный домик — с баней и террасой

Идеальный небольшой дом для поездок за город на выходные или постоянного проживания. Особенность проекта ― огромная терраса буквой «Г». На ней можно ловить солнце или прятаться от него, в зависимости от того, как дом расположен по сторонам света. Дом совмещен с баней ― после парной не придется выходить на улицу.

Цена:

Общая ― 7 600 000 рублей

За кв. м ― 46 679 рублей

Проект П176. Дом для пары — с двумя зонами отдыха

Бюджетный вариант небольшого уютного домика для пар без детей и тех, чьи дети уже выросли. Здесь только две спальни, зато предусмотрены две большие зоны отдыха на первом и втором этажах. Зону отдыха на втором этаже можно переделать в дополнительную спальню или детскую для внуков, которые будут приезжать на выходные.

Цена:

Общая ― 5 743 000 рублей

За кв. м ― 40 673 рублей

Особенности стройки ГК «Рубкофф»

Когда дом уже закончен, в нем сложно или вообще невозможно что-то исправить. Но переделки не понадобятся, если строить с надежной компанией.

ГК «Рубкофф» отработала строительные процессы на сотнях домов и умеет строить быстро и качественно. Вот еще несколько причин доверить им стройку:

  • Адекватный ценник. Есть опыт работы с разными бюджетами ― подскажут, как сделать качественно и на чем можно сэкономить. Все материалы и работы — строго по зафиксированной в договоре смете. Если нужно, расчетный отдел ГК «Рубкофф» проанализирует сметы конкурентов и обоснует свои цены.
  • Гарантии. Доступ к наблюдению за стройкой в режиме онлайн. Можно лично приезжать на делянку, производство, стройку. Для строительства используются только сертифицированные стройматериалы. Оплата за каждый этап только после того, как вы примете работу.
  • Сроки. Рассчитываются по этапам и фиксируются в договоре — так же, как и штрафы за их срыв.
  • Вариативность. Любой из проектов можно реализовать как в дереве, так и в камне.
  • Профессиональная команда. Персонал на 100% знает продукт и может ответить на любой вопрос. Архитекторы и конструкторы внесут в проект все пожелания и учтут особенности участка, вашего образа жизни и еще тысячу мелочей, чтобы новый дом стал «вашим» домом.

Более 500 семей на своем опыте уже убедились, что ГК «Рубкофф» можно доверить строительство — от проекта до оформления комнат и сада. Всего год, и ваш дом готов. Останется только перевезти вещи и отпраздновать новоселье.

Листайте дальше, чтобы получить проект и честную смету на ваш дом 🔽🔽🔽