Добавить в корзинуПозвонить
Найти в Дзене
Мечтаево

Наш самый классический барнхаус - проект "Айри".

По нашим наблюдениям, чем каноничнее барнхаус, тем больше он вам нравится. Поэтому сегодня мы проверим эту теорию и расскажем про наш проект "Айри" Параметры: Это одноэтажный классический барн с фальцевой кровлей, переходящей в боковые фасады, и деревом в ореховом оттенке. Завершают композицию ламинированные окна, панорамное остекление и теплое освещение деревянных фасадов. Вот и все, получился минималистичный барн во всей его красоте. Планировка дома выполнена в виде галереи, в конце которой просторная кухня-гостиная в 47 кв.м. с выходом на террасу. Также в проекте предусмотрены 4 спальни (одна с гардеробной), 2 санузла и небольшая моповая комната. И все это разместилось на площади 137,6 кв.м, поэтому этот дом можно смело рекомендовать небольшим современным семьям, которые любят проводить время вместе. По вашему желанию планировка может быть изменена под ваш образ жизни и предпочтения в комфорте. И наше архитектурное бюро сделает это абсолютно бесплатно :) 🏡 Больше информации о проек
По нашим наблюдениям, чем каноничнее барнхаус, тем больше он вам нравится. Поэтому сегодня мы проверим эту теорию и расскажем про наш проект "Айри"

Параметры:

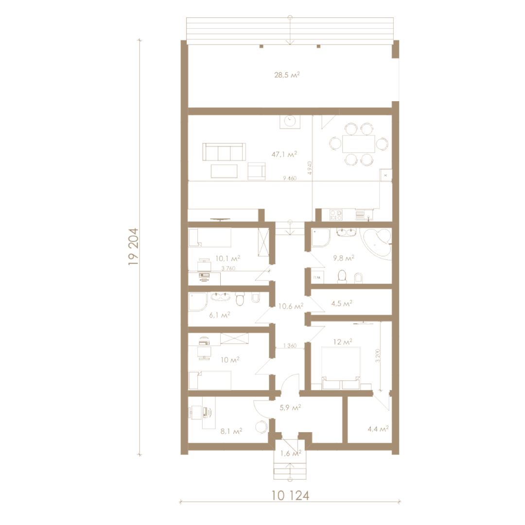
  • Площадь: 137.6 м2
  • Габариты: 19.2х10.12 м.

Это одноэтажный классический барн с фальцевой кровлей, переходящей в боковые фасады, и деревом в ореховом оттенке. Завершают композицию ламинированные окна, панорамное остекление и теплое освещение деревянных фасадов.

Вот и все, получился минималистичный барн во всей его красоте.

Планировка дома выполнена в виде галереи, в конце которой просторная кухня-гостиная в 47 кв.м. с выходом на террасу. Также в проекте предусмотрены 4 спальни (одна с гардеробной), 2 санузла и небольшая моповая комната. И все это разместилось на площади 137,6 кв.м, поэтому этот дом можно смело рекомендовать небольшим современным семьям, которые любят проводить время вместе.

Планировка
Планировка

По вашему желанию планировка может быть изменена под ваш образ жизни и предпочтения в комфорте. И наше архитектурное бюро сделает это абсолютно бесплатно :)

🏡 Больше информации о проекте и подробная смета на сайте 🏡

📝 Каталог каркасных домов (от классики до авангарда) 📝

📲 Бесплатный расчет стоимости дома вашей мечты 📲

Подписывайтесь на наш дзен-канал! Ищите информацию о строительстве и не знаете, как выбрать технологию? Вам точно необходима консультация! Звоните 8-495-660-83-34!