Добавить в корзинуПозвонить
Найти в Дзене
Алиса Асатрян

Кейс: Дизайн интерьера. Искусство маленьких шагов.

В этой статье мы пройдемся по кейсу одного проекта, где я наглядно продемонстрирую процесс разработки дизайн-проекта по методу, который практикуется в нашей компании – «Искусство маленьких шагов». Эта статья будет интересна тем, кому важно понимать структуру ведения проекта еще до первого контакта с дизайнерами. Это, своего рода, более конкретное объяснение нашего принципа работы, описанного в предыдущей статье: А что, так можно было? Мы, команда дизайнеров WHITE DESIGN, за годы практики нашли свой подход ведения проектов. Классическая разработка дизайна интерьера включает в себя несколько больших этапов: 1. Знакомство с проектом. Общение с заказчиком, замеры пространств, фиксирование технических данных объекта, фото- и видеофиксация, составление списков всех нужд и хотелок. 2. Планировочное решение или концепция на базе полученных данных. Это стадия полета мысли дизайнера с привязкой к реальности. 3. Визуализация. Длительный процесс, по завершению которого заказчик наконец-то получает
Оглавление

В этой статье мы пройдемся по кейсу одного проекта, где я наглядно продемонстрирую процесс разработки дизайн-проекта по методу, который практикуется в нашей компании – «Искусство маленьких шагов».

Эта статья будет интересна тем, кому важно понимать структуру ведения проекта еще до первого контакта с дизайнерами. Это, своего рода, более конкретное объяснение нашего принципа работы, описанного в предыдущей статье: А что, так можно было?

Мы, команда дизайнеров WHITE DESIGN, за годы практики нашли свой подход ведения проектов.

Классическая разработка дизайна интерьера включает в себя несколько больших этапов:
1. Знакомство с проектом. Общение с заказчиком, замеры пространств, фиксирование технических данных объекта, фото- и видеофиксация, составление списков всех нужд и хотелок.
2. Планировочное решение или концепция на базе полученных данных. Это стадия полета мысли дизайнера с привязкой к реальности.
3. Визуализация. Длительный процесс, по завершению которого заказчик наконец-то получает картинку своего будущего пространства, понимание как и что выглядит. На этом пункте обычно вносится довольно много правок, которые значительно увеличивают общий срок исполнения проекта.
4. Чертежи для строителей. Большой технический раздел для грамотного построения дальнейших ремонтно-строительных работ.
5. Комплектация и ведение авторского надзора.

Такое крупноформатное разделение работы, на наш взгляд, не совсем корректно с точки зрения ожиданий и оценки со стороны клиента. А так же влечет за собой переделки в большом объеме. Поэтому мы в своей деятельности разбили весь процесс на более мелкие шаги, каждый из которых получает одобрение со стороны заказчика, и только потом начинается следующий шаг.

Итак приступим к самому интересному - разбору проекта апартаментов P78.

Вводные

Год проектирования: 2020
Локация: Санкт-Петербург, Россия
Площадь: 56 кв.м.

Рис. 1. Планировка от застройщика
Рис. 1. Планировка от застройщика


Апартаменты для молодой пары без детей. Излюбленные занятия – приготовление кулинарных шедевров и совместные домашние посиделки с друзьями или родителями. Предпочитают лаконичные природные цвета и материалы.

Первое, за что цепляется взгляд, когда попадаешь в помещение - это панорамные окна и вид за окном, который и стал главным действующим лицом. Интерьер же служит гармоничным завершением общей атмосферы.

-2

Планировка

На фундаменте вводных данных создается планировочное решение. Здесь важно учесть не только все пожелания и образ жизни клиента, но и гармонично связать это с техническими характеристиками пространства.

Рис. 2. Варианты планировочных решений
Рис. 2. Варианты планировочных решений
Обычно, после утверждения планировки, дизайнер надолго испаряется из вида заказчика, с головой погружаясь в выстраивание геометрии, подбор и настройку материалов, света и прочих технических моментов, связанных с работой в 3D-редакторе, до создания фотореалистичных картинок (3D-рендеров). Это занимает порядка трех - четырех недель. После заказчик вносит правки, процесс затягивается.

Первая модель в объеме

Мы ценим свое время и время клиента, поэтому после утверждения планировки отстраиваем объемную белую модель апартаментов. Это занимает от трех до семи дней. Так клиент может быстро сориентироваться в общей геометрии всего пространства.

Рис. 3. Белая модель
Рис. 3. Белая модель


Так же есть возможность сделать панорамы или видео-облеты помещений. Но чаще такие презентации создаются после проработки материалов и цветовой палитры пространства.

Материалы и цветовая палитра

После утверждения белого макета, мы составляем коллажи с цветовой палитрой и материалами. Поиск наиболее желаемой гаммы для клиента. Длительность процесса – два-четыре дня.

Рис. 4. Коллаж цветового и материального решений
Рис. 4. Коллаж цветового и материального решений

Работа в объеме с цветом и материалами

После выбранная палитра переносится в объем интерьера. Формы и мебель приобретают свое лицо. Начинается работа с комбинированием сочетаемых фактур и цвета. На выходе клиент получает полное представление о будущем пространстве. Этап занимает порядка десяти-четырнадцати дней. В некоторых случаях разбивается на две части – объем в цвете и условная визуализация.

Рис. 5. Объем в цветовом решении
Рис. 5. Объем в цветовом решении
Рис. 6. Условная визуализция
Рис. 6. Условная визуализция
Рис. 7. Условная визуализация
Рис. 7. Условная визуализация

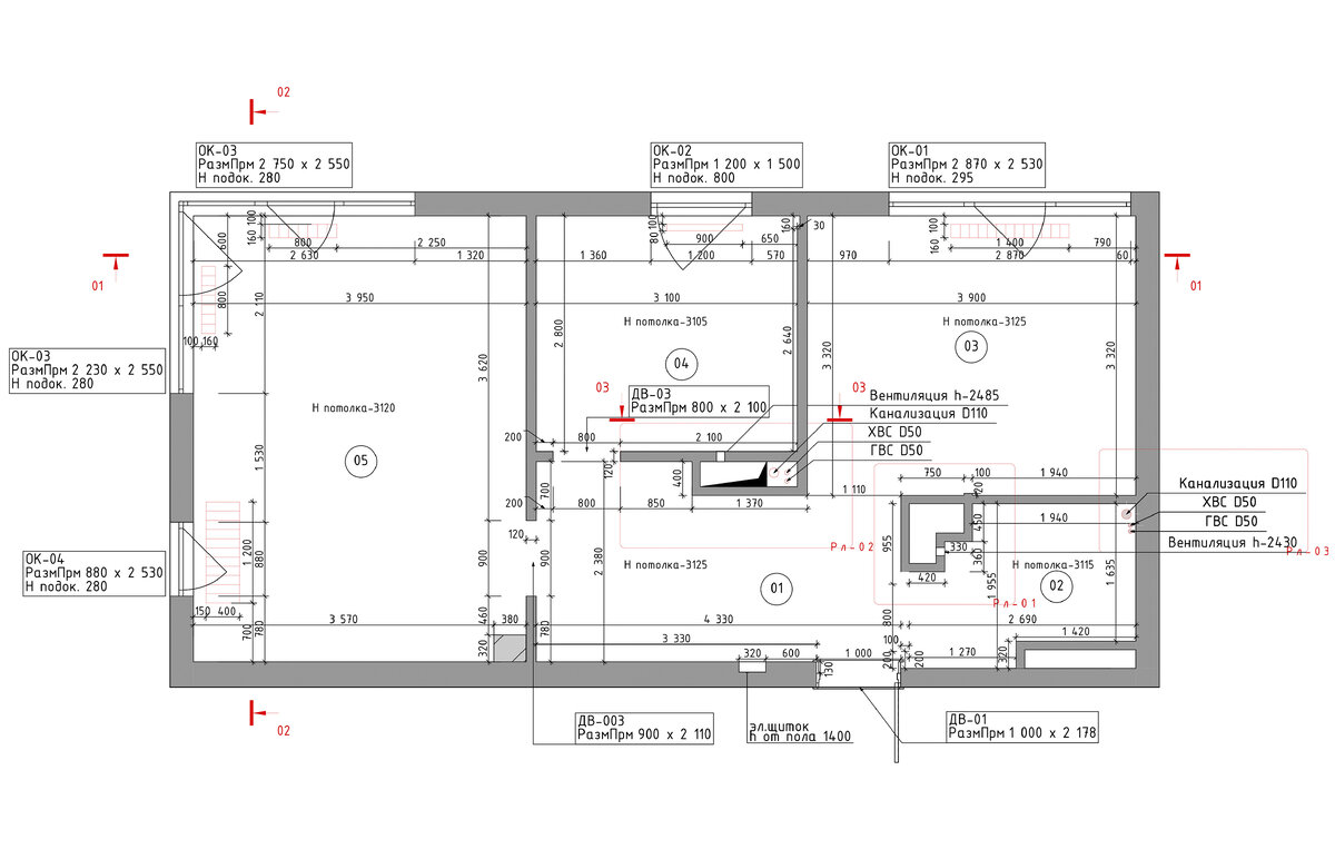
Чертежи

Как только клиент утвердил последний этап, дизайнер приступает к разработке чертежной документации для строительных работ. Здесь также возможно разделение на первичные и вторичные схемы. Допустим, ремонт уже стартовал, соответсвенно дизайнер трудится параллельно со строительной бригадой, отдавая чертежи в порядке работ: схема демонтажа/монтажа, разводка электрики и так далее. Разработка пакета схем длится порядка двадцати дней.

Рис. 8. Пример чертежной документации для строителей
Рис. 8. Пример чертежной документации для строителей

Смета

Ремонтные работы еще на стадии планирования, составляем сметную стоимость проекта при выходе на стройку. Ниже приведена диаграмма, по которой можно понять приблизительные затраты (при прочтении учитывайте год проекта. Сегодняшние цены значительно повысились).
Комплектация проекта занимает порядка десяти рабочих дней.

Рис. 9. Примерная диаграмма цен. При прочтении учитывать 2020 год проектирования
Рис. 9. Примерная диаграмма цен. При прочтении учитывать 2020 год проектирования

Финишная прямая

Итак проект готов к запуску.

Далее встречаемся на стройке. Процесс длительный, интересный, со своими нюансами, но когда клиент видит результат не на компьютере, а воочию, приходит полное понимание - "О, да, это именно то, чего я хотел!"

Итак, мы довольно подробно прошлись по этапам проектирования. Если у вас остались вопросы, то смело звоните нам, мы с удовольствием проконсультируем и внесем дополнительную ясность.
Номер для связи:
+7 495 204 18 21
Так же можно писать на почту:
hello.dnaarchitects@gmail.com
С другими проектами можно познакомиться на сайте
whitedesign-official.com