Добавить в корзинуПозвонить
Найти в Дзене
Дома №1

Уютный загородный коттедж по проекту «Оболенск»

Этот каркасный дом пользуется популярностью уже 10 лет. Наш архитектор создавал его для семьи с двумя детьми. И тем не менее, дополнительная комната на первом этаже позволит расширить состав проживающих. Благодаря габаритам дом легко впишется в любой участок Характеристики проекта Для комфортного проживания в проект включили: Особенностью внешнего вида коттеджа «Оболенск» является общая кровля с террасой. Это делает дом цельным по внешнему виду. Плюс такой кровли в функциональности. Из-за более глубокого ската прекрасно защищает отдыхающих на террасе и от дождя и от палящего солнца. На втором этаже 2 детские комнаты и хозяйская спальня с выходом на балкон, а комнату на первом этаже можно использовать, как кабинет. Хоть такие дома можно отапливать и электро-конвекторами, можно использовать бойлерную и для электрического котла с водяным отоплением. Или бойлерную можно использовать и, как сушилку для белья. Так в доме сохранится больше пространства для жизни. Иногда заказчики хотят измени
Оглавление
Этот каркасный дом пользуется популярностью уже 10 лет. Наш архитектор создавал его для семьи с двумя детьми. И тем не менее, дополнительная комната на первом этаже позволит расширить состав проживающих. Благодаря габаритам дом легко впишется в любой участок

Характеристики проекта

  • Общая площадь дома: 144 м2
  • Габариты: 9,0 х 9,0 м
  • Высота потолков: 2,7 / 2,6 м
  • Срок строительства: 50 дней

Для комфортного проживания в проект включили:

  • 4 спальни
  • Кухня – гостиная
  • 2 с\у
  • Бойлерная
  • Тамбур
  • Терраса
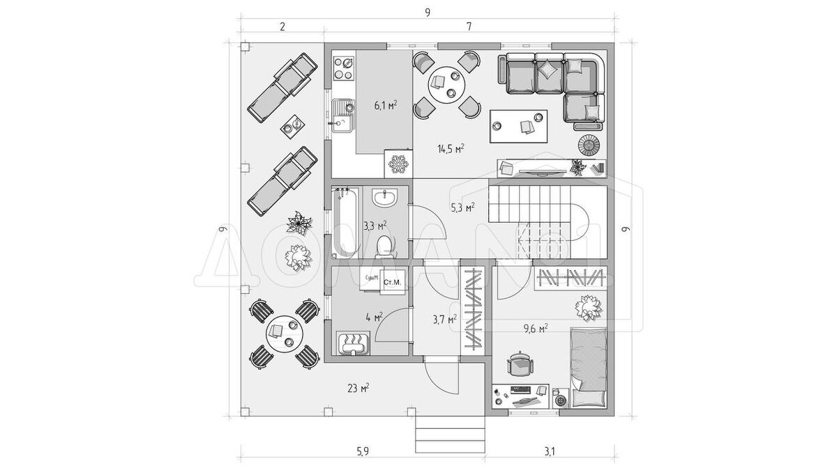
Первый этаж
Первый этаж

Особенностью внешнего вида коттеджа «Оболенск» является общая кровля с террасой. Это делает дом цельным по внешнему виду. Плюс такой кровли в функциональности. Из-за более глубокого ската прекрасно защищает отдыхающих на террасе и от дождя и от палящего солнца.

Второй этаж
Второй этаж

На втором этаже 2 детские комнаты и хозяйская спальня с выходом на балкон, а комнату на первом этаже можно использовать, как кабинет. Хоть такие дома можно отапливать и электро-конвекторами, можно использовать бойлерную и для электрического котла с водяным отоплением. Или бойлерную можно использовать и, как сушилку для белья. Так в доме сохранится больше пространства для жизни.

Иногда заказчики хотят изменить планировки. Это делается легко!

У нас собственное архитектурное бюро, поэтому проекты делаются непосредственно под заказчика.

Данный дом может быть выполнен по каменной, каркасной и СИП технологии.

-4

Как вам проект?

О компании

Строительная компания "Дома №1" имеет опыт более 19-ти лет в строительстве загородных домов и коттеджей. За это время мы поняли, что залогом надёжного, долговечного и качественного загородного дома является строгое соблюдение технологии строительства, выверенный до мельчайших деталей проект и профессиональная, проверенная команда. Именно на это мы и делаем ставку в повседневной работе.

Наша компания дорожит своим именем, ведь наша цель – только качественное домостроение!

Почему нас выбрало уже более 500 клиентов?

  1. У нас демократичные цены, прозрачное ценообразование, а также регулярные скидки и акции
  2. Комфортные условия строительства (Организация проживания и питания рабочих – это наша забота; Постоянный контакт с производителем работ; Фото и видео-фиксация строительства; Расширенные условия гарантии)
  3. Комфортные условия оплаты (Гибкая поэтапная система оплаты; Возможность получения кредита и ипотеки на строительство от наших банков партнеров; Возможность привлечения софинансирования по программе материнского капитала)
  4. Комплектация дома под ваши нужды (Проекты доступны в нескольких комплектациях и адаптируются под разные технологии строительства; При необходимости можно заказать любые дополнительные услуги, обеспечивающие Ваш комфорт; Штатные архитекторы компании помогут осуществить перепланировку и адаптировать проект под Ваши индивидуальные требования; Высоко квалифицированные специалисты произведут строительно-монтажные работы и монтаж инженерных коммуникаций любой сложности)
  5. Только опытные строительные бригады (Проверенные временем специалисты компании — один из ключевых факторов высокой прочности и надежности Вашего будущего дома, именно поэтому любые новые бригады проходят стажировку под надзором опытных производителей работ совместно с нашими штатными бригадами, и только после успешного ее прохождения назначаются на самостоятельное строительство объектов)