Добавить в корзинуПозвонить
Найти в Дзене
Филдс

Яркие потолки и картонные скульптуры: как архитекторы оформили квартиру 85 м² для работы

Архитекторы Илона Болейшиц и Игорь Орлов из бюро AR-KA оформили евродвушку 85 м². У владельцев есть другая квартира в этом же доме, эту они приобрели, чтобы работать и собираться с друзьями. Необычное назначение жилья позволило реализовать самые смелые задумки. Планировка Гостиная Гостиная — рабочий open space. Здесь выделили две функциональные зоны — офис и библиотеку, друг от друга их отделяет комод. Кухня Чтобы зонировать кухню и столовую, использовали разные отделочные материалы и разный уровень потолка. За счёт цветового решения зона готовки будто находится в боксе — фасады гарнитура, как стены, пол и потолок, сделали голубыми. А чёрная столешница, полки и цоколь соотносятся с вытяжкой. Кабинет Как и в других комнатах, в кабинете не обошлось без ярких красок — на стенах и потолке фрагментарно использовали фиолетовую краску. Диван раскладывается и может выполнять функцию спального места, если гости решат остаться на ночь. Прихожая По сути прихожая — часть общего пространств
Оглавление

Архитекторы Илона Болейшиц и Игорь Орлов из бюро AR-KA оформили евродвушку 85 м². У владельцев есть другая квартира в этом же доме, эту они приобрели, чтобы работать и собираться с друзьями. Необычное назначение жилья позволило реализовать самые смелые задумки.

  • Общая площадь: 85 м²
  • Место: Москва
  • Количество комнат: 2
  • Кто здесь живет: квартира для работы и приёма гостей
  • Бюджет: 5 млн рублей (год реализации — 2021-й)
  • Архитекторы: Илона Болейшиц и Игорь Орлов (бюро AR-KA)
  • Фото: Ольга Мелекесцева

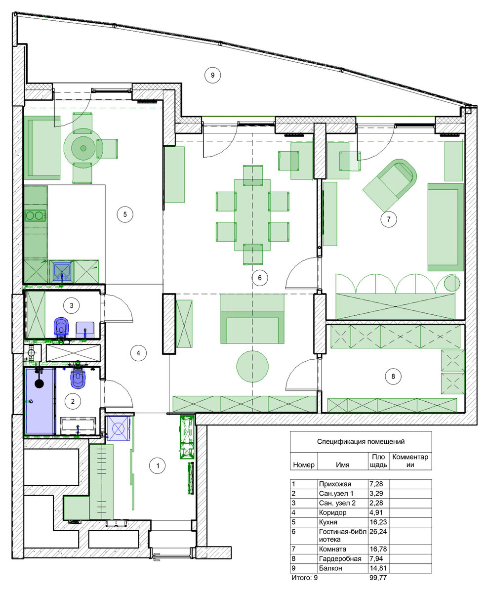
Планировка

В квартире кухня и две комнаты, одна из которых служит гостиной-библиотекой, а другая кабинетом. Помимо этого есть гардеробная и два санузла. Стены и потолки не выравнивали, это помогло сэкономить на черновых работах.
В квартире кухня и две комнаты, одна из которых служит гостиной-библиотекой, а другая кабинетом. Помимо этого есть гардеробная и два санузла. Стены и потолки не выравнивали, это помогло сэкономить на черновых работах.

Гостиная

Гостиная — рабочий open space. Здесь выделили две функциональные зоны — офис и библиотеку, друг от друга их отделяет комод.

Кухня

Чтобы зонировать кухню и столовую, использовали разные отделочные материалы и разный уровень потолка. За счёт цветового решения зона готовки будто находится в боксе — фасады гарнитура, как стены, пол и потолок, сделали голубыми. А чёрная столешница, полки и цоколь соотносятся с вытяжкой.

Кабинет

Как и в других комнатах, в кабинете не обошлось без ярких красок — на стенах и потолке фрагментарно использовали фиолетовую краску. Диван раскладывается и может выполнять функцию спального места, если гости решат остаться на ночь.

Прихожая

По сути прихожая — часть общего пространства. Тем не менее избавляться от всех перегородок не стали — за ними скрыли системы хранения: хозблок со стиральной машиной и вешалки с обувницей. Панно в коридоре создала один из авторов проекта Илона Болейшиц.

Санузлы

Оба санузла оформили в схожей стилистике — в отделке есть чёрный потолок и синяя кирпичная стена. Различается только цвет плитки: нежно-голубая в одном и терракотовая — в другом. В большом санузле оборудовали большую душевую, в маленьком поставили встроенный шкаф для хозяйственных принадлежностей.

Интересные мнения в комментариях приветствуются. Если материал понравился — ставь лайк!

Филдс это не только блог на Дзене, но и магазин дизайнерской мебели. Дарим 3000 руб. на первую покупку. Заходите на сайт и выбирайте мебель не как у всех.