Найти в Дзене

Дизайн-проект квартиры своими руками. Мой опыт

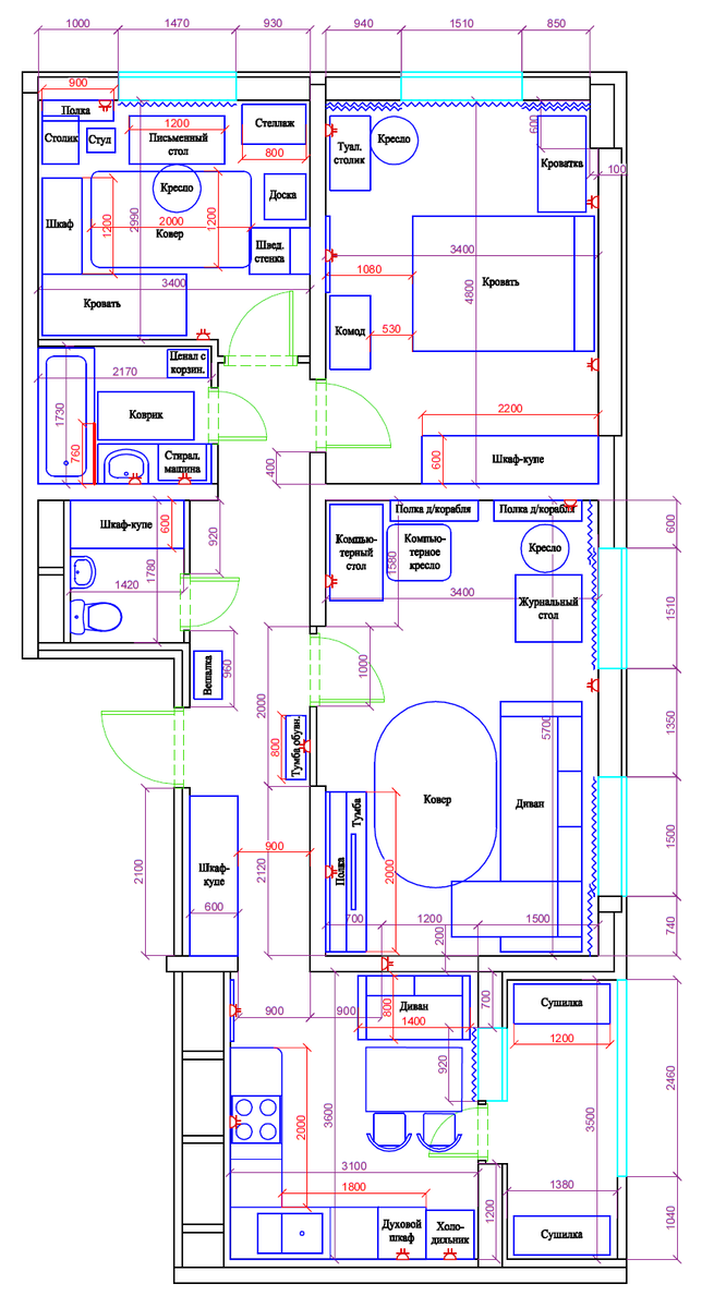
Здравствуйте, дорогие читатели! Пока строилась наша вторая квартира, мы решили максимально проработать дизайн-проект собственными силами. Изначально была идея заказать готовый дизайн-проект у профессионала, но потом мы решили, что сможем сами справиться с этой работой. Конечно, готовой 3D-картинки с мебелью, обоями и прочим мы не получили, но нам было главное проработать основные технологические моменты и все учесть. 1. План квартиры с расставленной мебелью Первое, с чего мы начали, это план квартиры в AutoCAD с предполагаемыми размерами мебели. В связи со спецификой своей работы, я взялась за это дело с удовольствием. Цель была выяснить, какая из имеющейся мебели может поместиться в нашу новую квартиру, мебель какого размера требуется докупить. Мы перемерили все, что у нас было дома на этот момент и именно от этих размеров я отталкивалась на своем чертеже. С каждой комнатой были свои сложности. Например, площадь детской у нас была небольшая (10 кв.м) и нужно было умудриться расставить
Оглавление

Здравствуйте, дорогие читатели!

Пока строилась наша вторая квартира, мы решили максимально проработать дизайн-проект собственными силами.

Изначально была идея заказать готовый дизайн-проект у профессионала, но потом мы решили, что сможем сами справиться с этой работой.

Конечно, готовой 3D-картинки с мебелью, обоями и прочим мы не получили, но нам было главное проработать основные технологические моменты и все учесть.

1. План квартиры с расставленной мебелью

Первое, с чего мы начали, это план квартиры в AutoCAD с предполагаемыми размерами мебели. В связи со спецификой своей работы, я взялась за это дело с удовольствием. Цель была выяснить, какая из имеющейся мебели может поместиться в нашу новую квартиру, мебель какого размера требуется докупить.

Мы перемерили все, что у нас было дома на этот момент и именно от этих размеров я отталкивалась на своем чертеже.

С каждой комнатой были свои сложности. Например, площадь детской у нас была небольшая (10 кв.м) и нужно было умудриться расставить всю необходимую мебель так, чтобы и место свободное осталось, и все поместилось, и шкафы с ящиками нормально открывались. Мы обошли много магазинов мебели, пока нашли мебель в детскую, которая вписалась в габариты нашей комнаты и устроила нас по цене.

Еще была идея на перспективу: в случае увеличения численности нашей семьи и появления второго ребенка, спальню (17 кв.м) и детскую (10 кв.м) поменять местами. Поэтому нужно было предусмотреть мебель в спальню таким образом, чтобы она потом при необходимости влезла в детскую. В частности, шкаф в спальню мы взяли максимально возможной длины – 2 м. Большего размера шкаф в детскую просто не поместился бы.

2. Электрика (розетки, выключатели, расположение роутера, светильники на потолке и пр.)

Когда мы делали ремонт в первой квартире, мы только примерно понимали, что где будет. Я помню, как меня мучал мастер с расспросами, где делать розетки, как спрашивал какой длины будет диван, чтобы полку из гипсокартона над ним по размеру сделать, и что вообще будет стоять в спальне.

Поэтому в этот раз мы решили определиться со всеми этими вопросами заранее.

После предварительной расстановки мебели на плане и вычисления ее необходимых габаритов мы смогли определиться с количеством и расположением всех необходимых розеток. Вопросом электрики озадачился муж. Он нашел бесплатную программу в интернете, в которой расставил все электрические точки по квартире с указанием привязочных размеров. Конечно, он опирался на план, сделанный мной ранее.

Смотрите галерею: как планировали и как вышло (галерея очень длинная, вставляла фото проекта электрики и соответствующее фото результата).

Мы постарались продумать все жизненные сценарии, чтобы потом не бегать с удлинителями и не думать, как спрятать провода с глаз долой. Предусмотрели даже розетку для подключения елочной гирлянды на Новый год.

Также было разрисовано количество и месторасположение точек освещения на потолке в каждом помещении квартиры.

Мы предварительно рассчитали месторасположение телевизора, розеток под будущую приставку и избежать проводов, висящих за телевизором. Для этого мы примерно определились с необходимыми шкафами и тумбами. Предусмотрели кабель-канал в стене, чтобы при необходимости подключения какой-либо техники к телевизору провода можно было спрятать.

3. Плитка в санузлах и фартук на кухне

Проработку дизайн-проекта санузлов мы решили начать с выбора плитки. Ванну и туалет изначально хотели отделать одинаковой плиткой, но потом мы не смогли выбрать из двух вариантов, и решили взять одну для ванной, а вторую для туалета. Они были в одной цветовой гамме и одного размера 25х60 см, но разных производителей.

Помещение ванной комнаты довольно просторное – 3,6 кв.м, туалета – чуть поменьше – 2,3 кв.м. Раскладку плитки я делала в графическом редакторе.

Помню, как засиживались с мужем перед компьютером до поздней ночи, рисуя проект ванной и туалета: раскладку плитки, расположение сантехники и мебели, декоративных элементов и зоны хранения. И сколько спорили, как лучше сделать, но как говорится: в споре рождается истина.

Также был расчет размеров фартука на кухне и точное расположение розеток по двум причинам. Во-первых, плитка на фартук была выбрана небольшая (15х40 см) и розетки необходимо было разместить четко по центру. А во-вторых, мы хотели, чтобы фартук был выложен таким образом, чтобы край столешницы четко зашел под фартук, оставив зазор в 1 мм. Таким образом мы хотели избежать необходимости установки пластикового плинтуса на столешницу.

4. Кухонный гарнитур

Проект кухни рисовал муж в графическом редакторе (нашел демо-версию в интернете). Мы определились с перечнем и расположением крупной бытовой техники, которую хотели видеть на кухне, расположением шкафов, ящиков и размерами рабочей зоны

Кстати кухонщик, увидев наш готовый проект, был весьма удивлен, сказав, что первый раз видит настолько подготовленных заказчиков. Обычно высказываются общие пожелания, ну максимум набросок «хотелок», выполненный на коленке, а тут полноценный чертеж с указанием всех размеров. Было очень приятно услышать такую лестную похвалу в адрес любимого мужа!

А у Вас есть опыт использования услуг профессиональных дизайнеров? Или все продумывали сами? А может вообще не заморачивались особо, решая проблемы по мере их поступления прямо в процессе ремонта, как мы при ремонте первой квартиры?

#дизайнпроектквартиры #дизайн квартиры недорого #ремонт своими руками #дизайн проект квартиры