Добавить в корзинуПозвонить
Найти в Дзене

Из бетонной коробки — в квартиру премиум-класса. Что спросить у дизайнера, чтобы получить интерьер мечты

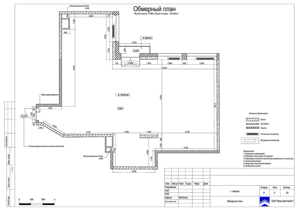
От бетонной коробки до комфортного жилья обладателя новостройки отделяет один шаг — ремонт квартиры. Но стоит начать искать дизайнера интерьера, как появляются сомнения и вопросы: что входит стоимость, насколько отложится переезд, получится ли узаконить перепланировку. Мы узнали, что чаще всего спрашивают у специалистов «Вира-АртСтрой», и собрали исчерпывающие ответы в этой статье. Что входит в дизайн-проект? Полный проект состоит из двух пакетов: эскизного и рабочего. Первый вариант базовый, он показывает, как будет выглядеть квартира после ремонта. В эскизный проект входят: Пример обмерного плана из эскизного пакета. План помогает учесть конструктивные особенности квартиры: выступы, размеры проемов, материал стен Второй пакет — расширенный. Он содержит весь набор рабочей документации, которая необходима, чтобы воплотить в жизнь нарисованный интерьер. В рабочий проект входят: В стоимость дизайна «Вира-АртСтрой» уже включено изготовление реалистичных визуализаций. Также вы можете зап
Оглавление

От бетонной коробки до комфортного жилья обладателя новостройки отделяет один шаг — ремонт квартиры. Но стоит начать искать дизайнера интерьера, как появляются сомнения и вопросы: что входит стоимость, насколько отложится переезд, получится ли узаконить перепланировку. Мы узнали, что чаще всего спрашивают у специалистов «Вира-АртСтрой», и собрали исчерпывающие ответы в этой статье.

Что входит в дизайн-проект?

Полный проект состоит из двух пакетов: эскизного и рабочего. Первый вариант базовый, он показывает, как будет выглядеть квартира после ремонта.

В эскизный проект входят:

  • Замеры квартиры и разметка коммуникаций — радиаторов отопления, водопроводных и канализационных труб.
  • Индивидуальные предложения по планировке с учетом ваших предпочтений и образа жизни. Если работаете из дома, спланируем комфортное рабочее место. Если любите спорт — предусмотрим уголок для домашних тренировок.
  • 3D-эскизы помещений.
  • Выезд с дизайнером в магазины для подбора материалов, мебели и оборудования.
  • Бонус — скидки от магазинов-партнеров.

Пример обмерного плана из эскизного пакета. План помогает учесть конструктивные особенности квартиры: выступы, размеры проемов, материал стен

Второй пакет — расширенный. Он содержит весь набор рабочей документации, которая необходима, чтобы воплотить в жизнь нарисованный интерьер.

В рабочий проект входят:

  • Демонтажные и монтажные планы перегородок, стен, окон, дверей, радиаторов.
  • Схемы расположения осветительных приборов, розеток, выключателей, а также сантехнического оборудования.
  • Планы потолков, развертки стен, раскладки полов.
  • Список материалов, дверей, различного специализированного оборудования, а также предметов мебели.
-2

В стоимость дизайна «Вира-АртСтрой» уже включено изготовление реалистичных визуализаций. Также вы можете запросить виртуальный тур по своей квартире

Сколько времени нужно на создание проекта?

Если вы спешите с ремонтом и хотите начать его как можно скорее, сразу предупредите об этом дизайнера. А лучше обращайтесь в «Вира-АртСтрой» — на всю работу мы отводим 60 рабочих дней. Планировку можно согласовать уже в первый месяц, а оставшееся время уйдет на создание чертежей и подбор материалов.

-3

В ваших силах ускорить проектирование: чем быстрее вы сможете согласовывать решения, тем скорее получится начать ремонт

Что будет, если итог мне не понравится?

Чтобы результат вас точно устроил, создание проекта поделено на этапы. К следующему можно перейти только тогда, когда согласован предыдущий. Например, сначала вы выберете планировку и утвердите стилистику, а уже после отправитесь с дизайнером закупать материалы.

Обратите внимание: у некоторых студий есть лимит на количество вариантов планировки. Вам могут показать пять эскизов, и нужно сделать выбор, даже если ни один не устраивает вас полностью. Дизайнеры «Вира-АртСтрой» предлагают неограниченное число схем планировки — можно выбирать, пока не останетесь довольны на 100%.

Листайте галерею, чтобы увидеть интерьеры, которые уже воплотили в реальность дизайнеры компании →

-4

Профессионалы «Вира-АртСтрой» работают с разными стилями — минимализм, лофт, классика, ар-деко, прованс

-5

Чтобы создать идеальный для вас интерьер, дизайнер учтет предпочтения и образ жизни всех членов семьи

-6

Перед консультацией мы советуем выбрать фото понравившихся интерьеров — они помогут дизайнеру точнее представить ваши ожидания

А если я не смогу узаконить перепланировку, которую предложил дизайнер?

В «Вира-АртСтрой» есть собственный отдел согласования перепланировок. Прежде чем предложить вам проект, дизайнер консультируется с менеджерами и получает подтверждение, что конкретное решение можно узаконить. Если хотите полностью делегировать работу с формальностями, наши сотрудники возьмут всё на себя и уладят юридические вопросы.

Что я получу в итоге?

После завершения дизайн-проекта вы получите все необходимое, чтобы создать индивидуально подобранный интерьер премиум-класса: концептуальное решение, пакет чертежей и подобранные материалы. С этим комплектом можно сразу же приступать к ремонту.

Листайте галерею, чтобы оценить, насколько подробным будет ваш проект →

-7

Пример расстановки мебели для трехкомнатной квартиры

-8

Пример детализации плана

-9

Пример схемы электрики

В «Вира-АртСтрой» вы можете обратиться только за дизайн-проектом или заказать ремонт под ключ. У нас есть собственный штат специалистов, которые воплотят проект и выполнят любые дополнительные работы — от замены инженерных систем до подключения сигнализации. Вам не придется искать подрядчика и переживать, что трубы или новая техника испортят интерьер: дизайнер и инженеры работают над вашим интерьером сообща.

Работать с нами выгодно: если закажете ремонт, дизайн-проект получите бесплатно.

Подробнее узнать об услугах дизайн-студии «Вира-АртСтрой», ознакомиться с портфолио и расценками вы можете на сайте компании.

Рассчитать дизайн-проект квартиры - www.eremont.ru

Телефон компании «Вира-АртСтрой»: 📞👨 +7 (495) 367-30-19

Листайте дальше, чтобы посмотреть примеры проектов и вдохновиться на собственный премиум-интерьер для комфортной жизни.