Добавить в корзинуПозвонить
Найти в Дзене
Азалия дизайн

3 семьи — 3 разных дизайн-проекта этим летом

Есть мнение, что сделать дизайнерский ремонт без европейских материалов нельзя. А раз сейчас проблемы с поставками, то о таком ремонте можно забыть на долгое время. На самом деле ситуация на рынке иная: не все европейские материалы ушли из России, а те, которые ушли, можно заменить аналогами с идентичным качеством. Расскажем и покажем, какие дизайн-проекты в студии «Азалия» мы создали за последнее время, мебель и материалы каких производителей использовали и сколько сейчас стоит такой ремонт. Планировка 4-комнатной квартиры с 0 Молодая семья — Максим и Ольга — купили квартиру площадью 94 м² со свободной планировкой. И обратились к нам с запросом — сделать из нее полноценную 4-комнатную квартиру с постирочной и двумя санузлами. И чтобы одну комнату отвели под детскую для их сына Никиты. Специалист сделал замер квартиры, мы выяснили пожелания молодой семьи и предложили такую планировку: Ольга и Максим хотели дизайн в современном стиле и чтобы преобладающими были нейтральные цвета: теплы
Оглавление

Есть мнение, что сделать дизайнерский ремонт без европейских материалов нельзя. А раз сейчас проблемы с поставками, то о таком ремонте можно забыть на долгое время. На самом деле ситуация на рынке иная: не все европейские материалы ушли из России, а те, которые ушли, можно заменить аналогами с идентичным качеством.

Расскажем и покажем, какие дизайн-проекты в студии «Азалия» мы создали за последнее время, мебель и материалы каких производителей использовали и сколько сейчас стоит такой ремонт.

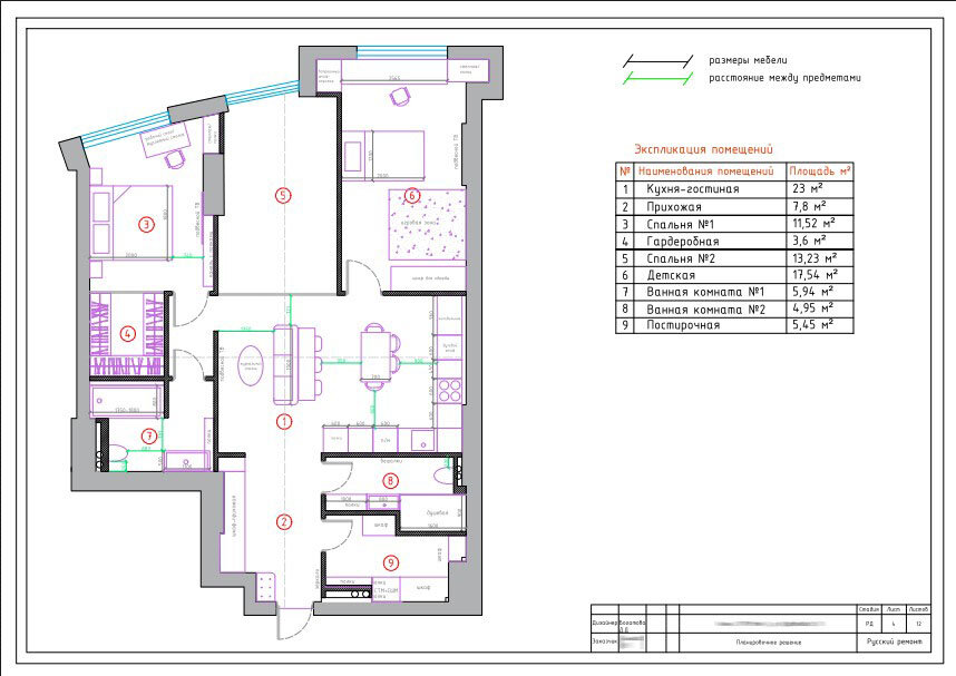
Планировка 4-комнатной квартиры с 0

Молодая семья — Максим и Ольга — купили квартиру площадью 94 м² со свободной планировкой. И обратились к нам с запросом — сделать из нее полноценную 4-комнатную квартиру с постирочной и двумя санузлами. И чтобы одну комнату отвели под детскую для их сына Никиты.

Специалист сделал замер квартиры, мы выяснили пожелания молодой семьи и предложили такую планировку:

Ольга и Максим хотели дизайн в современном стиле и чтобы преобладающими были нейтральные цвета: теплые и холодные оттенки серого, бежевого, белого. Мы создали несколько коллажей, где показали общую стилистику интерьера, сочетание цветов и фактур:

На основе этих коллажей дизайнер отрисовал визуализацию всей квартиры. Вот что получилось:

Чтобы ремонтники могли приступить к работе и смогли сделать ремонт, как на визуализации, мы разрабатываем комплект рабочих чертежей:

Материалы

В «Азалии» мы работаем с брендами из разных стран и знаем, как материалы ведут себя даже спустя несколько лет после монтажа. За долгие годы у нас сформировалась база проверенных поставщиков, которая продолжает пополняться. Поэтому уход европейских компаний не ввел нас в ступор — мы знали, какие бренды предлагать нашим заказчикам.

Например, для пола в коридоре использовали российский керамогранит Италон Charme Evo Calacatta Nat Ret, а для стен — фактурную штукатурку ITALICA MASTICE + GRADIENTE.

-5

В кухню-гостиную, детской и спальне предложили турецкий ламинат AGT Concept PRK602 Дорино. И выбрали немецкие обои под покраску бренда Erismann.

-6

Мебель и сантехника

Какие-то позиции мебели необходимо делать на заказ, например, шкафы под потолок, кухню, стеллаж и стол под окно для детской.

В спальни мы предложили кровати INMYROOM Family (Россия) и Adda (Италия). А для ванных комнат — российский бренд STWORKI.

-7

Из импорта, в основном, освещение и сантехника: светильники LASANA (Австрия), NovoTech Pipe (Венгрия), Denkirs DK3020WC (Дания), раковина Mira (Португалия), комплект Berges Wasserhaus Novum (Германия), кухонный стол Woodville (Малайзия) и т.д.

В момент, когда мы согласовывали этот проект с Ольгой и Максимом, нам удалось найти эти артикулы в наличии и выкупить. Но сейчас все меняется быстро и эти бренды могут уже не поставлять. Поэтому приходится связываться с поставщиками ежедневно, чтобы получать актуальную информацию. И составлять дизайн-проекты с учетом того, какие-то бренды ушли, и находить им альтернативы.

Дизайн-проект для семьи с тремя детьми

К нам попала квартира с готовой планировкой площадью 129 м². Заказчикам Николаю и Катерине она казалась нагроможденной, им хотелось больше открытых пространств. Поэтому мы предложили объединить кухню с гостиной, расширить один санузел, соединить два небольших помещения в одну гардеробную.

Николай и Катерина хотели, чтобы в дизайне присутствовало «дерево»: и не только на полу, но и на стенах. Чтобы не перегружать, решили добавить по 1-2 таких элемента в каждую комнату:

При создании дизайн-проекта мы учли особенности квартиры и личные пожелания:

  • У квартиры 4 балкона — по одному на каждую жилую комнату. Их нужно было обыграть: сделать рабочее пространство, место для отдыха или игровую.
  • В семье трое детей: двойняшки Даша и Юля и старший сын Игорь. Девочек поселили в одной комнате, поэтому задача была — создать пространство, где им было бы комфортно жить вместе.
  • Отец семейства любит читать и прививает любовь к книгам своим детям. Раз в неделю он устраивает дома воскресные чтения для всей семьи. Поэтому необходимо было предусмотреть место для вместительного книжного шкафа и чтобы до него было одинаково близко из каждой комнаты.

По итогу мы презентовали следующие визуализации квартиры и решения:

Отдельного внимания заслуживают балконы:

Подготовили комплект рабочих чертежей. Вот лишь некоторые из них:

Материалы

Изначально для коридора выбирали ламинат Haro Tritty (Германия), но перед согласованием проекта информация обновилась, и мы узнали, что достать материал будет непросто. А нам его нужно много — почти на всю квартиру. Поэтому остановились на аналоге — бельгийском бренде Quick-Step. Для стен использовали обои A.S.Creation (Германия) и керамогранит Керамин (Белоруссия).

-13
Если заказчику важно, чтобы все материалы были европейскими, мы учтем запрос и соберем все бренды, которые сейчас можно достать. Но у нас еще не было таких пожеланий. Ведь качество ремонта не страдает, если отделывать пол и стены, к примеру, российским керамогранитом или импортом не из Европы.

Например, для спальни мы предложили дизайнерские обои Victoria Stenova (Россия), а за изголовье кровати — декоративную панель Buazeri (делают в Москве по индивидуальному заказу). Ламинат — тот же, что и в коридоре.

-14
Николай и Катерина заказывали материалы через нас, студию «Азалия», поэтому смогли сэкономить и время на поиск брендов, и деньги, ведь у нас есть скидки от поставщиков до 10-15%.
-15

Мебель и сантехника

Все шкафы под потолок, в том числе и книжный, кухню, учебный стол для девочек и столешницу под мрамор в ванную делали на заказ.

Например, для кухни-гостиной выбрали мебель и освещение преимущественно российских брендов: диван INMYROOM Family, кухонный стол STWORKI, Комплект столиков Лайт, люстра Kink Light, стулья Валенсия, светильник Markslojd (Швеция).

-16

По сантехнике у нас получилась смесь из европейских и российских брендов: душевой лоток Berges Wasserhaus (Германия), акриловая ванна STWORKI (Россия), инсталляция Комплект VitrA Shift (Турция), гигиенический душ STWORKI (Россия) и т.д.

В студии «Азалия» мы работаем с любым бюджетом: подбираем отделочные материалы, мебель и сантехнику так, чтобы оставаться в пределах оговоренной суммы и не повышать чек.

Дизайн-проект двухэтажного частного дома

Ольге и Юрию нужен был дизайнерский ремонт двухэтажного дома (площадь 227м²). Была небольшая проблема с планировкой: комнаты были просторные, но сильно не хватало небольших помещений, типа бойлерной, кладовки, а на втором этаже — ванной комнаты. Поэтому мы предложили небольшую перепланировку: на 1-ый этаж мы добавили санузел и кладовую, из-за этого уменьшилась гостевая спальня, но все же места там осталось достаточно (14 м²).

На втором этаже было просторное помещение площадью 44 м². Мы разделили его на 2 спальни и ванную.

Все коллажи и идеи заказчики и дизайнер обсуждали в общем чате. Пока дизайнер работает над проектом, можно отправлять понравившиеся референсы, задавать вопросы и получать информацию о ходе работы.

После 2 месяцев плотной работы, согласования коллажей, деталей и прорисовки интерьера, дизайнер представила визуализации будущего ремонта. Начнем с 1-ого этажа:

На втором этаже расположено 3 спальни, кабинет, санузел и балкон:

Дизайнер делает все чертежи самостоятельно и это занимает время. Именно на эту документацию и ориентируются ремонтники в первую очередь. Поэтому важно все сделать точно и без ошибок. На 2 этажа комплект чертежей вышел большой, поэтому покажем лишь некоторые из них:

Кстати, у нас при студии работает своя команда ремонтников, которые занимаются только дизайнерским ремонтом. Дизайнеры с прорабами сделали уже кучу объектов. Поэтому когда они работают в связке, то понимают друг друга с полуслова. Сложностей и недопониманий не бывает.

Материалы

Дизайнер предложила постелить кварцвиниловую плитку Vinilam (Бельгия)

по всему дому, кроме санузлов, а стены покрыть краской Tikkurila Euro Power-7 (Финляндия).

-22

В санузлах — керамогранит под дерево ITALON (Россия), под мрамор ALAPLANA (Испания) и под мозаику ALTACERA (Россия).

-23

Мебель и сантехника

Например, в гостинную-столовую дизайнер выбрала стулья и обеденный стол Aks (Беларусь), угловой диван Velvet Light (Россия), журнальный столик Калифорния Мебель (Россия) и т.д.

-24

По желанию заказчиков почти вся сантехника — европейская: унитаз и биде BelBagno (Италия), акриловая ванна STWORKI (Россия), раковина Villeroy & Boch (Германия), Раковина Serel (Турция), гигиенический душ Grohe (Германия) и т.д.

-25

Все эти проекты были выполнены студией «Азалия» за январь-март 2022 года. За 5 лет мы создали более 700 дизайн-проектов, и на 412 объектах ремонт выполнили наши мастера. У нас огромный опыт в дизайнерском ремонте и нам можно доверить любые ваши идеи.

При заказе ремонта даем скидки на дизайн-проект до 100%. Листайте ниже и переходите на сайт, чтобы посмотреть еще больше наших работ и рассчитать стоимость дизайн-проекта на онлайн-калькуляторе бесплатно.