Добавить в корзинуПозвонить
Найти в Дзене

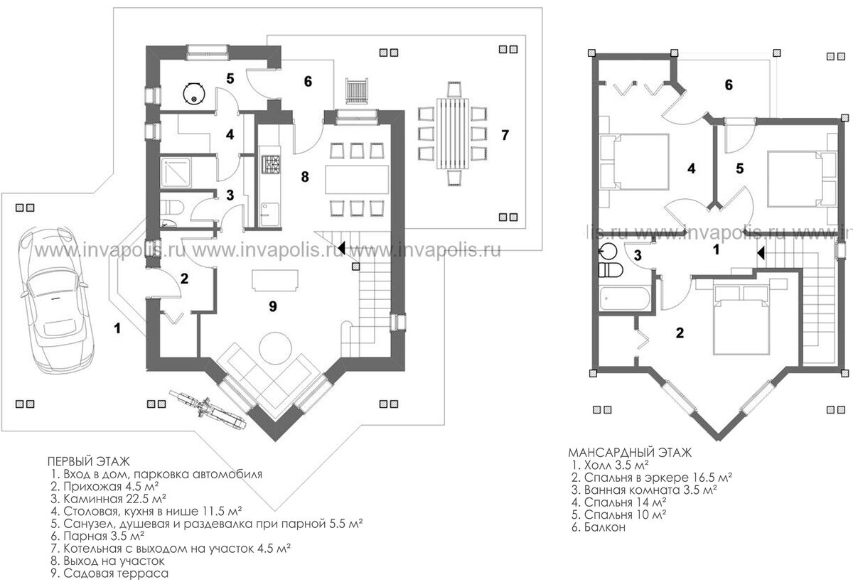
ЯХРОМА - проект комбинированного коттеджа 96 м2 с баней, из блока и бруса

Дом ЯХРОМА можно использовать как основной жилой или банно-гостевой дополнительный. Сочетание двух строительных материалов стен может обеспечить гармонию и с домами из камня и с домами из бруса ПЛАНИРОВКА Планы дома ЯХРОМА продуманы таким образом, что его конфигурацию можно «регулировать», для гармоничного встраивания в участки разной ширины. Самый узкий вариант рассчитан очень узкие или маленькие участки. КОНСТРУКТИВНЫЕ ОСОБЕННОСТИ ФУНДАМЕНТЫ – ленточные монолитные, мелкого заложения
СТЕНЫ – рубленные «с остатком» из строевого леса 
ПЕРЕКРЫТИЯ – по деревянным балкам и лагам с тепло и шумо изоляцией
КРОВЛЯ – по деревянным балкам и мауэрлатам, простая двускатная стропильная теплая – собирается сразу начисто ► Проект дома - готовый. Порядок покупки и актуальная стоимость - на странице дома на сайте ИНВАПОЛИС ► Если планируете строительство или просто любите смотреть домики и читать статьи о частном домостроении, подпишитесь на наш канал ДЗЕН и нашу группу ВКонтакте ► Следить за новостям
Оглавление

Дом ЯХРОМА можно использовать как основной жилой или банно-гостевой дополнительный. Сочетание двух строительных материалов стен может обеспечить гармонию и с домами из камня и с домами из бруса

ПЛАНИРОВКА

Планы дома ЯХРОМА продуманы таким образом, что его конфигурацию можно «регулировать», для гармоничного встраивания в участки разной ширины. Самый узкий вариант рассчитан очень узкие или маленькие участки.

-2

КОНСТРУКТИВНЫЕ ОСОБЕННОСТИ

ФУНДАМЕНТЫ – ленточные монолитные, мелкого заложения
СТЕНЫ – рубленные «с остатком» из строевого леса 
ПЕРЕКРЫТИЯ – по деревянным балкам и лагам с тепло и шумо изоляцией
КРОВЛЯ – по деревянным балкам и мауэрлатам, простая двускатная стропильная теплая – собирается сразу начисто

► Проект дома - готовый. Порядок покупки и актуальная стоимость - на странице дома на сайте ИНВАПОЛИС

► Если планируете строительство или просто любите смотреть домики и читать статьи о частном домостроении, подпишитесь на наш канал ДЗЕН и нашу группу ВКонтакте

► Следить за новостями и смотреть обзоры проектов ИНВАПОЛИС можно также в ТЕЛЕГРАММ-КАНАЛЕ – подписывайтесь, контент немного отличается от ДЗЕН 😊