Найти в Дзене
Войти
НоваДом | Строительство домов | Казань, Набережные Челны
183 подписчика
Подписаться
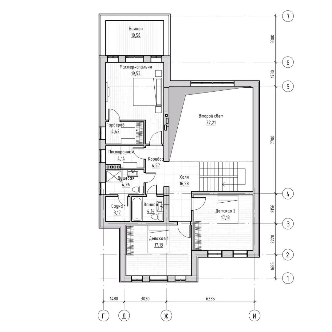
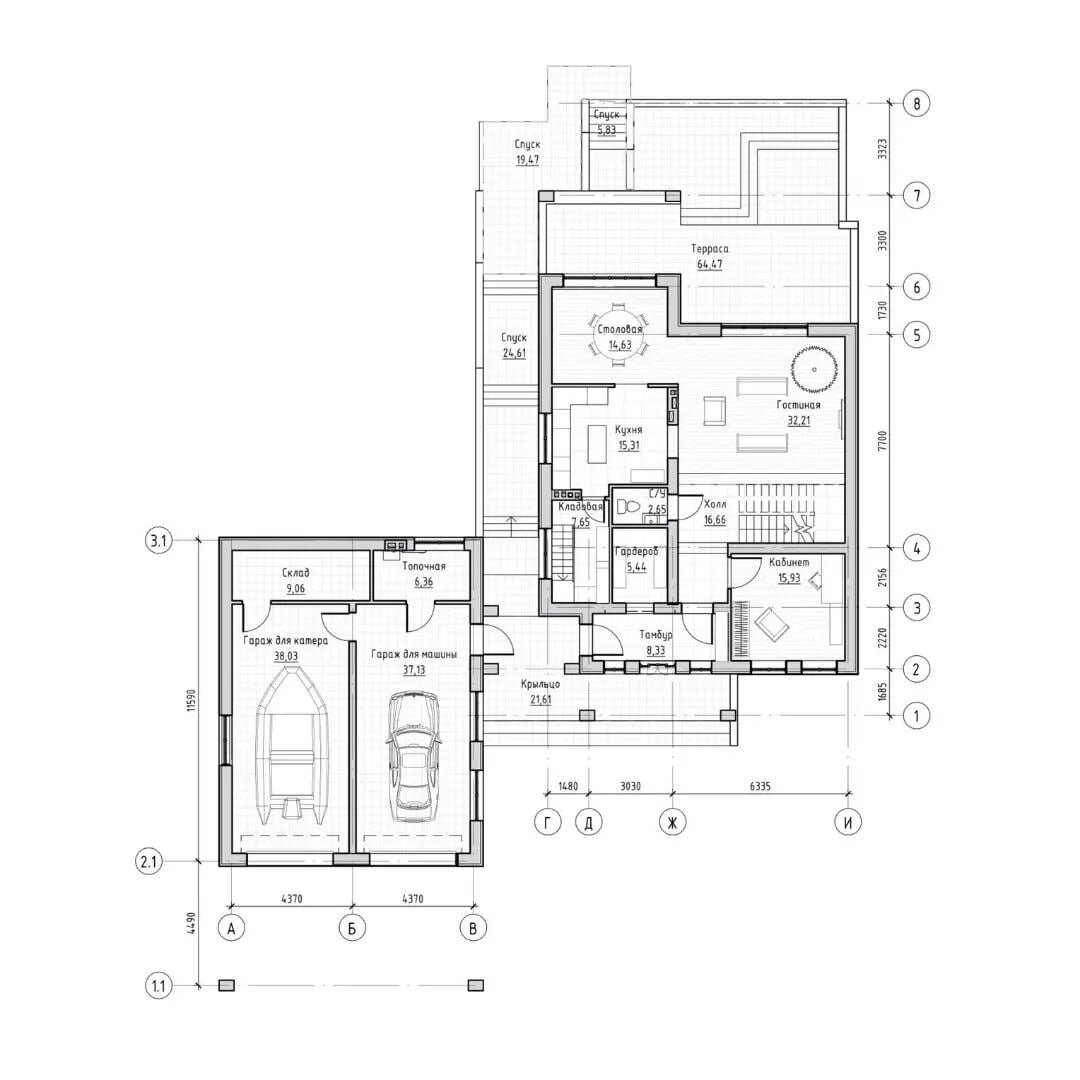
Проект дома у озера. Общая площадь 260 кв.м.
14 апреля 2022
14 апр 2022
15
...
Читать далее
2