Найти в Дзене

Дизайн-проект квартиры для молодой семьи

Мы продумали интерьер для семьи с одним ребенком. Задачей было сделать легкий дизайн в светлых оттенках. Мы воплотили задумку, интерьер получился минималистичный с нежными деталями. Для квартиры площадью 65 кв.м. предусмотрели все необходимое: Изюминкой квартиры стала большая угловая кухня с островом, о котором мечтала заказчица. В кухне-гостиной можно собраться большой компанией друзей или расслабиться после работы на мягком диване. Спокойный интерьер спальни идеально подойдет для отдыха и крепкого сна. Нежная фреска в изголовье кровати и пастельные оттенки создают атмосферу легкости. Детскую для подростка, который учится в другом городе, сделали в темных оттенках. Получился современный лаконичный интерьер, который будет актуален долгие годы. Важным элементом интерьера также стало пространство хранения. Для хозяев квартиры было важно, чтобы шкафы не занимали много места и при этом были функциональны. Поэтому мы сделали в каждой комнате удобные комоды, ящики и шкафы. По проекту заказчи

Мы продумали интерьер для семьи с одним ребенком. Задачей было сделать легкий дизайн в светлых оттенках. Мы воплотили задумку, интерьер получился минималистичный с нежными деталями.

Для квартиры площадью 65 кв.м. предусмотрели все необходимое:

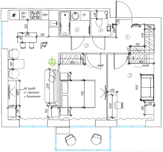
План расстановки мебели
План расстановки мебели

Изюминкой квартиры стала большая угловая кухня с островом, о котором мечтала заказчица. В кухне-гостиной можно собраться большой компанией друзей или расслабиться после работы на мягком диване.

Спокойный интерьер спальни идеально подойдет для отдыха и крепкого сна. Нежная фреска в изголовье кровати и пастельные оттенки создают атмосферу легкости.

Детскую для подростка, который учится в другом городе, сделали в темных оттенках. Получился современный лаконичный интерьер, который будет актуален долгие годы.

Важным элементом интерьера также стало пространство хранения. Для хозяев квартиры было важно, чтобы шкафы не занимали много места и при этом были функциональны. Поэтому мы сделали в каждой комнате удобные комоды, ящики и шкафы.

По проекту заказчика нужно было продумать 2 санузла. Получился лаконичный интерьер в сдержанных оттенках, а натуральные текстуры добавили тепло и уют. Интересным решением стала замена обычной душевой шторки на стеклянную перегородку.

Хотите создать современный дизайн интерьера для Вашего дома?
Напишите нам в личные сообщения, позвоните по телефону 63-90-90 или оставьте заявку по ссылке
https://clck.ru/YhqNC