Найти в Дзене
Просто Ремонт

Что предусмотреть в планировке, если в квартире есть собака? Показываем пять вариантов

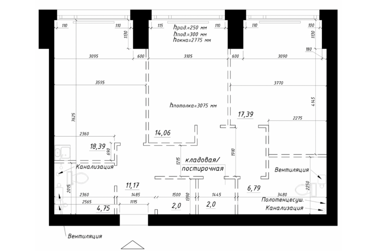
Когда в доме есть собака, планировка должна быть удобной не только для вас, но и для питомца. Показываем, что нужно предусмотреть на примере конкурсного задания из проекта «Битва планировок»: над задачей работали четыре дизайнера. Задача Квартира в новостройке на 10-м этаже, площадь — 74,5 м². Семья: мама, дочь-подросток, собака (кавалер-кинг-чарльз-спаниель). Какие хотелки в целом Дизайн. Современный стильный интерьер. Нужен воздух, свет, чистота; Цвет. Сочетание холодного серого с теплым бежевым, но открыты для предложений; Организация пространства. Бережем каждый сантиметр. Выжимаем из невыжимаемого и непринужденно впихиваем невпихуемое. Зоны хранения как бы есть и их как бы нет, но они очень нужны; Место для собаки. Собака — полноценный член семьи, который имеет право на личную лапомойку, в частности. Какие хотелки в частности 1. Спальня дочери — спальня стильной современной девушки. 2. Маленький санузел / душ. 3. Основная спальня: 4. Кухня-гостиная: Что предложили дизайнеры Вариа
Оглавление

Когда в доме есть собака, планировка должна быть удобной не только для вас, но и для питомца. Показываем, что нужно предусмотреть на примере конкурсного задания из проекта «Битва планировок»: над задачей работали четыре дизайнера.

Задача

Квартира в новостройке на 10-м этаже, площадь — 74,5 м². Семья: мама, дочь-подросток, собака (кавалер-кинг-чарльз-спаниель).

Потолки — 3,08 м², подоконник — 30 с
Потолки — 3,08 м², подоконник — 30 с

Какие хотелки в целом

Дизайн. Современный стильный интерьер. Нужен воздух, свет, чистота;

Цвет. Сочетание холодного серого с теплым бежевым, но открыты для предложений;

Организация пространства. Бережем каждый сантиметр. Выжимаем из невыжимаемого и непринужденно впихиваем невпихуемое. Зоны хранения как бы есть и их как бы нет, но они очень нужны;

Место для собаки. Собака — полноценный член семьи, который имеет право на личную лапомойку, в частности.

Какие хотелки в частности

1. Спальня дочери — спальня стильной современной девушки.

  • кровать;
  • рабочий стол;
  • туалетный столик;
  • место для хранения;
  • гардеробная;
  • уголок для четвероного друга;
  • «покреативить бы чуть-чуть» (это уже пожелание дочки).⠀

2. Маленький санузел / душ.

3. Основная спальня:

  • гардеробная (максимально функциональная, перегородка — стекло);
  • санузел (большая столешница, идеально — душ и ванна, но душ в приоритете).

4. Кухня-гостиная:

  • удобный глубокий диван;
  • широкий подоконник;
  • остров/полуостров;
  • кухня с раздвигающимся стеклянным фартуком.

Что предложили дизайнеры

Вариант 1. @lvikafedyshyna

При входе организована небольшая гардеробная, она же помывочная для собаки — сюда можно поставить грязную обувь и повесить мокрую одежду (актуален вопрос качественной вентиляции).

Расположение комнат изменено, чтобы хозяйкам было комфортно отдыхать, занимаясь своими делами.

В кухне предусмотрено хранение за раздвижным фартуком, а под островом можно держать бытовые приборы и доставать их по необходимости (в острове есть розетки).

Стену, которая отделяет кухню и гардеробную/помывочную, можно в верхней части сделать светопропускающей.

-2

Вариант 2. @comfort.space.des

Я перенесла кухню на место коридора, тем самым расширив кухонную линию, что дало возможность разместить остров.

В гостиной за ТВ — мебельная конструкция до потолка. Стена справа от окна выполнена едиными МДФ-панелями с мебелью за ТВ. Доступ в пространство за телевизором осуществляется сбоку из соседней секции.

За кухней — кладовая для несезонной верхней одежды, обуви и крупногабаритных вещей с лапомойкой для собаки. В зоне прихожей — пуф, обувница для используемой обуви и вешалка для сезонной одежды над ней. По ТЗ в зоне видимости входной двери в квартиру расположила место собаки.

В малом санузле на площади бывшей кухни — стиральная и сушильная машины во встроенном шкафу.

Спальню дочери (она же кабинет, для согласования) расположила на месте кухни. Кровать с матрасом 160 см — по желанию заказчика.

Мастер-спальня с проходным гардеробом длиной 1,8 м и санузлом. Просторная душевая, большая столешница со встроенной раковиной и тумбой снизу. Много мест хранения.

-3

Вариант 3. @comfort.space.des

Здесь я также перенесла кухню на место коридора — в таком варианте получилось разместить полуостров с барной стойкой. В гостиной — угловой диван 2,4 × 1,8 м, его можно заменить на прямой и сделать широкий подоконник-лавочку. За диваном — высокий стеллаж с открытыми полками от верха спинки дивана.

Мастер-спальня с гардеробом 3 м² и ванной комнатой. Ванна — 170 см, душевая шириной 80 см и столешница со встроенной раковиной.

-4

Вариант 4. @remontogoliki

Старалась максимально отработать ТЗ, не нарушив закон. Для хранения велосипеда нужно сделать скрытую дверь и отодвигать пуф на колесиках (место Добби). Если он не нужен, то достаточно входа из коридора (двери-купе). При входе — шкаф и полка для мелочей.

В кухне-гостиной над и под телевизором — скрытое хранение, а с торца — винный шкаф и место с подсветкой для красивой посуды. Из полуострова выезжает встроенный стол. Мастершеф стоит на столешнице за фасадом, с открыванием вверх. Большие подоконники-лавки должны понравится Добби :)

В комнате дочери — складной туалетный столик, а в стене — зеркало и место для хранения косметики. Лишний стул ставить не стала. Стену между комнатами скруглила для легкости перемещения.

В мастер-спальне — большой гардероб за стеклянной перегородкой и огромная ванная комната. Раковина также отделена стеклом для ощущения «воздуха».Зона ванны и душа — за стеклом от комнаты, в нее будет попадать солнечный свет (можно повесить штору). В коробах над инсталляцией — место для хранения.

-5

Вариант 5. @pirogova.interiors

Знаю, что перенос кухни — это непростое решение, но думаю, выигрышное для заказчика с точки зрения организации пространства и избавления от коридоров. Кухня-гостиная в этом варианте — центр квартиры.

В санузле решены все обозначенные хотелки. Для кавалерчика и его лежака сделана ниша у входной двери, а в санузле обустроена раковина для помывки :)

Слева от гостиной, под углом, расположен вход в детскую комнату. При этом я бы подчеркнула дополнительную диагональ стены рисунком напольного покрытия и усложнила бы восприятие контура всех помещений.

В правой части квартиры находится блок хозяйки — спальня с проходной гардеробной и большой ванной комнатой. В последней есть возможность поставить ванну на место душевой кабины, в зоне унитаза расположить душевую, а унитаз перенести в зону ниши слева при входе в ванную.

-6

Пишите в комментариях, какой вариант вам больше понравился и почему. Про задачи и решения из «Битвы планировок» мы уже писали. Если вдруг пропустили, прочитать можно по ссылке.

-7