Найти в Дзене
ЭТО ВАШ ИНТЕРЬЕР

Зрелая пара решила сделать ремонт в квартире, но сохранили "бабушкину" мебель. Получилось стильно и элегантно. Фото до и после

Наши герои живут в этой квартире уже не одно поколение. И так как ремонт делался уже давно они решили обновить интерьер с минимальными затратами. Они хотели сохранить часть прежней отделки и мебели, но в то же время вдохнуть новую жизнь в свою квартиру. Дизайнер учёл все пожелания владельцев и даже сделал небольшую перепланировку, где получилось выиграть место для гардеробной. Проект Так как хозяйка хотела сохранить отделку пола и потолка, перепланировка затронула только отдельные зоны. Помимо гардеробной здесь появилась отдельная прачечная. Также на кухне и в коридоре избавились от косых стен и кривых углов. Гостиная На самом деле ничего плохого в прежнем интерьере здесь не было, просто владельцы решили обновить интерьер и сделать его более светлым с яркими акцентами. Первым делом покрасили все стены в светлый оттенок. Шторы повесили зелёные, чтобы добавить акцентов помещению. К сожалению, не всё напольное покрытие удалось сохранить, так как в некоторых помещениях оно было очень потр
Оглавление

Наши герои живут в этой квартире уже не одно поколение. И так как ремонт делался уже давно они решили обновить интерьер с минимальными затратами. Они хотели сохранить часть прежней отделки и мебели, но в то же время вдохнуть новую жизнь в свою квартиру.

До
До

Дизайнер учёл все пожелания владельцев и даже сделал небольшую перепланировку, где получилось выиграть место для гардеробной.

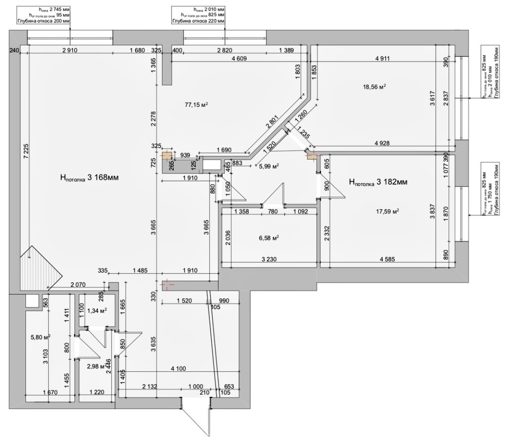
Проект

  • Местонахождение: г. Новосибирск
  • Площадь квартиры: 136 кв. метров
  • Владельцы: семейная пара средних лет
После
После

Так как хозяйка хотела сохранить отделку пола и потолка, перепланировка затронула только отдельные зоны. Помимо гардеробной здесь появилась отдельная прачечная. Также на кухне и в коридоре избавились от косых стен и кривых углов.

Гостиная

На самом деле ничего плохого в прежнем интерьере здесь не было, просто владельцы решили обновить интерьер и сделать его более светлым с яркими акцентами.

Первым делом покрасили все стены в светлый оттенок. Шторы повесили зелёные, чтобы добавить акцентов помещению. К сожалению, не всё напольное покрытие удалось сохранить, так как в некоторых помещениях оно было очень потрёпанным. Поэтому часть паркета заменили на новое покрытие, которое в точности копирует рисунок и толщину прежнего паркета.

В обновлённую гостиную переехала мебель с прежнего интерьера, а именно: тумба под телевизор, комод, столики под настольные лампы и обеденный стол. Также на стене разместились хозяйские картины, так как наши герои очень любят живопись. Имеющийся камин покрасили и немного обновили. Он полностью функционирует, что является большой редкостью для городских квартир.

-5

Кухня

На кухне, единственное, что сохранилось от прежнего интерьера - это потолок, так как нашим героям в прежней кухне не нравилось абсолютно всё: от цвета фасадов, до бестолкового размещения систем хранения.

До
До

Новая кухня выполнена на заказ из массива в максимально светлом оттенке, чтобы она визуально растворилась в пространстве. На полу выложили белую плитку. Основная система хранения расположилась в колоннах.

После
После

Также здесь появилась большая столовая зона, так как к нашим героям очень часто приезжают гости и дочь с мужем. Столешница выполнена из белого акрилового камня. Даже индукционную варочную панель выбрали в белом цвете, чтобы она не выделялась из общей картины.

-8

Спальня

До
До

Спальня хозяев была в целом очень аккуратная и спокойная. Но чтобы оживить интерьер, дизайнер решил сделать акцентную стену у изголовья кровати. У новой кровати появилось большое стёганое изголовье. Текстиль и часть мебели также заменили на новые.

После
После

Гостевая комната

В гостевой комнате раньше жила дочка наших героев. Но так как девочка уже выросла, она уже давно живёт отдельно и эта комната является, в основном, комнатой для гостей, если они вдруг остаются на ночь. Напольные покрытия и стены оформили теми же материалами, которые использовались в оформлении других комнат.

-11

Также появился обновлённый диван, который при необходимости трансформируется в спальное место. Напротив дивана расположился комод, который сделан по индивидуальным эскизам дизайнера проекта.

После
После

Ванная комната

Ванная комната потерпела большие изменения. С самого начала ремонт начался с перепланировки: унитаз решили скрыть за перегородкой. Над ним же появился встроенный шкаф с водонагревателем.

До
До

Так же здесь появилась зона хранения, которая находится в нише, скрытой двойной душевой шторкой. В отделке ванной комнаты использовались: напольная плитка, керамогранит и также влагоустойчивая краска.

После
После
-15

Гостевой санузел

Гостевой санузел оформили немного по-другому. Часть стены сделали белой плиткой, а верхнюю часть покрыли влагоустойчивой голубой краской.

После
После

Если вам понравилась данная статья, то не забудьте поставить лайк и подписаться, чтобы не пропустить новый материал!