Добавить в корзинуПозвонить
Найти в Дзене
АВАНГАРД СТРОЙ

Новый качественный Дом с участком, меньше чем за 4 млн. р., где подвох?

Ответим на вопрос сразу - подвоха нет! А вот почему мы так считаем, сейчас расскажем. Кто из нас хоть раз не мечтал переехать из квартиры в собственный дом рядом с городом? Какой бы ни была квартира, в ней всегда не хватает места. Хочется отдельную комнату для каждого члена семьи, широкий тамбур, чтобы не толпиться в прихожей, решить проблему с парковкой во дворе, без опасений выпускать детей на прогулку на собственную детскую площадку. Но всегда что-то останавливает, например строительство кажется слишком дорогим или не находится подходящего участка. В коттеджном посёлке Авангард мы будем строить дома, в котором все эти актуальные проблемы учтены! Идеальное решение - одноэтажный стильный дом в стиле Барнхаус с огромными панорамными окнами и максимально продуманной до мелочей планировкой. Далее в статье расскажем вам о нем подробнее. А также о месте, в котором она построен - коттеджный поселок Авангард. Предупреждаем, предложение настолько хорошее, что уже на момент написания это ста
Оглавление
Ответим на вопрос сразу - подвоха нет! А вот почему мы так считаем, сейчас расскажем.

Кто из нас хоть раз не мечтал переехать из квартиры в собственный дом рядом с городом? Какой бы ни была квартира, в ней всегда не хватает места.

Хочется отдельную комнату для каждого члена семьи, широкий тамбур, чтобы не толпиться в прихожей, решить проблему с парковкой во дворе, без опасений выпускать детей на прогулку на собственную детскую площадку.

Но всегда что-то останавливает, например строительство кажется слишком дорогим или не находится подходящего участка.

В коттеджном посёлке Авангард мы будем строить дома, в котором все эти актуальные проблемы учтены! Идеальное решение - одноэтажный стильный дом в стиле Барнхаус с огромными панорамными окнами и максимально продуманной до мелочей планировкой.

Далее в статье расскажем вам о нем подробнее. А также о месте, в котором она построен - коттеджный поселок Авангард. Предупреждаем, предложение настолько хорошее, что уже на момент написания это статьи несколько домов уже раскупили!

Чем же хорош дом по проекту Барнхаус 10?

Чтобы ответить на этот вопрос подробно, дадим слово профессионалу.

Идея для проекта всегда зарождается в первую очередь исходя из потребностей наших клиентов. Наша задача заключалась в том, чтобы максимально их реализовать и получить красивый, комфортный, функциональный загородный дом. На мой взгляд с этой задачей мы справились. Для полного погружения в наш новый проект, мы расскажем о его преимуществах и особенностях.

Преимущества:

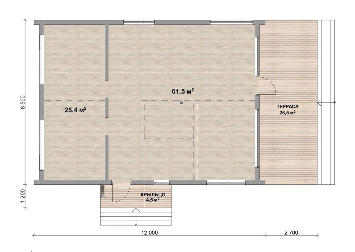
1. Свободная планировка. Пространство (84 м2) спланировано таким образом, что вы можете выбрать одно из наших готовых планировочных решений или создать своё, опираясь лишь на несущие конструкции.

Планировка дома. Пунктиром отмечены перегородки, которые вы можете поставить, в зависимости от ваших желаний. Четкий контур имеют несущие стены.
Планировка дома. Пунктиром отмечены перегородки, которые вы можете поставить, в зависимости от ваших желаний. Четкий контур имеют несущие стены.

2. Функциональность. В зависимости от выбранной вами планировки (2-х комнатной или 3-комнатной), все функциональные зоны будут максимально отвечать вашим основным потребностям:

- Хранение вещей. В прихожей вы можете расположить большой шкаф или целую гардеробную.

- Стильная функциональная кухня с окном. В обоих вариантах кухня имеет оптимальную конфигурацию для хранения посуды и приготовления пищи. А окно над столешницей не только образует дополнительное освещение, но и создает дополнительную вентиляцию в помещении.

- Большая терраса. Комфортная и удобная, она имеет оптимальные размеры для размещения большого стола, гриля и других атрибутов для дачного отдыха.

- Просторные спальные комнаты. В них гармонично сочетаются зоны для сна и отдыха, хранения вещей, а также есть место для работы.

- Продуманный сценарий освещения. Красивая акцентная подсветка в кухне-гостиной, потолочные люстры в современном стиле, трековые светильники с удобной регулировкой создают разные варианты освещения в зависимости от ваших потребностей.

3. Панорамное остекление. Наслаждаться прекрасным видом из окна из всех помещений теперь возможно! Такое остекление создает особенное ощущение единения с природой. Так, создавая сад у себя на участке, вы одновременно впускаете его к себе домой.

4. Улучшенная шумоизоляция. За счет грамотного размещения всех помещений на одном этаже, мы получили существенное преимущество над 2-х этажным домом, где шумоизоляция межэтажного перекрытия значительно ниже.

5. Единый стиль экстерьера и интерьера. Гармоничное сочетание архитектурного стиля барн и разработанного нами интерьера делает дом целостным и законченным.

Благодаря гармоничному сочетанию всех параметров мы получили по-настоящему комфортный функциональный дом. А вы можете приобрести его и пользоваться этими благами. Только до 30 апреля на дом действует скидка - 3,99 млн. р.

Более подробно о том, что вы получите за эту сумму, можно узнать по ссылке https://avgst.ru/catalog/gotovye-doma-v-prodazhe/product/barnkhaus-10-v-kp-avangard

Участок 13 соток - большая удача.

Мы предлагаем прямоугольные участки. Такая форма оптимальна, на ней можно расположить и дом, а в дальнейшем и гараж, и беседку, и баню. А также они идеальны для того, чтобы развести сад и проложить каменные или деревянные дорожки.

Генплан застройки участков домами по проекту Барнхаус 10. Красным цветом отмечены уже забронированные дома.
Генплан застройки участков домами по проекту Барнхаус 10. Красным цветом отмечены уже забронированные дома.

А еще расположение домов на участках мы специально сделали таким, чтобы ваша частная жизнь оставалось частной. Вы не будете видеть и слышать ваших соседей, если не захотите. И наоборот.

Будьте уверены, вы не почувствуете, будто бы на участке вам тесно. Скорее устанете ходить от дома к беседке и обратно. Хотя эта проблема может легко решиться с помощью грамотной планировки. Все в ваших руках.

Почему так недорого?

Ответит наш директор по развитию - Александр Лазарев
Ответит наш директор по развитию - Александр Лазарев

Действительно недорого. Вы сами можете это проверить. На рынке недвижимости сейчас нет предложений по новым домам и одноэтажным, и двухэтажным площадью больше 100 м2 менее чем за 5 000 000 руб. Как у нас получилось сэкономить миллион? Отвечаем.

1. Старт продаж. Когда дома только появляются, нет нужды ставить высокий ценник. Мы продаём дома почти по себестоимости.

2. Оптимизация производства. Как мы уже говорили, Барнхаус 10 производится в заводских условиях. Чтобы процесс встал на поток мы перенастроили оборудование. Дома собираются друг за другом. Это позволяет нам делать оптовые закупки комплектующих и работы, экономить электроэнергию. Так стоимость снижается на 20-30%.

3. Мы заинтересованы в том, чтобы посёлок как можно быстрее наполнился жильцами. Это нужно нам для того, чтобы КП Авангард становился популярнее. Мы хотим привлекать инвесторов и повышать качество жизни тех, кто уже живет в нем.

Кажется, пока мы писали эту статью, влюбились в Барнхаус 10 в очередной раз. Надеемся, что и вам он понравился. Купив такой дом, вы уже к лету сможете поставить на участке мангал и наслаждаться загородной жизнью.

Наши сотрудники готовы говорить о нём часами, поэтому, если вам нужна дополнительная информация, не ждите! Свяжитесь с нами по номеру +7(831) 288-54-58. До новых встреч!