Найти в Дзене
SALON-interior

Маленькая и эффектная квартира-сад в шаге от Кремля

Дизайнер Ирина Буранова из «ОлимпСтройСервис» создала лаконичный и изысканный интерьер, в котором соединила современные тенденции и классические мотивы, отражающие историческое местоположение. Заказчики и задачи Квартира находится в ЖК Balchug Viewpoint, расположенном в шаговой доступности от Кремля. Хозяева — семейная пара, финансисты, много работают и много путешествуют. Апартаменты предназначены для отдыха и приёма гостей в те редкие моменты, когда супруги бывают в городе. В будущем, возможно, это квартира перейдет дочери-студентке. Так что перед автором проекта стояла нетривиальная задача: создать интерьер для максимально комфортного отдыха, актуального и современного многие годы. Планировка Фактически получился формат в виде евродвушки с полноценной кухней-гостиной и спальней. Чтобы было больше воздуха и пространства, спальню не стали прятать за дверями и перегородками — благодаря высоким открытым проёмам по бокам от кровати комната включена в общее пространство и в то же время яв
Оглавление

Дизайнер Ирина Буранова из «ОлимпСтройСервис» создала лаконичный и изысканный интерьер, в котором соединила современные тенденции и классические мотивы, отражающие историческое местоположение.

Заказчики и задачи

Квартира находится в ЖК Balchug Viewpoint, расположенном в шаговой доступности от Кремля. Хозяева — семейная пара, финансисты, много работают и много путешествуют. Апартаменты предназначены для отдыха и приёма гостей в те редкие моменты, когда супруги бывают в городе. В будущем, возможно, это квартира перейдет дочери-студентке. Так что перед автором проекта стояла нетривиальная задача: создать интерьер для максимально комфортного отдыха, актуального и современного многие годы.

Автор проекта: Ирина Буранова. Фото: Борис Бочкарев. Стиль: Ольга Харламова, Анастасия Уфимцева
Автор проекта: Ирина Буранова. Фото: Борис Бочкарев. Стиль: Ольга Харламова, Анастасия Уфимцева

Планировка

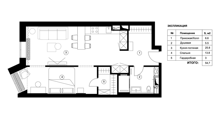
Фактически получился формат в виде евродвушки с полноценной кухней-гостиной и спальней. Чтобы было больше воздуха и пространства, спальню не стали прятать за дверями и перегородками — благодаря высоким открытым проёмам по бокам от кровати комната включена в общее пространство и в то же время является отдельным помещением.

«Так как квартира не для постоянного проживания, мне хотелось сделать как можно более открытое и свободное пространство, способствующее атмосфере отдыха, но так, чтобы не было ощущения отеля, — отмечает дизайнер Ирина Буранова. — Места хранения старались максимально спрятать. Особенную сложность представляла планировка, так как квартира всего 5,5 м в ширину и 11 в длину. Поэтому мы отказались от гардеробной комнаты в пользу шкафа в прихожей, встроенного в нишу. Еще один встроенный шкаф установили между входом и кухней-гостиной. Так как он предназначен для хозяйственных нужд, сделали его максимально незаметным, покрасив в цвет стен. Спальня и гостиная фактически объединены — такое решение вполне допустимо для квартиры выходного дня».

Планировка квартиры
Планировка квартиры

Концепция

Заказчики просили сделать лаконично, в соответствии с архитектурой и локацией — отсюда минималистский интерьер с современными решениями и классическими элементами в виде лепнины, наличников и дверей. «Хозяевам нравится стилистика ар-деко, при этом близок и минимализм, — замечает Ирина. — Современная классика ближе всего отразила их пожелания. Строгость линий, технический свет и подсветка прекрасно сочетаются с лепниной на стенах, филенчатыми дверными наличниками и фигурным напольным плинтусом».

Декор подбирался в соответствии с концепцией «квартира-сад», чтобы было как можно больше цветовых акцентов, которые усложняют пластику и атмосферу пространства. Подушки с цветочным принтом, оригиналы ботанических иллюстраций из книги 1970-х гг., шелковый ковёр с зеленым градиентом, темно-зелёное постельное белье, панно на тему цветущего сада, гипсовые кашпо, подсвечники с птицами делают интерьер более сложным и насыщенным.

Автор проекта: Ирина Буранова. Фото: Борис Бочкарев. Стиль: Ольга Харламова, Анастасия Уфимцева
Автор проекта: Ирина Буранова. Фото: Борис Бочкарев. Стиль: Ольга Харламова, Анастасия Уфимцева

Цветовое решение

Цветовая палитра решена в серо-зелёной гамме, компенсирующей отсутствие природы. Получилась своего рода квартира-сад. Дизайнер и владельцы сошлись на общей любви к насыщенному изумрудному цвету. К тому же апартаменты расположены в центре, где из окон не видно ни одного дерева. Таким образом, изумрудные акценты восполняют отсутствие зеленых насаждений в округе.

Зеленый цвет присутствует локально, в виде штор, элементов отделки и предметов мебели. Керамогранит с текстурой натурального камня привносит ощущение природности, панно над кроватью в пудрово-зеленых оттенках создает в комнате ощущение весны, а синее кресло у окна и шкаф в прихожей поддерживают общую природную палитру «земля и небо».

Кухня-гостиная

По бокам от дивана установлены зеркала в молдингах, расширяющие пространство и придающие ему глубины возле окна. Круглая люстра собирает и зонирует пространство. На полу — высококачественный кварцвинил от компании Finefloor. Стены окрашены краской Sherwin-williams.

В зоне кухне отказались от стола в пользу барной стойки, тут можно устроить романтический ужин или посиделки с друзьями. Также это один из способов зонирования узкого пространства гостиной. Так как площадь кухни небольшая, верхние шкафы заменяет полка, облицованная тонким керамогранитом Porcelanosa, таким же материалом отделан кухонный фартук и вытяжки.

Спальня

Спальня оформлена свежо и красочно. Тон задает настенная фреска (Fluidart) на тему цветущего сада. Темно-зеленый простенок выкрашен на контрасте, чтобы визуально сократить длину узкой комнаты. Картина над прикроватной тумбой — работа дочери хозяев.

Так как комната узкая и ассиметричная, идет на сужение, кровать практически упирается стену, но при этом ее можно обойти. Эркер с панорамным остеклением зонирован с помощью потолочного карниза. Здесь оборудована уютная зона для чтения и отдыха, откуда открывается вид на Садовническую набережную.

Освещение с каждой стороны кровати решено по-разному. Это сделано для того, чтобы помещение смотрелось интереснее, смягчался эффект узкого и длинного пространства. Стеклянные подвесы привносят лёгкость, а скульптура попугая, цветы в кадках и в вазах создают приятную, расслабляющую атмосферу.

Прихожая

При входе сделали небольшое зеркало с подвесной тумбой и пуфом и крючки для сумок. Круглая потолочная люстра собирает пространство так же, как и в гостиной.

Автор проекта: Ирина Буранова. Фото: Борис Бочкарев. Стиль: Ольга Харламова, Анастасия Уфимцева
Автор проекта: Ирина Буранова. Фото: Борис Бочкарев. Стиль: Ольга Харламова, Анастасия Уфимцева

Ванная комната

Душевая решена решена в нейтральных тонах, декорирована строгим потолочным плинтусом и дополнена скрытой подсветкой.

Проекты архитекторов и дизайнеров, интерьеры знаменитостей, обзоры новинок мировых брендов — на нашем канале! Подписывайтесь: https://zen.yandex.ru/salon.ru

Как отделить кухню и гостиную: 10 самых актуальных решений

Стеклянная перегородка, ниша, остров-барная стойка и другие приёмы.

Как оформить современный интерьер, который долго будет актуальным

Рассказываем и показываем на реальном примере.

Понравился ли вам интерьер этой квартиры? Какие дизайнерские и планировочные решения кажутся самыми удачными?