Добавить в корзинуПозвонить
Найти в Дзене

Пять важных критериев при выборе САПР для электротехники в 2022 году

Если вы стоите перед выбором автоматизированной системы проектирования для электротехники, наверняка у вас разбегаются глаза. Выбор ПО сегодня настолько велик, что недолго и запутаться. Вы можете прислушаться к рекомендациям коллег, смотреть рейтинги и отзывы или почитать, на какие качества рекомендуют обратить внимание специалисты по продаже ПО. Мы знаем о САПР всё и расскажем, что обязательно учесть при покупке хорошего инструмента. Специализированные инструменты Перед покупкой хорошо изучите возможности САПР и оцените, насколько они подходят именно вам. Будет неприятно, если для выполнения проекта понадобится искать дополнительные решения. Многие программы предлагают специализированные модули или пакеты инструментов для решения конкретных задач, таких как создание однолинейных схем, проектирование жгутов, двух- и трехмерная компоновка шкафов или работа с контроллерами ПЛК. Будет совсем круто, если система умеет автоматически генерировать проектную и отчетную документацию. Всё это не
Оглавление

Если вы стоите перед выбором автоматизированной системы проектирования для электротехники, наверняка у вас разбегаются глаза. Выбор ПО сегодня настолько велик, что недолго и запутаться. Вы можете прислушаться к рекомендациям коллег, смотреть рейтинги и отзывы или почитать, на какие качества рекомендуют обратить внимание специалисты по продаже ПО. Мы знаем о САПР всё и расскажем, что обязательно учесть при покупке хорошего инструмента.

Специализированные инструменты

Перед покупкой хорошо изучите возможности САПР и оцените, насколько они подходят именно вам. Будет неприятно, если для выполнения проекта понадобится искать дополнительные решения. Многие программы предлагают специализированные модули или пакеты инструментов для решения конкретных задач, таких как создание однолинейных схем, проектирование жгутов, двух- и трехмерная компоновка шкафов или работа с контроллерами ПЛК. Будет совсем круто, если система умеет автоматически генерировать проектную и отчетную документацию. Всё это не только упростит вашу работу, но и ускорит её. А чем больше ваша продуктивность, тем симпатичнее и доход.

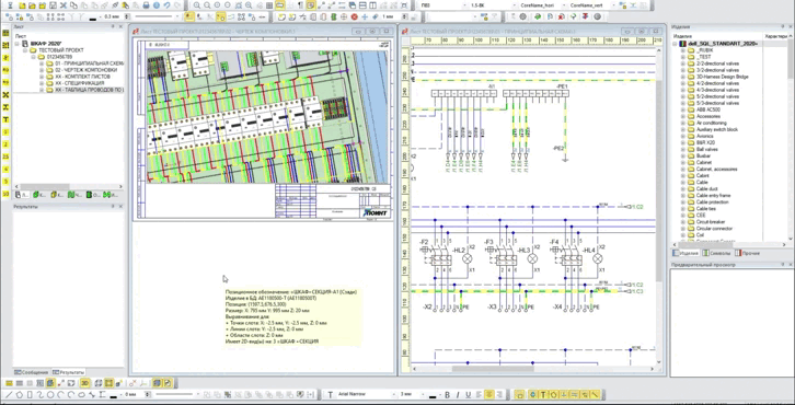
Пример выполнения отчетной документации в электротехнической САПР
Пример выполнения отчетной документации в электротехнической САПР

Совместная работа

Обратите внимание на то, предусмотрена ли в системе проектирования совместная работа. Когда разные части проекта выполняются несколькими специалистами или отделами, собрать их воедино без ошибок – сложная задача, часто, превосходящая по времени само проектирование. Гораздо удобнее, если разработка ведется в общем проекте. В этом случае многие САПР поддерживают так называемые ассоциативные связи или, другими словами, сквозное проектирование. Это значит, что, если какой-то компонент, размещенный на разных схемах и листах, будет изменен в одном месте, он автоматически обновится во Совместная работа частях проекта. Что позволит избежать самой распространенной ошибки – несинхронизированных данных.

Сквозное проектирование в электротехнической САПР
Сквозное проектирование в электротехнической САПР

Программные проверки

Даже если вы опытный профессионал, не стоит отказываться от благ, которые предоставляют современные САПР. Мы говорим о такой функции, как автоматические программные проверки. Это информационные маячки, которые включаются, если система видит ошибку. И да, ошибаются даже самые внимательные из нас. Поэтому рекомендуем не только предусмотреть такой функционал, но и доверять предостережениям системы. Представьте, как будет обидно, если в производстве окажется, что какой-то кабель не подходит по диамтеру к клеммной коробке, или обнаружится несоответствие компонента электрическим характеристикам. На исправление понадобится много времени и денег, а это обычно не нравится работодателям.

Готовые базы данных

Это чуть ли не самая крутая штука, которая может ускорить проектирование в разы. Представьте, что в вашем арсенале появляются тысячи готовых компонентов от разных производителей, проектных институтов и организаций. Просто берите и вставляйте их в проект. Такие базы вместе с лицензией предоставляют обычно крупные мировые вендоры. Например, Zuken со своей электротехнической САПР E3.series. Кроме этого, не лишней будет возможность создания собственной общей БД, например, в рамках одной организации. В этом случае, компонент, добавленный одним пользователем, будет доступен всем участникам команды. Значит, вы легко сможете повторно использовать готовые наработки со всеми их характеристиками и параметрами. Столько времени сэкономите!

Перманентная лицензия

Как показывает опыт, стабильность в нашем мире не всегда стабильна. И уж если вы решили вложиться в покупку хорошего профессионального инструмента, рекомендуем обратить внимание на вечную лицензию. Сегодня очень популярны подписки, когда вы платите небольшую сумму и можете пользоваться системой ограниченное время. Постоянная же лицензия гарантирует, что вы приобретаете ПО навсегда. И в случае ограничения возможности продления подписки, как это случилось недавно, вы не останетесь без рабочего инструмента. При этом сможете обновлять САПР за дополнительную плату, если это будет необходимо.

Итак, удачный выбор электротехнической САПР определяют пять критериев. Сегодня на рынке не так много решений, которые соответствовали бы каждому из них. Однако, они определенно есть.

Листайте дальше, чтобы перейти на официальный сайт, скачать демоверсию одной из самых продвинутых САПР E3.series, и попасть на бесплатный вебинар, посвященный её возможностям.