Добавить в корзинуПозвонить
Найти в Дзене
Пашамаша

Рассказываю, как сделать замок для кемпера.

Здесь опишу очень интересную тему, а именно как можно изготовить самому фургонный замок. Именно такой замок я хотел приобрести для двери Кемпера. Но признаюсь задушила жаба, да к тому же бюджет ограничен. Как я строю кемпер: Вот такой замок хотел приобрести для Кемпера. Но, потом в просторах интернета нашел чертеж и понеслось . К тому же у меня уже давно без дела лежит небольшой лист нержавейки толщиной 2мм. Вот ещё вариант Берём лист нержавейки делаем разметки как в чертеже и делаем надрезы болгаркой. Должно получится так . Делаем отверстие для личинки замка. Потом свариваем эти две детали. Изготавливаем саму клавишу с язычком. Все изгибы подгоняются по месту. Гнул нержавейку на тисках . Собираем в единое целое. В качестве оси клавиши применил длинный саморез для сендвич панелей. Сам засов сделан из труб 15х15 и 20х20. 15 труба в аккурат в 20 трубу входит . Делаем типа большого шпингалета Не забываем про пружинку. Также устанавливаем личинку замка. Типа почтового, но только

Здесь опишу очень интересную тему, а именно как можно изготовить самому фургонный замок. Именно такой замок я хотел приобрести для двери Кемпера. Но признаюсь задушила жаба, да к тому же бюджет ограничен.

Как я строю кемпер:

Строю кемпер вкладыш
Самоделкин10 апреля 2022

Вот такой замок хотел приобрести для Кемпера.

Замок для двери фургона хром
Замок для двери фургона хром

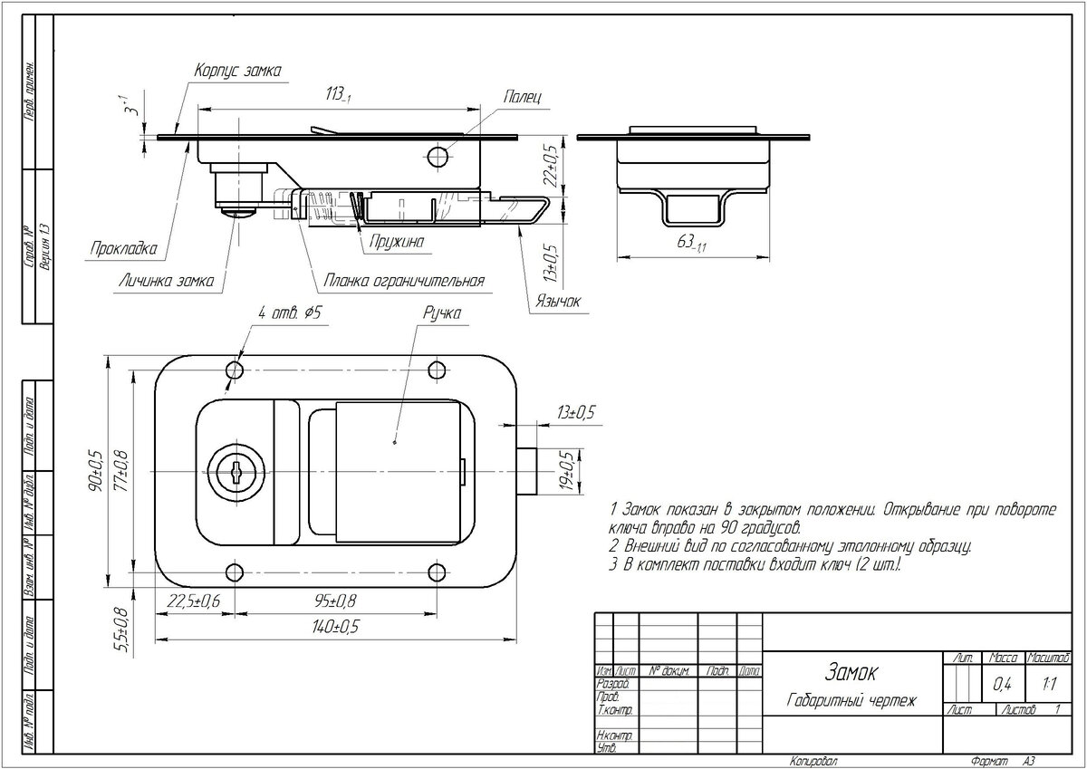
Но, потом в просторах интернета нашел чертеж и понеслось . К тому же у меня уже давно без дела лежит небольшой лист нержавейки толщиной 2мм.

Чертеж замка для фургона
Чертеж замка для фургона

Вот ещё вариант

-3

Берём лист нержавейки делаем разметки как в чертеже и делаем надрезы болгаркой.

-4
-5
-6

Должно получится так . Делаем отверстие для личинки замка. Потом свариваем эти две детали.

-7

Изготавливаем саму клавишу с язычком.

-8
-9

Все изгибы подгоняются по месту. Гнул нержавейку на тисках .

-10

Собираем в единое целое. В качестве оси клавиши применил длинный саморез для сендвич панелей.

Сам засов сделан из труб 15х15 и 20х20.

15 труба в аккурат в 20 трубу входит . Делаем типа большого шпингалета

Детали будущего замка.
Детали будущего замка.
-12
-13

Не забываем про пружинку. Также устанавливаем личинку замка. Типа почтового, но только покрепче

Сварка не очень, но этого не будет видно.
Сварка не очень, но этого не будет видно.

Вид готового изделия.

Самодельный клавишный замок
Самодельный клавишный замок

Клавишный замок получился очень крепким. Но конечно не лишён недостатков - нет хрома . Осталось сделать 4 отверстия для крепления к двери.

Как я собрал дверь для нашего жилого модуля и установил этот замок, подробнее тут

Дверь для Кемпера своими руками
Самоделкин10 апреля 2022