Найти в Дзене
INMYROOM

Дизайнер сделала симпатичный ремонт для семьи в панельном доме серии П-44. Теперь у каждого есть свое рабочее место

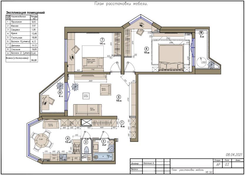
Хотите больше лайфхаков и идей для ремонта? Ставьте лайки и подписывайтесь, чтобы ничего не пропустить! 🙏 ➡️ Мы в телеграм: t.me/inmyroom Серия домов П-44 это распространенные панельки, главная особенность которых заключается в том, что все стены квартир несущие. Однако это не помешало дизайнеру Алине Калинкиной сделать красивый и функциональный интерьер. Небольшую перепланировку все же сделать получилось, за счет чего были организованы рабочие зоны для всех членов семьи. Планировка квартиры: В дизайне интерьера учтены последние тенденции мебельного производства – огромное количество мест хранения, которые скрыты от глаз в спокойной отделке фасадов. Основная задача – сделать квартиру удобной не только для отдыха, но и работы, а также учебы. Соответственно каждому члену семьи нужен свой «кабинет». Так как все межкомнатные стены в квартире несущие, сделать существенную планировку не представлялось возможным. Однако дизайнеру удалось расширить зону гостиной за счет примыкающего коридора.
Оглавление

Хотите больше лайфхаков и идей для ремонта? Ставьте лайки и подписывайтесь, чтобы ничего не пропустить! 🙏

➡️ Мы в телеграм: t.me/inmyroom

Серия домов П-44 это распространенные панельки, главная особенность которых заключается в том, что все стены квартир несущие. Однако это не помешало дизайнеру Алине Калинкиной сделать красивый и функциональный интерьер. Небольшую перепланировку все же сделать получилось, за счет чего были организованы рабочие зоны для всех членов семьи.

Дизайн: Алина Калинкина
Дизайн: Алина Калинкина

Планировка квартиры:

  • Город: Москва
  • Тип строения: панельный дом
  • Площадь: 85 м²
  • Высота потолков: 2,7 м.
  • Количество комнат: 3
  • Санузел: раздельный
Дизайн: Алина Калинкина
Дизайн: Алина Калинкина

В дизайне интерьера учтены последние тенденции мебельного производства – огромное количество мест хранения, которые скрыты от глаз в спокойной отделке фасадов. Основная задача – сделать квартиру удобной не только для отдыха, но и работы, а также учебы. Соответственно каждому члену семьи нужен свой «кабинет».

Так как все межкомнатные стены в квартире несущие, сделать существенную планировку не представлялось возможным. Однако дизайнеру удалось расширить зону гостиной за счет примыкающего коридора. Также были утеплены лоджии и обустроены рабочие зоны.

Получилось заменить сантехнические трубы. Для этого пришлось частично убрать перегородку в санузлах, а после сделать новую, не меняя «мокрых» зон.

Кухня

В помещении установлены несколько шкафов-пеналов под потолок. В них разместили основную бытовую технику и места хранения продуктов питания. Зона готовки визуально отделена от остальной части кухни кафельной плиткой под кирпич. Возле огромного окна гармонично вписался большой обеденный стол.

Коридор

Пол проходного коридора и кухни выложен без порожков керамогранитом в форме шестигранника. Цвет натурального дерева плитки и дверей добавляет интерьеру тепла и создает комфортную атмосферу.

Стены отделаны фактурными обоями спокойного оттенка, который служит прекрасным фоном для создания акцентов. Вся мебель и системы хранения выполнены на заказ и установлены в заранее подготовленные ниши.

Гостиная

Потолок и стены выкрашены в светло-бежевый цвет. На акцентной стене поклеены обои с орнаментом. Пол гостиной покрыт инженерной доской натурального древесного цвета. Рыжая обивка дивана и цвет штор создают ощущение, что в комнате всегда солнечно.

Из гостиной есть выход на просторный балкон, который переоборудован под рабочий кабинет. Попасть сюда можно через большую стеклянную дверь.

Спальня

Здесь также 3 стены и потолок выкрашены в один цвет, а четвертая выступает в роли акцента – обои с контрастным геометрическим рисунком. Им в поддержку были подобраны шторы с похожим орнаментом.

Мебель и пол дизайнер решила сделать в цвете натуральной древесины. Такой выбор придал комнате особого уюта и экологичности. Чтобы создать рабочую зону возле окна, пришлось перенести радиатор отопления на стену.

Детская

В комнате сына-подростка совмещено несколько функциональных зон. Здесь есть рабочий кабинет, место отдыха на диване и сектор для игр в приставку. На ночь диван раскладывается и превращается в полноценное спальное место.

Санузел

Помещения раздельного санузла небольшие, поэтому нужно было хоть визуально расширить пространство. В этом помог крупноформатный керамогранит с фактурным рисунком, который отвлекает на себя внимание.

Ванная комната отделана такой же плиткой из керамогранита. Справа широкая раковина с полками и зеркалом, по левую сторону уместилась стиральная машина.

Как вам такой дизайн? Что из этого вы бы повторили?

Понравилась статья? Ставьте лайк, делитесь с друзьями и подписывайтесь на канал INMYROOM.RU, чтобы видеть наши публикации в своей ленте!

Посмотрите наши обеденные, барные и офисные стулья.
Подарок 🎁 1000 ₽ на первый заказ от 20 000 руб. Введите промокод ZEN при заказе на INMYROOM (действуют ограничения).

-10

Еще больше вариантов дизайна типовых российских квартир смотрите на нашем youtube-канале INMYROOM TV. А в нашем маркетплейсе вы можете купить тысячи красивых предметов мебели и декора.

Смотрите нас в Telegram, RUTUBE, Youtube, Вконтакте