Добавить в корзинуПозвонить
Найти в Дзене

ХИТ! СТРОИМ ОДНОЭТАЖНЫЙ КАРКАСНЫЙ ДОМ С ОДНОСКАТНОЙ КРЫШЕЙ.

В поселке Кирпичный Ленинградской области начали строительство популярного одноэтажного каркасного дома с односкатной крышей по проекту "ПРОЕКТ ЯГОДНОЕ" (листайте карусель) Данный проект предусматривает кухню-гостинную, отдельную комнату, ванную-комнату, мастерскую, На сегодняшний день в поселке Кирпичном произведен монтаж перекрытия каркасного дома. Начальный этап работ завершен. Если Вам понравился данный проект, то вы можете изучить более подробную информацию и посмотреть планировку дома на нашем сайте или задать вопрос в комментариях! Подписывайтесь на наш канал и следите за всеми этапами строительства каркасного дома! #одноэтажный каркасный дом #популярный проект одноэтажного дома #дом с односкатной крышей #одноэтажная дача построить #построить дом

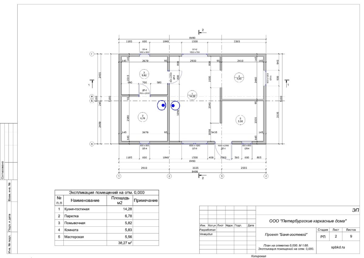
В поселке Кирпичный Ленинградской области начали строительство популярного одноэтажного каркасного дома с односкатной крышей по проекту "ПРОЕКТ ЯГОДНОЕ" (листайте карусель)

Данный проект предусматривает кухню-гостинную, отдельную комнату, ванную-комнату, мастерскую,

Проект одноэтажного каркасного дома
Проект одноэтажного каркасного дома

На сегодняшний день в поселке Кирпичном произведен монтаж перекрытия каркасного дома.

Перекрытие каркасного дома
Перекрытие каркасного дома

Начальный этап работ завершен.

Монтаж перекрытия каркасного дома
Монтаж перекрытия каркасного дома

Если Вам понравился данный проект, то вы можете изучить более подробную информацию и посмотреть планировку дома на нашем сайте или задать вопрос в комментариях!

Подписывайтесь на наш канал и следите за всеми этапами строительства каркасного дома!

#одноэтажный каркасный дом #популярный проект одноэтажного дома #дом с односкатной крышей #одноэтажная дача построить #построить дом