Добавить в корзинуПозвонить
Найти в Дзене
Платформа XIOT

Проект автоматизации квартиры 142 м2: щит, часть 1: сборка щита проекта автоматизации

Часть 1: Сборка щита проекта автоматизации Часть 2: Сборка щита автоматизации - продолжение Часть 3: Завершение сборки щита проекта автоматизации Часть 4: Программирование и создание приложения В данной и последующих статьях мы рассмотрим сборку щита автоматизации для проекта квартиры 142 м2. Описание проекта В данном проекте реализована система умного дома KNX на базе оборудования Zennio. Проектом предусмотрено управление всеми группами света (включение/выключение), диммирование светодиодных лент, фазное управление шторами. Управление климатом - электрический тёплый пол без локальных термостатов, через умное реле в щите и логический термостат на основе KNX, управление кондиционерами через шлюзы intesis KNX. В качестве элементов управления, в проекте используются: Сенсорные выключатели Zennio KNX со встроенными датчиками температуры воздуха, с входом для датчика температуры теплого пола, датчиком освещенности и приближения. Емкостные сенсорные панели Zennio Z35 KNX со встроенным термо
Оглавление

Часть 1: Сборка щита проекта автоматизации

Часть 2: Сборка щита автоматизации - продолжение

Часть 3: Завершение сборки щита проекта автоматизации

Часть 4: Программирование и создание приложения

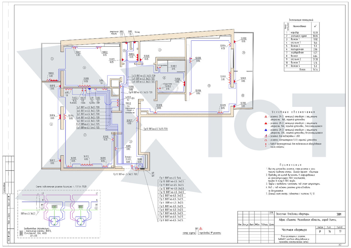
В данной и последующих статьях мы рассмотрим сборку щита автоматизации для проекта квартиры 142 м2.

Описание проекта

В данном проекте реализована система умного дома KNX на базе оборудования Zennio.

Проектом предусмотрено управление всеми группами света (включение/выключение), диммирование светодиодных лент, фазное управление шторами.

Управление климатом - электрический тёплый пол без локальных термостатов, через умное реле в щите и логический термостат на основе KNX, управление кондиционерами через шлюзы intesis KNX.

В качестве элементов управления, в проекте используются:

Сенсорные выключатели Zennio KNX со встроенными датчиками температуры воздуха, с входом для датчика температуры теплого пола, датчиком освещенности и приближения.

Емкостные сенсорные панели Zennio Z35 KNX со встроенным термостатом и датчиком температуры.

На бумаге

Проект щита

Изначально, в ходе разработки проекта, щиты силовой электрики и автоматизации планировались раздельные. Но, было решено реализовать систему в одном щите.

-2

Данное решение также было проработано, компоновка элементов как силовой части, так и системы автоматизации выполнена с учётом места под: проходные клеммы, удобное подключение, охлаждение.

-3

Реализация

Сборка щита

-4

Комплектуем устройства силовой электрики и систем автоматизации на дин-рейках.

-5

Система автоматизации выполнена на оборудовании умный дом Zennio KNX.

Центральный контроллер

-8

Xiot-Pro v6 - контроллер с установленным программным обеспечением XIOT, которое позволяет настроить индивидуальные сценарии и индивидуальный пользовательский интерфейс, максимально подходящие для данного решения и потребностей пользователя.

-9

В следующих статьях мы рассмотрим более детально сборку силовой части щита, сборку системы управления, пусконаладку и программирование.

#wirenboard #knx #zennio #умный дом #щит

Подписывайтесь на наш канал, чтобы не пропустить следующие статьи.

Подписаться.

Построить недорогой KNX умный дом легко! Обратитесь к специалистам xiot.ru и мы разработаем для Вас детальный проект умный дом любой сложности

Приобрести оборудование автоматизации Вы можете в нашем магазине xiot-shop.ru

Больше полезных советов, обзоров, интересных статей, оборудования умных домов и новостей о нём Вы можете найти на новостной странице нашего сайтаЮтубе и в Телеграм.​