Добавить в корзинуПозвонить
Найти в Дзене

Два шале 100 м2 - похожие проекты для разных обстоятельств

У наших заказчиков, подбирающих проект 100-метрового мансардного дома - шале, часто возникает дилемма - выбрать домик СОКОЛ или СВЕТЛЫЙ. Дома похожи по показателям и набору помещений: в обоих около 100 метров общей площади помещений, есть парковка, терраса, двусветная гостиная, в Соколе 3 спальни, и четыре - в Светлом. Дома похожи и внешне - это простые каменные шале. 👇 Описание стиля шале и подборка проектов шале Заказчики часто мучаются выбором, не зная, какой предпочесть... Так что же может повлиять на конечное решение? Принципиальное различие состоит в том, как нужно эти дома располагать на участке. 1. СОКОЛ - в глубине участка или посередине. 👇 Подробное описание проекта СОКОЛ 👇 Интересная подборка других домов для дальней части участка 2. СВЕТЛЫЙ - впереди, ближе к дороге. Видео - визуализация проекта дома 👇 Подробное описание проекта СВЕТЛЫЙ Другие проекты домов площадью до 100 м2 здесь... ► Чтобы не пропускать наши публикации, реагируйте лайком 👍, подписывайтесь на канал,
Оглавление

У наших заказчиков, подбирающих проект 100-метрового мансардного дома - шале, часто возникает дилемма - выбрать домик СОКОЛ или СВЕТЛЫЙ.

Дома похожи по показателям и набору помещений: в обоих около 100 метров общей площади помещений, есть парковка, терраса, двусветная гостиная, в Соколе 3 спальни, и четыре - в Светлом.

Дома похожи и внешне - это простые каменные шале.

👇 Описание стиля шале и подборка проектов шале

Дом в стиле ШАЛЕ - признаки стиля, много красивых фото и несколько готовых проектов.
Инваполис - проекты рациональных домов 13 марта 2023

Заказчики часто мучаются выбором, не зная, какой предпочесть...

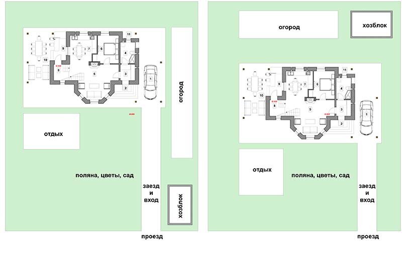
Так что же может повлиять на конечное решение? Принципиальное различие состоит в том, как нужно эти дома располагать на участке.

1. СОКОЛ - в глубине участка или посередине.

  • S общая 100 м2, S жилая 82 м2, Габариты 11 х 18 м

👇 Подробное описание проекта СОКОЛ

СОКОЛ 100 м2 - проект дома шале с тремя спальнями, двусветной гостиной и эркером
Инваполис - проекты рациональных домов 6 мая 2022

👇 Интересная подборка других домов для дальней части участка

2. СВЕТЛЫЙ - впереди, ближе к дороге.

  • S общая 111 м2, S жилая 81 м2, Габариты 11 х 16 м

Видео - визуализация проекта дома

👇 Подробное описание проекта СВЕТЛЫЙ

СВЕТЛЫЙ 111 м2 - проект небольшого дома шале на 4 спальни, с мансардой, навесами, из пеноблоков
Инваполис - проекты рациональных домов 6 января 2022

Другие проекты домов площадью до 100 м2 здесь...

► Чтобы не пропускать наши публикации, реагируйте лайком 👍, подписывайтесь на канал, пишите комментарии, тогда нейросети будут показывать нас вам чаще :)

► Получать обзоры наших проектов и следить за новостями ИНВАПОЛИС и можно также в ТЕЛЕГРАММ или в группе ВКонтакте – подписывайтесь, содержание немного отличается 😊