Найти в Дзене
ОЛИМПСТРОЙСЕРВИС

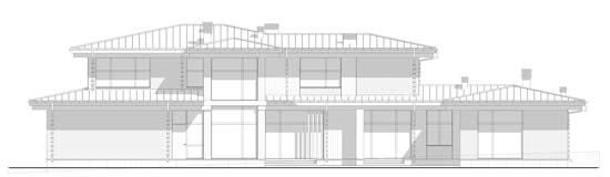
Двухэтажный коттедж в стиле Райта «Редмонд»

Коттедж «Редмонд» — оригинальный и яркий пример дома в стиле Райта, который делает упор на удобстве и комфорте для жизни. Главное преимущество дома — безупречное сочетание с окружающим ландшафтом, что достигается за счет особой архитектуры и внутреннего наполнения. Основные черты коттеджа «Редмонд» — это горизонтальная направленность строения, деление общего объема на секции, панорамное остекление, наличие большой террасы и комбинированный фасад. Комплекс этих черт обеспечивает единение архитектуры с природой, создание впечатления органичности и полной гармонии постройки с окружающей средой. ОСНОВНЫЕ ОСОБЕННОСТИ ПЛАНИРОВКИ ПЕРВОГО ЭТАЖА Как дом в стиле Райта, коттедж «Редмонд» отличается от других домов не только снаружи, но и внутри. Здесь планировка не состоит из «коробок», соединенных длинными темными коридорами. Вместо этого внутри вы можете видеть большие открытые пространства, где несколько комнат или функциональных зон соединены в одну. В доме нет лишних дверей и перегородок, п

Коттедж «Редмонд» — оригинальный и яркий пример дома в стиле Райта, который делает упор на удобстве и комфорте для жизни. Главное преимущество дома — безупречное сочетание с окружающим ландшафтом, что достигается за счет особой архитектуры и внутреннего наполнения.

Основные черты коттеджа «Редмонд» — это горизонтальная направленность строения, деление общего объема на секции, панорамное остекление, наличие большой террасы и комбинированный фасад. Комплекс этих черт обеспечивает единение архитектуры с природой, создание впечатления органичности и полной гармонии постройки с окружающей средой.

ОСНОВНЫЕ ОСОБЕННОСТИ ПЛАНИРОВКИ ПЕРВОГО ЭТАЖА

Как дом в стиле Райта, коттедж «Редмонд» отличается от других домов не только снаружи, но и внутри. Здесь планировка не состоит из «коробок», соединенных длинными темными коридорами. Вместо этого внутри вы можете видеть большие открытые пространства, где несколько комнат или функциональных зон соединены в одну. В доме нет лишних дверей и перегородок, поэтому внутреннее пространство ощущается свободным и просторным.

1). Гараж - 56,15 м²;  2). Котельная - 12,35 м²; 3). Тамбур - 7,24 м²; 4). Прихожая - 9,85 м²; 5). Гардеробная - 10,43 м²; 6). Холл - 36,03 м²; 7). Коридор - 15,35 м²; 8). Санузел - 3,73 м²; 9). Кухонная кладовая - 9,43 м²; 10). Кухня - 28,73 м²; 11). Гостиная - 51,81 м²; 12). Столовая - 34,31 м²; 13). Постирочная - 11,66 м²; 14). Коридор - 14,90 м²; 15). Кабинет - 17,51 м²; 16). Санузел - 3,60 м²; 17). Ванная комната - 4,50 м²; 18). Гостевая спальня - 15,93 м²; 19). Холл - 7,70 м²; 20). Кухня - 10,51 м²; 21). Бильярдная - 52,64 м²; 22). Холл - 3,42 м²; 23). Санузел - 3,24 м²; 24). Комната отдыха - 13,18 м²; 25). Душевая - 5,29 м²; 26). Сауна / Хаммам - 7,48 м²; 27). Терраса - 31,42 м²; 28). Крыльцо №1 - 11,73 м²; 29). Крыльцо №2 - 7,94 м²; 30). Крыльцо №3 - 7,72 м²; 31). Крыльцо №4 - 9,43 м²; 32). Крыльцо №5 - 4,55 м²; 33). Крыльцо №6 - 4,78 м².
1). Гараж - 56,15 м²; 2). Котельная - 12,35 м²; 3). Тамбур - 7,24 м²; 4). Прихожая - 9,85 м²; 5). Гардеробная - 10,43 м²; 6). Холл - 36,03 м²; 7). Коридор - 15,35 м²; 8). Санузел - 3,73 м²; 9). Кухонная кладовая - 9,43 м²; 10). Кухня - 28,73 м²; 11). Гостиная - 51,81 м²; 12). Столовая - 34,31 м²; 13). Постирочная - 11,66 м²; 14). Коридор - 14,90 м²; 15). Кабинет - 17,51 м²; 16). Санузел - 3,60 м²; 17). Ванная комната - 4,50 м²; 18). Гостевая спальня - 15,93 м²; 19). Холл - 7,70 м²; 20). Кухня - 10,51 м²; 21). Бильярдная - 52,64 м²; 22). Холл - 3,42 м²; 23). Санузел - 3,24 м²; 24). Комната отдыха - 13,18 м²; 25). Душевая - 5,29 м²; 26). Сауна / Хаммам - 7,48 м²; 27). Терраса - 31,42 м²; 28). Крыльцо №1 - 11,73 м²; 29). Крыльцо №2 - 7,94 м²; 30). Крыльцо №3 - 7,72 м²; 31). Крыльцо №4 - 9,43 м²; 32). Крыльцо №5 - 4,55 м²; 33). Крыльцо №6 - 4,78 м².

Другое преимущество планировки заключается в четком разделении на зоны. За счет этого значительно увеличивается личный комфорт каждого из жильцов дома. Так, на первом этаже дома «Редмонд» выделяются несколько функциональных зон.

ОБЩАЯ ДНЕВНАЯ ЗОНА ДЛЯ ВСЕХ ЖИЛЬЦОВ

В этот блок включены кухня, гостиная и столовая (при кухне так же есть кладовая, где можно хранить сухие продукты и кухонную утварь). В проекте «Редмонд» эти комнаты представлены как отдельные помещения, но они находятся рядом и оснащены широкими раздвижными прозрачными перегородками, которые делают пространство более свободным.

-4

Эффект открытости планировки усиливают большие панорамные окна, слегка «стирающие» грань между интерьером и окружающей средой, а также просторная терраса, которая обеспечивает плавное «перетекание» жилого пространства во внешнюю среду. Крытая терраса дополнена камином, который в соответствии со стилем Райта часто считается сердцем дома. Именно это место нередко «собирает» вокруг себя всех членов семьи, которые могут провести время друг с другом и поделиться всем, что произошло за день.

ЗОНЫ РАБОТЫ, ОТДЫХА И ПРИЕМА ГОСТЕЙ

Отдельные зоны в коттедже «Редмонд» отведены под место для работы, а также спа и отдыха. Согласно концепции стиля Райта, отдых — это важная часть жизни человека, особенно живущего в современном ритме, который тесно сопряжен со стрессами и усталостью. А чем качественнее отдых, тем продуктивнее работа. В доме «Редмонд» есть все и для того, и для другого.

-5

Рабочая зона представлена уютным и просторным кабинетом с отдельным входом с улицы. Это удобно, если вам нужно принять бизнес-партнеров. Они смогут попасть в кабинет через отдельный вход, поэтому не потревожат и не смутят никого их членов семьи.

-6

Зона для расслабления представлена сразу несколькими помещениями. Это сауна и хаммам с отдельной душевой, комната отдыха и бильярдная. К блоку этих помещений примыкает еще одна кухня, чуть меньшей площади. В ней удобно готовить блюда и закуски при отдыхе в спа — для этого не придется идти в другой конец дома и нести посуду оттуда.

-7

Кроме того, кухня удобно расположена еще и потому, что находится рядом с гостевой спальней, благодаря чему гости смогут при необходимости сами что-то приготовить. Гостевая комната, как и кабинет, имеет отдельный вход через собственное крыльцо. Это особенно удобно, если гости приезжают на длительный срок.

ПЛАНИРОВКА ВТОРОГО ЭТАЖА

1). Лестничных холл - 19,51 м²; 2). Холл - 5,94 м²; 3). Гардеробная - 6,64 м²; 4). Ванная комната - 7,79 м²; 5). Спальня - 21,95 м²; 6). Холл - 6,09 м²; 7). Гардеробная - 6,64 м²; 8). Ванная комната - 7,82 м²; 9). Спальня - 22,14 м²; 10). Холл - 5,37 м²; 11). Гардеробная - 5,72 м²; 12). Ванная комната - 9,83 м²; 13). Спальня - 29,58 м²; 14). Холл - 4,39 м²; 15). Гардеробная - 10,05 м²; 16). Ванная комната - 11,97 м²; 17). Мастер-спальня - 30,34 м²; 18). Балкон - 10,30 м².
1). Лестничных холл - 19,51 м²; 2). Холл - 5,94 м²; 3). Гардеробная - 6,64 м²; 4). Ванная комната - 7,79 м²; 5). Спальня - 21,95 м²; 6). Холл - 6,09 м²; 7). Гардеробная - 6,64 м²; 8). Ванная комната - 7,82 м²; 9). Спальня - 22,14 м²; 10). Холл - 5,37 м²; 11). Гардеробная - 5,72 м²; 12). Ванная комната - 9,83 м²; 13). Спальня - 29,58 м²; 14). Холл - 4,39 м²; 15). Гардеробная - 10,05 м²; 16). Ванная комната - 11,97 м²; 17). Мастер-спальня - 30,34 м²; 18). Балкон - 10,30 м².

Второй этаж коттеджа «Редмонд» соответствует основным принципам планировки частных домов и представляет собой ночную зону, предназначенную исключительно для полноценного отдыха. Здесь организованы 4 уютные и просторные мастер-спальни, каждая из которых дополнена собственной ванной комнатой и санузлом. Одна из мастер-спален, предназначенная для хозяев дома, также оснащена достаточно просторным балконом, где можно приятно проводить время тихими теплыми вечерами.

-9

Как видите коттедж «Редмонд» — это уютный, функциональный и большой дом для семьи из 5-6 человек и более. При необходимости компания «ОлимпСтройСервис» может адаптировать проект под конкретные условия и внести некоторые изменения в планировку. Для этого обратитесь к нам по контактному номеру или отправьте свой вопрос на электронную почту, и менеджер свяжется с вами для обсуждения всех нюансов.

Желаете познакомиться с проектом подробнее?

Планировочные поэтажные решения, подробное описание и полные характеристики проекта «Редмонд» смотрите на сайте: https://olimpstroyservis.ru/proekty-domov/dvukhetazhniy-kottedzh-v-stile-rayta-redmond/

Понравился ли Вам проект? Ставьте палец вверх, пишите свои мысли в комментариях.