Найти в Дзене
ЭТО ВАШ ИНТЕРЬЕР

Девушка очень бюджетно сделала ремонт в своей старой квартире площадью 29 кв. м - за 3 недели. Фото до и после

В данной квартире наша героиня живет со своим молодым человеком. И вот настал момент, когда они захотели видоизменить свою квартиру. На весь ремонт ушло около трёх недель и совсем небольшой бюджет. Проект: Прихожая С самого начала было решено полностью перекрасить все стены. Выбрали для этого приглушенный зеленый цвет. Напольное покрытие было в хорошем состоянии, поэтому его решили оставить. Вешалка для верхней одежды расположилась на противоположной стене от первоначально местоположения. Так же здесь появился комод с декоративными элементами. Санузел Санузел в целом был в хорошем состоянии, поэтому почти вся отделка сохранилась. Но чтобы разбавить интерьер, хозяйка решила поставить за унитаз яркую зеленую дверь, чтобы создать интригу, будто бы там за ней что-то есть. Так же, такой прием визуально увеличивает пространство (нужно поместить большой предмет в маленькое пространство). Кухня Цвет стен здесь точно такой же как и в коридоре. Такой прием объединяет пространство и делает поме
Оглавление

В данной квартире наша героиня живет со своим молодым человеком. И вот настал момент, когда они захотели видоизменить свою квартиру. На весь ремонт ушло около трёх недель и совсем небольшой бюджет.

Проект:

  • Местоположение: г. Москва
  • Площадь квартиры: 29 кв. метра
  • Владелец: молодая девушка с парнем
План расстановки мебели в комнате
План расстановки мебели в комнате

Прихожая

С самого начала было решено полностью перекрасить все стены. Выбрали для этого приглушенный зеленый цвет. Напольное покрытие было в хорошем состоянии, поэтому его решили оставить.

До
До

Вешалка для верхней одежды расположилась на противоположной стене от первоначально местоположения. Так же здесь появился комод с декоративными элементами.

Санузел

До
До

Санузел в целом был в хорошем состоянии, поэтому почти вся отделка сохранилась. Но чтобы разбавить интерьер, хозяйка решила поставить за унитаз яркую зеленую дверь, чтобы создать интригу, будто бы там за ней что-то есть. Так же, такой прием визуально увеличивает пространство (нужно поместить большой предмет в маленькое пространство).

После
После

Кухня

Цвет стен здесь точно такой же как и в коридоре. Такой прием объединяет пространство и делает помещение визуально больше. Справа на стене появилось зеркало, которое прикрывает неудачную мозаику на стене.

Так как кухонный гарнитур был в хорошем состоянии, его тоже решили оставить, чтобы максимально сэкономить. Фартук был заменен на новую яркую плитку.

После
После

Так же микроволновку было решено убрать под столешницу, для того чтобы не загораживать окно и не занимать рабочую поверхность. Холодильник здесь маленький и спрятан за фасадом прямо под индукционной панелью.

-9

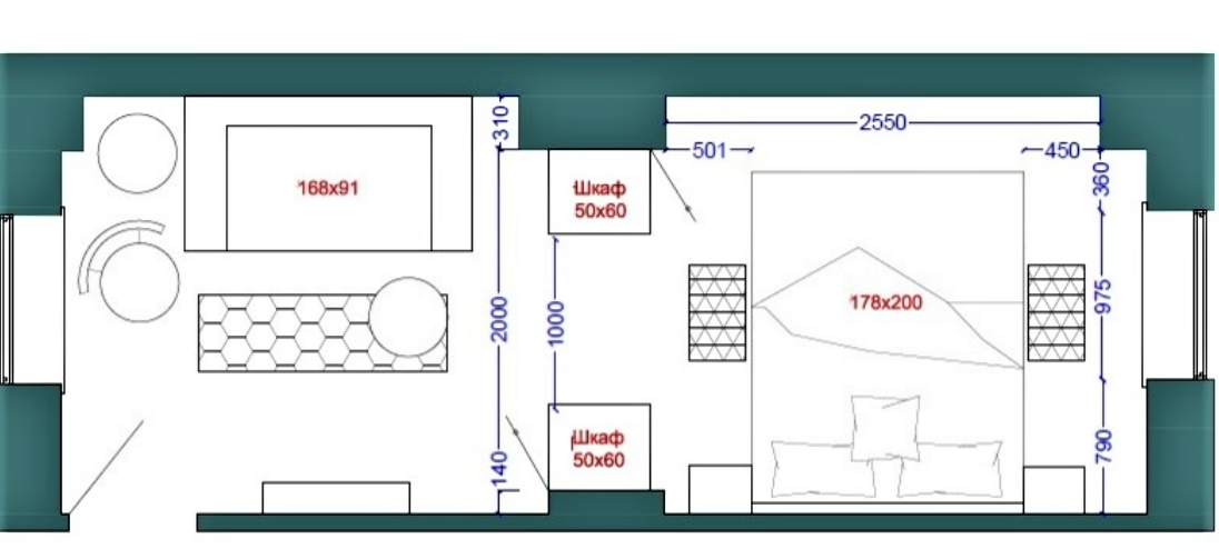
Спальня-гостиная

Данная комната имеет площадь 13,5 метров. Ее было решено поделить на две зоны: первая - это зона гостиной, а вторая зона спальни.

До
До

Стены в гостиной покрасили в бледно-голубой, а вот для спальни выбрали наоборот - более насыщенный голубой оттенок. В зоне гостиной расположился раскладной диван, который при необходимости можно превратить в спальное место. Напротив дивана повесили телевизор и поставили журнальный столик.

Посередине спальни расположилась большая двуспальная кровать с белоснежным изголовьем. Над кроватью появилась абстрактная картина, которая разбавляет пространство.

Если вам понравилась данная статья, то не забудьте поставить лайк и подписаться, чтобы не пропустить новый материал!