Добавить в корзинуПозвонить
Найти в Дзене
Алексей Кармин

Что такое проект каркасного дома? (ч.1)

Всем доброго времени суток! В последующих статьях расскажу о всем что входит в проекты каркасных домов, о том какими разделами может быть наполнен проект. Итак, проект в стандартном его исполнении должен обязательно содержать эскизную часть и конструктивную. Эскизный проект - сегодня об этом... Для многих это, как введение в книгах, или эпилог в повести.. в некотором смысле для проектов эскиз рассматривается аналогично, однако данный этап для проектировщика имеет важные вводные данные, такие как высота этажей в чистовой отделке и в силовом каркасе, выбор вариантов многослойных конструкций - обычно в каркасе из называют пироги (об этом отдельно); выбор варианта устройства кровли, основные габариты дома, ну а самое важное - это планировка этажей с расположением помещений. Именно на данном этапе определяется всё, что в последствии превращается в каркасную конструкцию с учётом всех размеров, определенных на стадии эскизов. Где взять всю эту информацию проектировщику? Перед выполнение

Всем доброго времени суток!

В последующих статьях расскажу о всем что входит в проекты каркасных домов, о том какими разделами может быть наполнен проект.

Итак, проект в стандартном его исполнении должен обязательно содержать эскизную часть и конструктивную.

Эскизный проект - сегодня об этом...

Для многих это, как введение в книгах, или эпилог в повести.. в некотором смысле для проектов эскиз рассматривается аналогично, однако данный этап для проектировщика имеет важные вводные данные, такие как высота этажей в чистовой отделке и в силовом каркасе, выбор вариантов многослойных конструкций - обычно в каркасе из называют пироги (об этом отдельно); выбор варианта устройства кровли, основные габариты дома, ну а самое важное - это планировка этажей с расположением помещений.

Именно на данном этапе определяется всё, что в последствии превращается в каркасную конструкцию с учётом всех размеров, определенных на стадии эскизов. Где взять всю эту информацию проектировщику?

Перед выполнением эскизного проекта заказчик должен заполнить техническое задание (ТЗ), в котором и будут учитываться все параметры, характеристики элементов дома. Я предварительно перед заключением договора направляю ТЗ с образцом заполнения и пояснениями. Но конечно же, не каждому заказчику удается с ходу разобраться во всем, бывает сложно сориентироваться в терминологии, в некоторых параметрах, поэтому помощью я не пренебрегаю. Каждый пункт разбирается при необходимости отдельно, каждое решение обосновывается, и если имеются дорогие/дешёвые или надёжные/слабые варианты конструктива все это вносится в совместное с заказчиком обсуждение.

Кстати, по мере разработки эскизного проекта я запускаю чат со всей семьёй заказчика на удобной всем платформе. Чат состоит из тех кто непосредственно участвует в выборе вариантов, в определении конечного результата..

После того как ТЗ заполнено, проектировщик размещает наружные стены, внутренние стены, цокольное и чердачное перекрытия, возможно 2й этаж, кровлю, в соответствии с параметрами определенные и заказчиком.

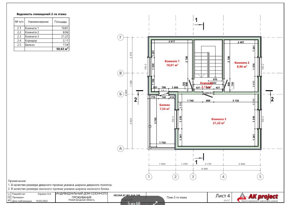
Результатом эскизного проекта станет 3d модель будущего дома. Эту модель можно разрезать вдоль и поперек для того чтобы увидеть как все состоит изнутри (Разрезы), оценить визуально внутренние пропорции дома. Также на плане этажа на котором указано расположение помещений - прихожая, коридоры, кухня, зал, комнаты, котельная, кабинет, санузел и т.д. - указываются их площади, размеры с привязками к окнам, дверям, проемам. Данные габариты необходимы также для оценки пропорций, визуализации расстановки мебели.

В моих проектах имеются разрезы дома в 3d формате - данные листы показывают устройство пирогов ограждающих конструкций, внутренних стен, перекрытий, кровли. То есть из каких слоев состоит каждая конструкция. О пирогах многослойных конструкций расскажу в отдельной статье.

По мере разработки эскизного проекта заказчик может внести некоторые изменения, либо проектировщик может сделать уточнения о конструкции того или иного элемента. Например, свесы кровли подшиваться могут параллельно кровле или параллельно земле, длинные или короткие. И конечно же в дальнейшем это все влияет на конструкцию каркаса. Некоторые изменения в эскизе, могут очень сильно повлиять на конструктивную часть элемента - того же свеса, при увеличении длины которого, возможно понадобится сращивание двух стропил по длине, или изменение сечения консольных балок, которые несут на себе фронтонные стропила тех самых свесов. Соответственно, на этапе эскиза все спорные, не уточнённые параметры - должны быть уточнены, определены.

Эскизный проект утверждается заказчиком и в дальнейшем в него не вносится никаких изменений! Проект передается для дальнейшей работы - создания модели каркаса для конструктивного раздела.

Это важно! Изменения, которые повлияют на конструктив, в результате чего необходимо исправлять каркас производятся за отдельную плату, в зависимости от времени исправлений.

В следующей статье ознакомимся с конструктивным разделом.