Добавить в корзинуПозвонить
Найти в Дзене

Планировочное решение: квартира 73 кв.м с большой террасой для занятий йогой

Давно собиралась показать вам эту планировку очень интересной квартиры в замечательном месте в Подмосковье. Часть окон выходит на лес, только представьте, как там хорошо! Итак, изначально это: Квартира, 1 этаж с большой террасой, электричество. Для семьи из 4 человек: родители и две дочки дошкольного и школьного возраста. Нужно было сделать детскую для девочек, кухню-гостиную, спальню, СУ с постирочной зоной и ванную с выходом из спальни. Это кстати первый наш объект, где не нужен был ТВ, вместо этого мы искали место под пианино и место для занятия йогой даже дома, когда на улице погода не очень. Было еще несколько очень особенных пожеланий от заказчиков, но о них не буду упоминать, скажу только, что это в значительной мере повлияло на формирование систем хранения и расстановку мебели. В этой квартире мы обошлись без больших перепланировок, так как заказчики изначально очень хорошо оценили свои потребности и приобрели квартиру, которая максимально эти потребности закрывает. Мы лишь чу
Оглавление

Давно собиралась показать вам эту планировку очень интересной квартиры в замечательном месте в Подмосковье. Часть окон выходит на лес, только представьте, как там хорошо!

Итак, изначально это:

Квартира, 1 этаж с большой террасой, электричество.

Для семьи из 4 человек: родители и две дочки дошкольного и школьного возраста.

Нужно было сделать детскую для девочек, кухню-гостиную, спальню, СУ с постирочной зоной и ванную с выходом из спальни. Это кстати первый наш объект, где не нужен был ТВ, вместо этого мы искали место под пианино и место для занятия йогой даже дома, когда на улице погода не очень. Было еще несколько очень особенных пожеланий от заказчиков, но о них не буду упоминать, скажу только, что это в значительной мере повлияло на формирование систем хранения и расстановку мебели.

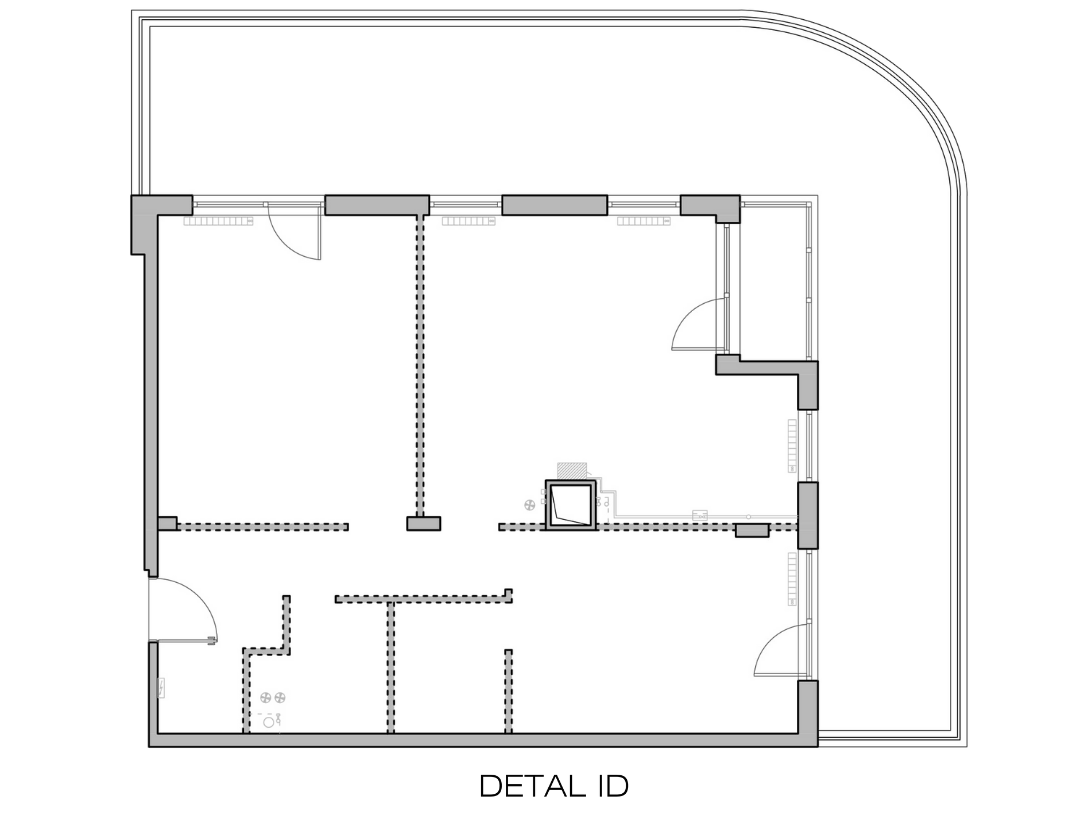
Так выглядела исходная планировка в 73 кв.м + большая терраса.
Так выглядела исходная планировка в 73 кв.м + большая терраса.

В этой квартире мы обошлись без больших перепланировок, так как заказчики изначально очень хорошо оценили свои потребности и приобрели квартиру, которая максимально эти потребности закрывает. Мы лишь чуть-чуть поправили планировку в сторону удобства. И так как границы стен сильно не менялись, то на этом примере можно хорошо понять значение расстановки мебели.

Вариант 1

-2

В первую очередь мы избавились от совершенно ненужной тут лоджии, расширив площадь кухни-гостиной. Заказчики не просили душевую, но в этом варианте мы все-таки предложили сделать ее в СУ, т.к. для 4 человек одной ванной комнаты может быть маловато. Увеличили кол-во систем хранения в прихожей за счет детской.

Девчонкам выделили игровую часть террасы ограждением с калиткой, ведущей в основную часть. В ней расположили стол с зоной барбекю, кресла-качалки, оставили большой участок для занятий йогой и поставили уютный диванчик при выходе из спальни, где утром можно попить кофе и насладиться пением лесных птиц.

Вариант 2

-3

В этом случае СУ уже без душевой, но с большой системой хранения под хоз. нужды. Вход в ванную сделали из коридора. Усложнили системы хранения в спальне и поменяли конфигурацию кухни и столовой зоны.

Вариант 3

-4

Тут также поменялась расстановка мебели в разных комнатах. За счет изменения формы ванной и СУ, смогли выкроить место под небольшую гардеробную из спальни.

Вариант 4

-5

Мы предложили еще один вариант конфигурации СУ и ванной, мебели в кухне и изменили системы хранения в спальне.

В общем, смотреть нужно на каждый шкафчик, на каждую нишу, на расположение каждого предмета мебели и даже размещения вещей внутри этой мебели в каждом из вариантов. Ведь в планировках не бывает мелочей!

Хотите, чтобы мы и вашу квартиру/дом превратили в комфортное и функциональное пространство? Тогда просто напишите нам на info@studiodetalid.ru с пометкой "Планировочное решение"

А посмотреть и другие наши планировке можно тут:

Планировочное решение: как выжать максимум из квартиры 78,5 кв.м.
Планировочное решение: загородный домик с баней
Планировочное решение: как объединили двушку и трешку