Найти в Дзене

Почему планировка это самое важное в проекте?

Поговорим немного о планировочках, м? Планировка это скелет проекта, на котором потом вырастает все остальное: организация освещения, выключатели на маршрутах следования домочадцев, розетки там, где они понадобятся. На неё же нанизывается весь последующий декор и интерьерные акценты.  Предлагаю разобрать реальный пример.  Дано: апартаменты площадью 73 м2 с большой общей зоной 39 м2 (помещение 01), большим с/у 6 м2 (помещение 02) и двумя спальнями. Вообще планировка очень даже ничего, за исключением одного НО. Запрос заказчика - организовать три изолированные спальни, так как в апартаментах будет проживать семья с двумя разнополыми детьми, и два санузла. Возможно ли это? Давайте разбираться.   ВАРИАНТ 1 Предложенная планировка формально отвечает всем требованиям заказчика.  Из плюсов:  Минусы: ВАРИАНТ 2 Этот вариант, конечно, намного более эффективен.  Плюсы: Из минусов можно отметить лишь отсутствие второго душа, но, как известно, в жизни все идеально не бывает.  А вы за как

Поговорим немного о планировочках, м? Планировка это скелет проекта, на котором потом вырастает все остальное: организация освещения, выключатели на маршрутах следования домочадцев, розетки там, где они понадобятся. На неё же нанизывается весь последующий декор и интерьерные акценты. 

Предлагаю разобрать реальный пример. 

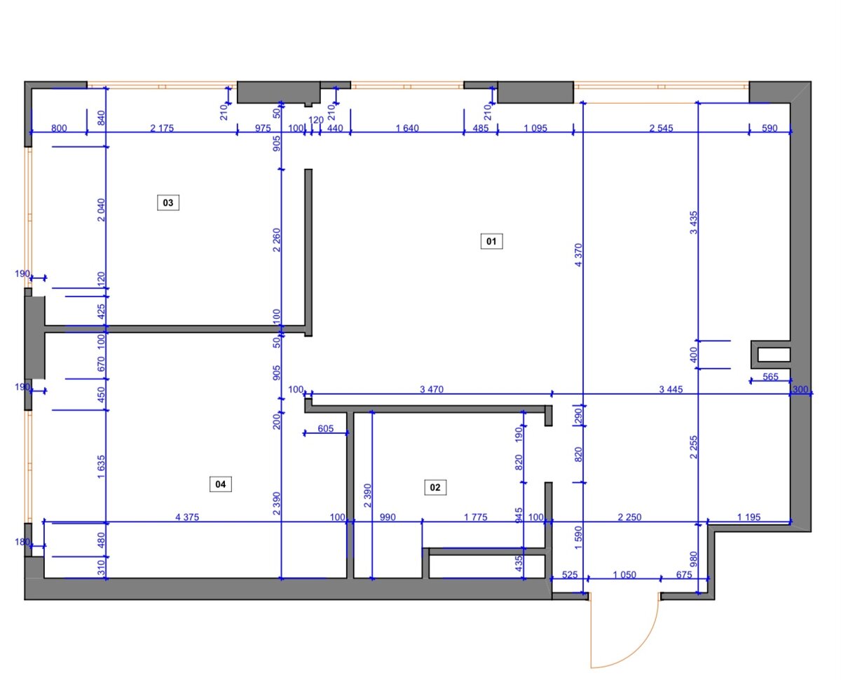
Дано: апартаменты площадью 73 м2 с большой общей зоной 39 м2 (помещение 01), большим с/у 6 м2 (помещение 02) и двумя спальнями. Вообще планировка очень даже ничего, за исключением одного НО. Запрос заказчика - организовать три изолированные спальни, так как в апартаментах будет проживать семья с двумя разнополыми детьми, и два санузла. Возможно ли это? Давайте разбираться.  

ВАРИАНТ 1

-2

Предложенная планировка формально отвечает всем требованиям заказчика. 

Из плюсов: 

  • оба санузла либо с душем, либо с ванной
  • Отдельная гардеробная в спальне

Минусы:

  • гардеробная на входе объединена с постирочной, что не очень функционально
  • Очень маленькая общая зона квартиры, всего каких-то 15 м2
  • Огромные потери площади за счёт коридора (8 м2!)

ВАРИАНТ 2

-3

Этот вариант, конечно, намного более эффективен. 

Плюсы:

  • никаких потерь площади, общая зона находится в центре квартиры, от неё двери ведут непосредственно в спальни 
  • Большая прихожая с отдельной постирочной (она же хозяйственная комната)
  • Шкаф для верхней одежды и стиральная машинка функционально разнесены
  • Кухня в данном варианте на 35 см длиннее, это означает больше места для хранения в верхних и нижних шкафах
  • Поместился большой стол, за которым спокойно усядутся 8, а при необходимости и 10 человек
  • Прекрасно встал большой угловой диван
  • Меньше перегородок = меньше потерь полезной площади 

Из минусов можно отметить лишь отсутствие второго душа, но, как известно, в жизни все идеально не бывает. 

А вы за какой вариант??