Найти в Дзене
Дизайн Малина

Интерьер по Фэншуй может изменить судьбу! Как выявить и устранить негативные узлы и усилить позитивные?

Что такое Фэншуй? Фэншуй - наука об энергетическом воздействии архитектуры и космоса на человека, на его здоровье, богатство и успех. И дело тут не в атрибутах, лягушках и статуэтках, а в реальном расположении Вас (человека) в пространстве. Фэншуй - это не восточная атрибутика, это глубокое знание, полученное за 2 тысячи лет наблюдения и анализа жизни людей в зависимости от того, как устроен их дом. То, как Вы спите в пространстве, в каком положении, относительно энергий, Вы работаете за рабочим столом, как у Вас расположена варочная поверхность - основной очаг огня в доме, насколько правильно поступает энергия через входную дверь, во многом, а точнее на 30%, как говорят специалисты Фэншуй, зависит Ваше благополучие. Существует понятие Инь и Ян, в объяснениях, думаю, не нуждается. Так вот, согласно Фэншуй, в доме энергия делится на две части по оси, пересекающей входную дверь пополам. Поскольку мы всегда ходим через дверь, то она является основным поставщиком энергии в дом. А внутри
Оглавление

Что такое Фэншуй?

Фэншуй - наука об энергетическом воздействии архитектуры и космоса на человека, на его здоровье, богатство и успех. И дело тут не в атрибутах, лягушках и статуэтках, а в реальном расположении Вас (человека) в пространстве.

Фэншуй - это не восточная атрибутика, это глубокое знание, полученное за 2 тысячи лет наблюдения и анализа жизни людей в зависимости от того, как устроен их дом.

Интерьер Jan Showers
Интерьер Jan Showers

То, как Вы спите в пространстве, в каком положении, относительно энергий, Вы работаете за рабочим столом, как у Вас расположена варочная поверхность - основной очаг огня в доме, насколько правильно поступает энергия через входную дверь, во многом, а точнее на 30%, как говорят специалисты Фэншуй, зависит Ваше благополучие.

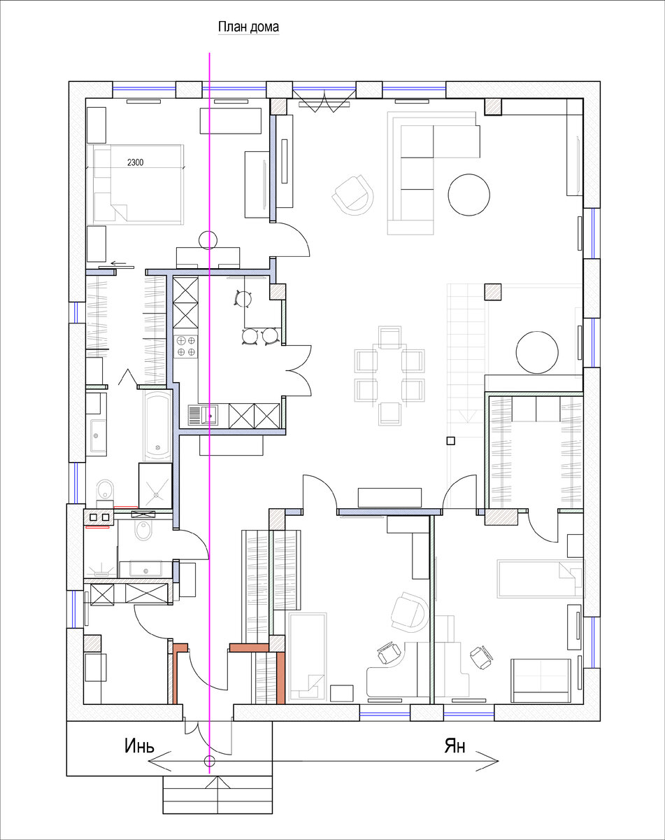
Существует понятие Инь и Ян, в объяснениях, думаю, не нуждается. Так вот, согласно Фэншуй, в доме энергия делится на две части по оси, пересекающей входную дверь пополам. Поскольку мы всегда ходим через дверь, то она является основным поставщиком энергии в дом. А внутри дома, согласно Фэншуй, разделяется на две части. Инь-Ян. Энергия Ян находится по левую руку от Вас, если Вы стоите спиной к входной двери снаружи.

Пример дома с перевесом энергии Ян. Стоя спиной ко входу, часть квартиры по левую руку - это Ян (мужская), по правую руку - Инь (женская).

проект автора
проект автора

На протяжении всей своей дизайнерской практики, считала, что интуитивное проектирование, как и всё, что происходит по интуиции, не нуждается в корректировке. И, в действительности, на 80% это так. Но, когда я начала анализировать все свои квартиры, а их оказалось несколько, начиная с родительского дома, увидела одни и те же закономерности, которые абсолютно соответствуют постулатам Фэншуй.

Энергия совершает круговорот, который хорошо демонстрирует схема У-Син.
Яндекс картинки
Яндекс картинки

По часовой стрелке – цикл созидания (усиления). Против часовой – цикл истощения (смягчения) Пересечение через центр от противоположных стихий – цикл уничтожения.

Чтобы понять, как распределяется энергия в доме, Фэншуй предлагает метод, в котором на план квартиры накладывается Квадрату Ло Шу. В этом квадрате каждому сектору соответствует своя стихия: зелёный - дерево; красный - огонь; коричневый - земля; серый - металл; голубой - вода и, центр - "сердце" квартиры.

Схема секторов.
Схема секторов.

Квадрату Ло Шу нужно нанести на план квартиры, разделив её на равные 3 части по двум сторонам. Важно определить:

1. Все ли сектора присутствуют в квартире

2. Какие сектора соответствуют тем или иным помещениям.

Прежде, необходимо выполнить замеры сторон света.

проект автора
проект автора

Второй пример, в котором есть отсутствующие сектора и центр попадает в комнату.

проект автора
проект автора

Негативные воздействия из-за недостаточного количества нужной энергии в доме или её излишка.

1. Трудности с деньгами

2. Одиночество, сложность привлечь в свою жизнь отношения или супружество

3. Зачатие ребёнка

4. Здоровье различных органов или систем

5. В целом неблагоприятная среда в доме

Что можно изменить в своей жизни с помощью организации пространства по рекомендациям Фэншуй:

1. Уравновесить женскую и мужскую энергии в доме, а следовательно улучшить отношения.

2. Привлечь в дом нужную позитивную энергию для тех членов семьи, которым она не была доступна из-за блокировки, таким образом улучшить их состояние и здоровье.

3. Привлечь отношения, усилив энергию романтики, любви, женственности или мужественности.

4. увеличить доход и облегчить его, либо усилить творческую энергию.

5. Гармонизировать отношения в семье.

6. Разблокировать заторы, в которых тратится положительная энергия.

7. Ослабить воздействие негативной энергии.

8. Повысить вероятность зачатия ребёнка.

Есть таблица соответствия секторов членам семьи, по которой можно сделать первичное исследование вашего жилья. Ведь вы как никто знаете себя и ваших близких.

таблица влияния сектора на члена семьи.
таблица влияния сектора на члена семьи.

Основное правило гласит: присутствие всех секторов - это уже большой плюс.

Но, даже если сектор совсем отсутствует, то существуют способы корректировки влияния основных элементов в доме на человека.

Основные элементы - это, во-первых расположение входной двери, во-вторых, расположение очага (плиты), в третьих - расположение рабочего стола и, в четвёртых - кровати.

Разобраться самостоятельно в науке Фэншуй можно, но придётся изучить много материалов и обучиться у нескольких мастеров. Поэтому лучше обратиться к специалисту.

Гостиная с семейным очагом. Яндекс картинки.
Гостиная с семейным очагом. Яндекс картинки.

Есть несколько золотых правил, которые помогут установить баланс в доме. Вот эти правила:

  • Выбирать жильё, в котором энергии Инь и Ян будут более менее уравновешены. То есть вход ближе к середине.
  • План квартиры должен быть как можно ближе к прямоугольнику или квадрату, без пустых углов. П-образный или Г-образный план гарантирует отсутствие какого - то сектора.
  • Не стоит выбирать место для кухни или плиты на Северо-Западе. И уж точно не ставить плиту на СЗ СЗ-ной кухни.
  • Центр квартиры лучше оставлять пустым
  • Но, даже если, ваша ситуация имеет все возможные недостатки, у специалистов Фэншуй находятся варианты корректировки.

Благодарю, что прочитали материал!

Пишите в комментариях, заинтересовала ли вас эта информация!