Добавить в корзину
Позвонить
Найти в Дзене
Войти
СК ПРОФСТРОЙ
1 подписчик
Подписаться
Ремонт 3-комн. квартиры в МО
22 марта 2022
22 мар 2022
1
~1 мин
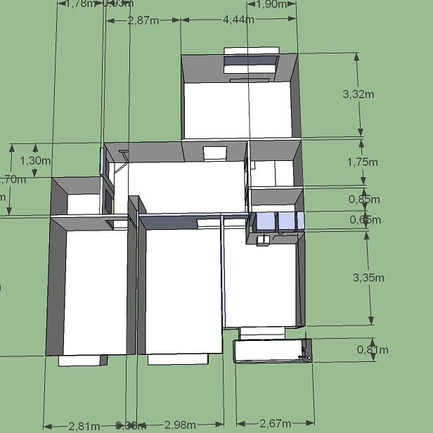
Ремонт в новостройке в Московской области
Ремонт в новостройке в Московской области
...
Читать далее
Ремонт в новостройке в Московской области
788354019.1012.1777962772145.35504