Найти в Дзене
Дом для семьи_Family House

Как привязать дом к участку?

В этой статье мы расскажем, как привязать дом к участку, разметим котлован и определим уклон.
Перед разметкой участка важно его подготовить. Трава в этом году выросла по пояс, поэтому пришлось её покосить. Мы пользуемся бензиновым триммером Макита с 4-х тактным двигателем. Очень удобный инструмент, работает тихо, рекомендуем! При оформлении документов на землю, кадастровые инженеры забили колышки по границе участка. Мы натянули по ним верёвки, чтобы обозначить габариты участка относительно которых определили место под дом. Как вы помните, ранее мы уже сделали это на компьютере.
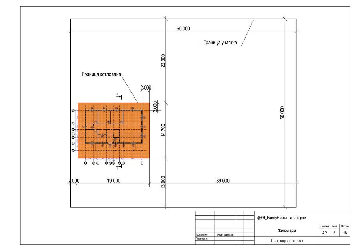
При разметке котлована, отступаем по 2 метра в каждую сторону от дома, чтобы было удобно делать дренаж и ливневку. План привязки дома к участку мы подготовили заранее на компьютере, вот он: Для привязки используем рулетку длиной 30м, лазерный нивелир с приемником Firecore, колышки и топор.
Рулеткой отмеряем проектное расстояние от веревки по границе участка, нивелиром делаем угол 90 градусов, топором забив

В этой статье мы расскажем, как привязать дом к участку, разметим котлован и определим уклон.

Перед разметкой участка важно его подготовить. Трава в этом году выросла по пояс, поэтому пришлось её покосить. Мы пользуемся бензиновым триммером Макита с 4-х тактным двигателем. Очень удобный инструмент, работает тихо, рекомендуем!

Привязка дома к участку
Привязка дома к участку

При оформлении документов на землю, кадастровые инженеры забили колышки по границе участка. Мы натянули по ним верёвки, чтобы обозначить габариты участка относительно которых определили место под дом. Как вы помните, ранее мы уже сделали это на компьютере.

При разметке котлована, отступаем по 2 метра в каждую сторону от дома, чтобы было удобно делать дренаж и ливневку. План привязки дома к участку мы подготовили заранее на компьютере, вот он:

План привязка дома к участку
План привязка дома к участку

Для привязки используем рулетку длиной 30м, лазерный нивелир с приемником Firecore, колышки и топор.

Рулеткой отмеряем проектное расстояние от веревки по границе участка, нивелиром делаем угол 90 градусов, топором забиваем колышки. Проверяем диагонали котлована, чтобы они были одинаковые.

Привязка дома к участку
Привязка дома к участку

Вторым шагом в четырех углах измеряем высотные отметки на участке, чтобы определить размер и направление уклона. В работе используем нивелир, приемник и измерительную линейку.

В итоге получаем довольно большой перепад около 800-900мм и усложнение нашей задачи тем, что уклон проходит по диагонали котлована.

Лазерный нивелир в помощь!
Лазерный нивелир в помощь!

Следующий пост будет про начало земельных работ и раскопку котлована гусеничным экскаватором. Ура! Движуха начинается!!! Оставайтесь на связи, впереди много интересного!

Пишите в комментариях нужно ли вам более подробно расписать инструменты, которые мы используем? Если да, сделаем отдельно обзор по инструментам на каждом этапе строительства!