Добавить в корзинуПозвонить
Найти в Дзене
2 Архитектора из г.Н.

Пост любви к нашему дому и про 4 наши ошибки при стройке.

Наш милый,милый дом.Я очень по тебе скучаю.Как по человеку,которого больше нет в моей жизни.Но ты прочно останешься в моей памяти.Потому что в нем прошло самое начало нашей семейной жизни и пронеслось удивительное время ожидания и взросления наших детей.Это бесценно.Ты научил нас быть добрее, мудрее, лучше, терпеливее и научил всегда верить в лучшее, даже когда посреди лета в колодце закончилась вода.Спасибо за все,наш первый, любимый дом. Ну как фотоистория?Огонь,правда?Душевненько и ошибок не видно,ни одной. Но я поделюсь с вами нашими личными "граблями"))Ведь для этого мы здесь? 1.Самое главное с чем мы промахнулись, так это с размером дома для нашей семьи.Теперь спустя время, мы называем эту болезнь "гигантомизм" и пытаемся всех своих Заказчиков от этой болезни вылечить до начала проектирования.Семье из 4 человек более чем достаточно до 100 кв.м. всей площади дома.Наш дом был 150 кв.м.Из них мне все 100кв.м. показались лишними.Очень много времени в деревне вы проводите на у
Наш первый, наш любимый дом.Навсегда.
Наш первый, наш любимый дом.Навсегда.

Наш милый,милый дом.Я очень по тебе скучаю.Как по человеку,которого больше нет в моей жизни.Но ты прочно останешься в моей памяти.Потому что в нем прошло самое начало нашей семейной жизни и пронеслось удивительное время ожидания и взросления наших детей.Это бесценно.Ты научил нас быть добрее, мудрее, лучше, терпеливее и научил всегда верить в лучшее, даже когда посреди лета в колодце закончилась вода.Спасибо за все,наш первый, любимый дом.

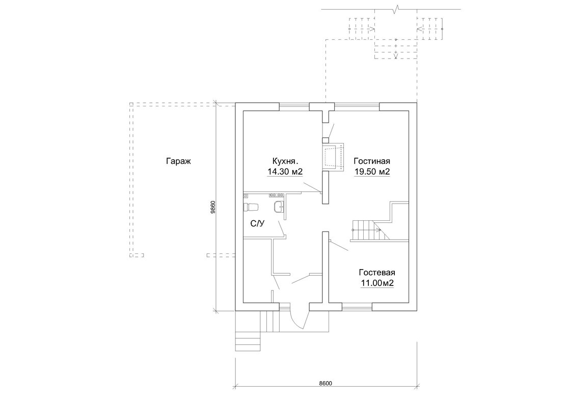
План 1 этажа
План 1 этажа
План 2 этажа
План 2 этажа

Фундамент и цоколь.
Фундамент и цоколь.
Архитектор, который понял во что ввязался,но уже поздно)
Архитектор, который понял во что ввязался,но уже поздно)

Еще только первый этаж.И еще не красочно вовсе.
Еще только первый этаж.И еще не красочно вовсе.
Но все увереннее мы продвигались вперед
Но все увереннее мы продвигались вперед
Оштукатуривание дома и благоустройство участка
Оштукатуривание дома и благоустройство участка
Утепление дома закончено.Фасадный пенополистирол на 150 мм
Утепление дома закончено.Фасадный пенополистирол на 150 мм

Благоустройство заднего дворика.
Благоустройство заднего дворика.

Задний английский дворик)
Задний английский дворик)
Зона отдыха)
Зона отдыха)
Передновогоднее
Передновогоднее
2 архитектора,сестра и самодельная кухня
2 архитектора,сестра и самодельная кухня

Самодельная кухня.Ну ладно фасады заказали,остальное честно самодельное.
Самодельная кухня.Ну ладно фасады заказали,остальное честно самодельное.
Игровая детская комната
Игровая детская комната
Папа Миша, помогает крыть крышу)
Папа Миша, помогает крыть крышу)
На детской площадке.
На детской площадке.
Такой май...
Такой май...
Сходка на детской площадке.
Сходка на детской площадке.
Когда лениво гулять по деревне пешком)
Когда лениво гулять по деревне пешком)

Ну как фотоистория?Огонь,правда?Душевненько и ошибок не видно,ни одной.

Но я поделюсь с вами нашими личными "граблями"))Ведь для этого мы здесь?

1.Самое главное с чем мы промахнулись, так это с размером дома для нашей семьи.Теперь спустя время, мы называем эту болезнь "гигантомизм" и пытаемся всех своих Заказчиков от этой болезни вылечить до начала проектирования.Семье из 4 человек более чем достаточно до 100 кв.м. всей площади дома.Наш дом был 150 кв.м.Из них мне все 100кв.м. показались лишними.Очень много времени в деревне вы проводите на улице.В нашей семье наши дети оказались такими компанейскими,что жили и играли постоянно со мной на кухне)И передвигались за мной куда бы я не дислоцировалась.Вообщем до этого наш дом был почти 9х9 и 2 этажа, а теперь мы строим 4.7х9 и в 1 этаж)С годами и опытом помудрели.Потому что мало вложится и построить дом,его необходимо еще и содержать.Если отапливать такой дом электричеством, то выйдет где-то 15т.р., а может уже и больше.

2.Подвал.Подвал товарищи-это провал.Это то,что не исправишь.Подвал с вами навсегда.На подвал нас тогда уговорил дед, говорил, картошку хранить там будете.Не учли одного.Чтобы хранить картошку, надо прохладный подвал.А если прохладный подвал, то холодные полы на 1 этаже.И если кто-то скажет тапочки вам в помощь, то как не замерзнуть на полу ползающим детям?Итого подвал стал теплыми хранить в нем получилось только зимнюю резину)А содержать надо было всю жизнь.

3.Были молоды, наивны,слушали менеджеров, обещавших,что вот построите дом на 375 мм газобетонный и будете жить,это инновационный материал, теплый и прочее.Вранье!В первую же зиму пришлось замораживать дом и сматываться зимовать к родителям (благо нас ждали).И уже летом, мы посчитали точку росы и выяснили,что утепляться фасадным пенополистиролом надо на 150 мм, закупили материал и утеплились.Далее штукатурка короед по технологии Церезит.Например, по этой технологии уже давно стоит Береста Палас в Новгороде и ее отделку никогда не ремонтировали.

4. Теплые полы.Сначала решили ,что это баловство, но потом опытным путем выяснили отсутствие комфорта.Пришлось изобретать велосипед.И тратить много денег.Теплый пол все-таки сделали.