Добавить в корзинуПозвонить
Найти в Дзене
Mebel.ru

Французский минимализм: преображение студии 13 квадратных метров

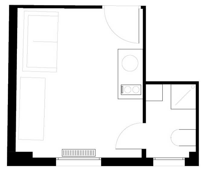
Представляем вашему вниманию проект французских архитекторов Сабин Фремио и Лео Берастеги. Их заказчики приобрели крохотную студию в Париже, недалеко от площади Гамбетта. Квартира состояла из комнаты и санузла. Главным преимуществом было наличие двух окон (одно из них — в санузле). Архитекторы использовали эту особенность и создали очень светлый минималистичный интерьер. Перед вами первоначальная планировка: два прямоугольных помещения, кухонный гарнитур расположен рядом с входной дверью. А это планировка, которая получилась после ремонта. Площадь санузла уменьшили, срезав его под углом. Освободившееся треугольное пространство использовали для размещения кухни. Благодаря этому в гостиной появилось второе окно. Помещение стало светлее и просторнее. Ниже вид на квартиру, который открывается от входной двери. Посмотрим поближе на интерьер студии и разберем хитрости, которые использовали дизайнеры. Так выглядели кухня и дверь в санузел до ремонта. А так — после. На кухне установили мебель,

Представляем вашему вниманию проект французских архитекторов Сабин Фремио и Лео Берастеги. Их заказчики приобрели крохотную студию в Париже, недалеко от площади Гамбетта. Квартира состояла из комнаты и санузла. Главным преимуществом было наличие двух окон (одно из них — в санузле). Архитекторы использовали эту особенность и создали очень светлый минималистичный интерьер.

Перед вами первоначальная планировка: два прямоугольных помещения, кухонный гарнитур расположен рядом с входной дверью.

-2

А это планировка, которая получилась после ремонта. Площадь санузла уменьшили, срезав его под углом. Освободившееся треугольное пространство использовали для размещения кухни. Благодаря этому в гостиной появилось второе окно. Помещение стало светлее и просторнее.

-3

Ниже вид на квартиру, который открывается от входной двери.

-4

Посмотрим поближе на интерьер студии и разберем хитрости, которые использовали дизайнеры.

Так выглядели кухня и дверь в санузел до ремонта.

-5

А так — после. На кухне установили мебель, сделанную на заказ по индивидуальному проекту и покрашенную водостойкой краской. Под фасадами спрятали маленький встроенный холодильник и шкаф для хранения посуды.

-6
-7

Для того, чтобы визуально расширить пространство, архитекторы установили на стене, скрывающей санузел и душевую кабину, бесшовное зеркало. Получается интересный эффект: кажется, что в квартире есть еще одна комната, а дверь просто парит в воздухе.

-8

Пол и стены санузла отделали одинаковой плиткой (чтобы помещение казалось больше), в одну из стен также установили зеркало.

-9

К оформлению пространства гостиной подошли творчески. Ниже фото стены и входной двери до ремонта.

-10

Теперь она выглядит так. Благодаря тому, что кухню перенесли в другое место, комната стала просторнее. Но здесь тоже не обошлось без оптимизации пространства.

-11

Нужно было обустроить спальное место. Самым очевидным решением был раскладной диван. Но архитекторы хотели придумать что-то более эргономичное. В результате они спроектировали откидную кровать глубиной всего 42 сантиметра. Она компактно складывается вместе с одеялом и подушками (убирать их не нужно). Дополнительно конструкция оснащена ящиками для хранения вещей. Этого достаточно для одного-двух жильцов.

-12

По словам архитекторов, работать с маленькими интерьерами сложно и интересно одновременно. Хочется найти баланс между функциональностью и экономией пространства.

Как вам такой проект? Есть ли в нем все самое необходимое или чего-то не хватает?

Подписывайтесь на наш канал, ежедневно мы публикуем оригинальные дизайнерские проекты и красивые подборки.

-13

Советы по обустройству квартир в любом стиле, рекомендации по выбору мебели и многое другое — на нашем сайте и в Пинтерест.