Найти в Дзене

Дом 66 м2 с двумя спальнями

Часто поступает запрос: "Нужен компактный дом с 2-я спальнями". И такой запрос поступил от нашего заказчика. По итогу проработки получилась такая планировка: При входе нам открывается холл, из которого мы можем попасть в кухню-гостинную, две спальни и с/у. Общая площадь дома 66 м2, не включая террасу 24,6 м2. Отделка дома проста и лаконичная, эта штукатурка с обращении окон и углов деревом. Данный дом был разработан под монтаж из соломенных панелей GreenCube. Сейчас на производстве идет производство панелей Если впервые слышите о такой технологии то рекомендую просмотреть вот это видео. Больше наших проектов можно посмотреть тут. Ну а если есть вопросы звоните по телефону +7 927 03 003 76 Спасибо, что ставите лайк и пишите комментарий!

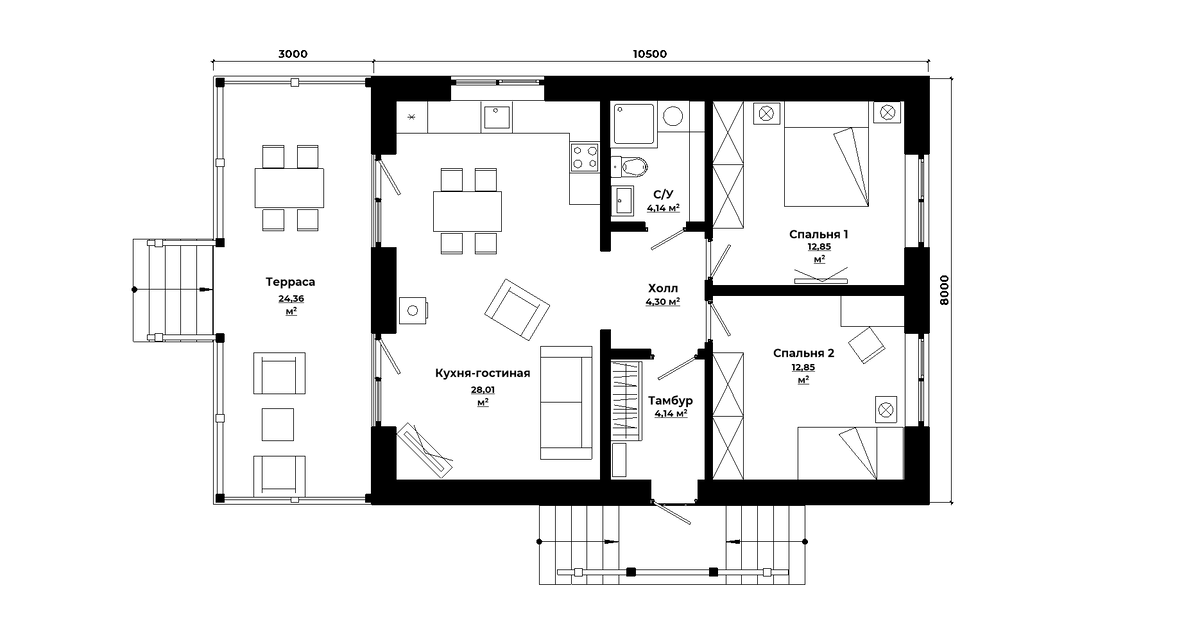
Часто поступает запрос: "Нужен компактный дом с 2-я спальнями". И такой запрос поступил от нашего заказчика. По итогу проработки получилась такая планировка:

Планировка дома
Планировка дома

При входе нам открывается холл, из которого мы можем попасть в кухню-гостинную, две спальни и с/у.

Общая площадь дома 66 м2, не включая террасу 24,6 м2.

Отделка дома проста и лаконичная, эта штукатурка с обращении окон и углов деревом.

Вид дома со стороны улицы
Вид дома со стороны улицы
Вид дома со стороны участка
Вид дома со стороны участка
Вид дома со стороны участка
Вид дома со стороны участка

Данный дом был разработан под монтаж из соломенных панелей GreenCube. Сейчас на производстве идет производство панелей

Если впервые слышите о такой технологии то рекомендую просмотреть вот это видео.

Больше наших проектов можно посмотреть тут. Ну а если есть вопросы звоните по телефону +7 927 03 003 76

Спасибо, что ставите лайк и пишите комментарий!