Найти в Дзене

Обзор ЖК "Балтийский": мнение эксперта

О проекте ЖК Балтийский - это проект специализированного застройщика «Горизонт». ЖК состоит из одного 7 этажного кирпичного дома дома, расположенного по адресу г. Ярославль, ул. 6-я Железнодорожная 11. В доме 2 подъезда, 70 квартир, первый этаж отведен под площади коммерческого назначения. Планировки 1-комнатные квартиры представлены площадью от 35,39 м² до 50,48 м². Это обычные «однушки» и «однушки» немного большего размера. Площадь кухни от 12,7 м² до 14.26 м². 2-комнатные квартиры представлены площадью от 49,04 м² до 66,18 м². Площадь кухни от 10 м² до 17 м². 3-комнатные квартиры представлены площадью от 73,26 м² до 94,54 м². Площадь кухни от 12,18 м² до 18,9 м². Цены (на начало марта 2022) 💰 1-комнатная квартира, площадь — 39,31 м², стоимость — 3 300 000₽ (83,9 тысяч ₽ за м²). 💰 2-комнатных квартир в продаже нет 💰 3-комнатная квартира, площадь от 73,26 м², стоимость — 5 089 940₽ (69,47 тысяч ₽ за м²). Квартиры сдаются без отделки, по желанию,покупатель сможет приобрести кварти
Оглавление

О проекте

ЖК Балтийский - это проект специализированного застройщика «Горизонт».

ЖК состоит из одного 7 этажного кирпичного дома дома, расположенного по адресу г. Ярославль, ул. 6-я Железнодорожная 11.

В доме 2 подъезда, 70 квартир, первый этаж отведен под площади коммерческого назначения.

Планировки

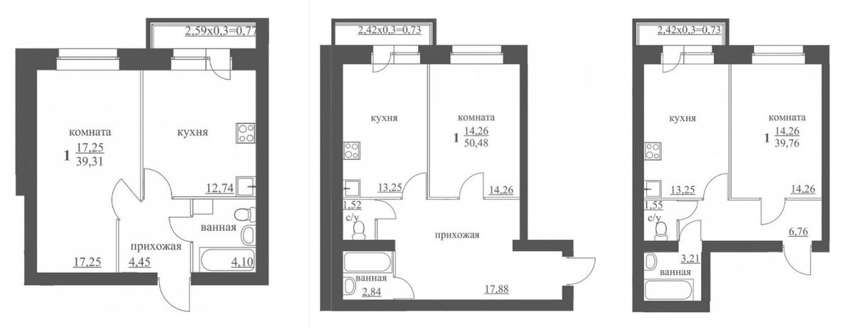
1-комнатные квартиры представлены площадью от 35,39 м² до 50,48 м². Это обычные «однушки» и «однушки» немного большего размера. Площадь кухни от 12,7 м² до 14.26 м².

Планировки 1-комнатных квартир
Планировки 1-комнатных квартир

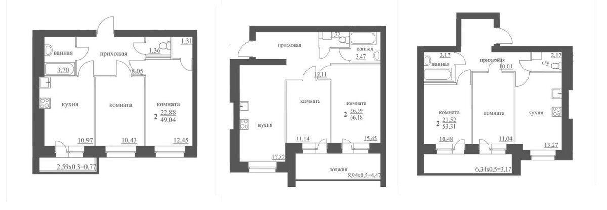
2-комнатные квартиры представлены площадью от 49,04 м² до 66,18 м². Площадь кухни от 10 м² до 17 м².

Планировки 2-комнатных квартир
Планировки 2-комнатных квартир

3-комнатные квартиры представлены площадью от 73,26 м² до 94,54 м². Площадь кухни от 12,18 м² до 18,9 м².

Планировка 3-комнатной квартиры
Планировка 3-комнатной квартиры

Цены (на начало марта 2022)

💰 1-комнатная квартира, площадь — 39,31 м², стоимость — 3 300 000₽ (83,9 тысяч ₽ за м²).

💰 2-комнатных квартир в продаже нет

💰 3-комнатная квартира, площадь от 73,26 м², стоимость — 5 089 940₽ (69,47 тысяч ₽ за м²).

Квартиры сдаются без отделки, по желанию,покупатель сможет приобрести квартиру с чистовой отделкой.

Как видит застройщик

-4
-5
-6

Реальность

Продолжаются строительные и монтажные работы. Ввод в эксплуатацию запланирован на II квартал 2022. Не произведено остекление 7 этажа, стоит кран, строительный забор, стройматериалы, снег не чищен и соответственно еще не произведено благоустройство прилегающей территории. Но у застройщика есть еще 4 месяца на завершение всех работ и сдачи ЖК. Но даже после завершения строительства и ввода в эксплуатацию реальность будет сильно отличаться от рендеров, т.к. никуда не денутся близлежащие дома и другие постройки, а деревьев там не столько и не такие.

март 2022
март 2022
март 2022
март 2022
март 2022
март 2022

Как добираться

Транспортную доступность ЖК обеспечивает проспект Фрунзе и Тормозное шоссе. Расстояние от ЖК Балтийский до центра города около 7 км.

Ближайшие к ЖК остановки — «Улица Строителей» и «Корабельная улица». Первая находится на расстоянии 200 м, вторая на расстоянии 520 м.

Без машины будет достаточно просто добраться, но нужно учитывать расписание движения общественного транспорта Ярославля.

О микрорайоне

ЖК находится в микрорайоне Дядьково во Фрунзенском районе в южной части г. Ярославля. Микрорайон возник на основе поселка, который строился как поселок для работников промышленных предприятий, расположенных на берегу Волги, в основном судостроительного завода. Новые проекты, включая ЖК Балтийский, носят характер точечной застройки внутри уже обжитого микрорайона.

Инфраструктура

Рядом с домом расположены детские сады № 5, 24, 77, 87, 229, школа №23 . До самого дальнего детского сада и 23 школы - 500 метров (около 7 минут пешком), детская школа искусств им. Е.М. Стомпелева, профессиональный колледж №21, ДК Судостроитель.

В соседнем доме (ул. Судостроителей 25/9) находится детская поликлиника №2, есть стоматология и аптеки.

На другой стороне проспекта Фрунзе (есть подземный переход) парк Судостроитель, спортивный комплекс «Молния», специализированный ФОК для лиц с ограниченными возможностями, Аквапарк «Тропический остров».

Продуктовые магазины: Пятерочка, Магнит, Дикси, Атрус, рынок Балтийский, гипермаркет Лента, семейное кафе ПиццаФабрика.

Рядом с домом Сбербанк и почтовое отделение, пункты выдачи Ozon и Wildberries.

Минусы

❌ Неотремонтированная подъездные участки на ул. Судостроителей и ул. Спортивная и рядом с самим ЖК.

❌ Наличие рядом с ЖК много домов старого жилого фонда и общежитий.

❌ Пробки в утреннее время в сторону центра.

❌ Недостаточное количество парковочных мест.

Плюсы

✅ ЖК строится из экологичного керамического кирпича, по проекту предусмотрен лифт.

✅ ЖК расположен на 2-й линии от проспекта Фрунзе - шум и пыль не должны беспокоить.

✅ Развитая инфраструктура.

✅ Транспортная доступность.

Кому подойдёт?

🌇 Людям, для которых важно наличие рядом с домом развитой инфраструктуры, парка и относительной близости до центра города.

🌇 Людям, которым важно жить в доме из экологически чистых материалов.

🌇 Людям, которые хотят жить в новой квартире.

Кому стоит хорошенько подумать перед покупкой

🤔 Не стоит покупать квартиру, если вам важно, чтобы вокруг все дома были одного уровня.

🤔 Не стоит покупать квартиру, если у вы работаете в Дзержинском или Заволжском районе, т.к. даже на личном транспорте на дорогу будет уходить много времени.

🤔 Не стоит покупать квартиру, если вам важен красивый вид из окна, дом, несмотря на 7 этажей низкий и со всех сторон окружен другими домами.

Подпишитесь на мой канал, чтобы не пропустить новые статьи!

Понравился обзор — ставьте лайк.

Есть что добавить — пишите в комментариях.

Хотите получить консультацию? Звоните: +7 (920) 100-08-18