Добавить в корзинуПозвонить
Найти в Дзене
LINES

Воробьев Дом 180 м²

Мы получили все карты в руки - квартиру, расположенную в одном из трех особняков нового жилого пространства в центре Москвы с большими панорамными окнами, из которых открывается вид на Москву-Сити и Москву-реку, площадь, позволяющую раскрыть интерьер и, конечно, полное доверие заказчика, открытого для новых идей.
Все это позволило выполнить проект нового уровня – он создан в первую очередь для жизни, не являясь арт-пространством и не заявляя открыто о своем статусе, он сдержан и минималистичен, самодостаточен и при этом в полной степени отвечает обстановке, мимикрируя к окружающей среде. Планировка Основная задача — создать достаточно уютный, но при этом брутальный и строгий интерьер для холостяка. В придачу тут окна в пол в зоне гостиной, большая квадратура и свобода в плане выбора материалов и дизайн-решений. Визуализации За дизайн-проект брались с диким запалом. Хотелось дать не только классные визуальные решения (а они бомба), но и продумать все функционально. Здесь огромные панор
Оглавление

Мы получили все карты в руки - квартиру, расположенную в одном из трех особняков нового жилого пространства в центре Москвы с большими панорамными окнами, из которых открывается вид на Москву-Сити и Москву-реку, площадь, позволяющую раскрыть интерьер и, конечно, полное доверие заказчика, открытого для новых идей.

Все это позволило выполнить проект нового уровня – он создан в первую очередь для жизни, не являясь арт-пространством и не заявляя открыто о своем статусе, он сдержан и минималистичен, самодостаточен и при этом в полной степени отвечает обстановке, мимикрируя к окружающей среде.

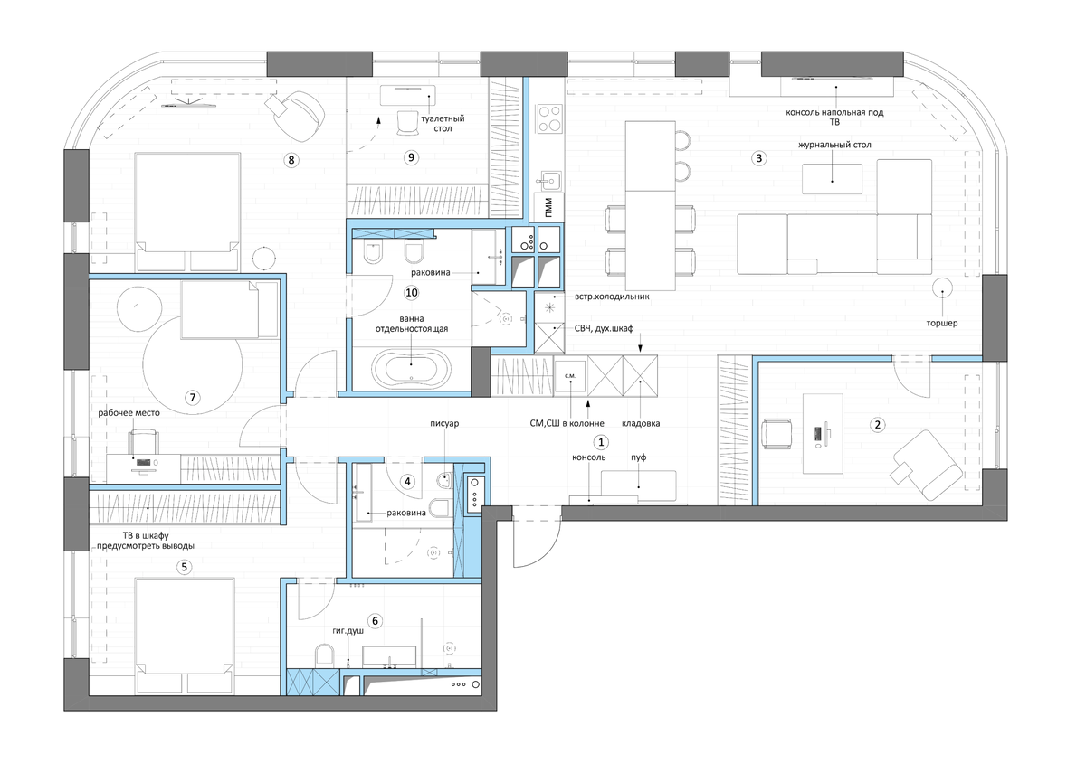
Планировка

Исходная планировка
Исходная планировка

Основная задача — создать достаточно уютный, но при этом брутальный и строгий интерьер для холостяка. В придачу тут окна в пол в зоне гостиной, большая квадратура и свобода в плане выбора материалов и дизайн-решений.

Итоговая планировка
Итоговая планировка

Визуализации

За дизайн-проект брались с диким запалом. Хотелось дать не только классные визуальные решения (а они бомба), но и продумать все функционально. Здесь огромные панорамные окна с видом на Моску-Сити и Москву-реку, большая квадратура и заказчик, который поддержал наши самые смелые решения. Все получилось!

В интерьере доминируют серый и черный, камень и дерево — отсылка к природным текстурам и тонам. Монотонность мы разбавили необычными деталями. Например, в зоне гостиной это журнальный столик со столешницей из закаленного стекла и подстольем из архитектурного бетона. Фактура имитирует срез камня.

Общие сроки реализации 10 месяцев
Стоимость дизайн-проекта
900 000

Арт-директор и дизайнер – Полина Кузурман
Проджект менеджер — Альбина Никипелова
Проектировщик — Дарья Колокольцева
Руководитель — Влад Седов